Ohio State University South Campus Central Chiller

Ohio State University South Campus Central Chiller

2. September 2013

Ohio State University South Campus Chiller Plant
2013
Columbus, Ohio
 
Client
The Ohio State University
 
Architect
Ross Barney Architects 
Chicago, IL
 
Design Principal
Carol Ross Barney, FAIA

Principal in Charge
Eric Martin, AIA

Project Architects
Jonathan Graves, LEED AP, & Marc Anderson

Project Team
Ryan Giblin, AIA, LEED AP, & Huili Feng

Architect of Record
Champlin Architects

Local Architect
Lupton Rausch

Structural Engineer
Shelly Metz Baumann Hawk
 
MEP/FP Engineer
RMF

Landscape Architect
MSI Design
 
Lighting Consultant
Gary Steffy Lighting Design, Inc
 
Façade Consultant
ARUP
 
Construction Manager
Whiting Turner

Dichroic Glass
Goldray

Site Area
42,000 sf

Building Area
95,737 sf

Photographs
Brad Feinknopf

Drawings
Ross Barney Architects

On approach from Cannon Drive

What were the circumstances of receiving the commission for this project?

The University issued a formal Request for Proposals and shortlisted to a handful of firms to interview.  Based on the interviews we were selected.  One interesting aspect of this commission was that the University selected the Design Architect and the Architect of Record separately. Our contract as Design Architect was then assigned to the Architect of Record, Champlin. It sounds unusual but it worked out very well. Working with Champlin was great.

View of the north and west elevations in context of Medical Center

Can you describe your design process for the building?

Our approach to design is collaborative and investigative. We believe that the best solutions are the ones that integrate ideas from all the project stakeholders and work hard to maintain a free flow of ideas among the team members.

At each stage of the design we try to find diametrically opposite concepts that answer the program requirements and then evaluate and analyze their strengths. For example, we studied a 10 story chiller and we also studied burying the chiller plant under a park.

Large glazed openings are located to help identify the function of the building by framing views of the chiller equipment

The final solution depends heavily on material selection and detail.  Originally, there was a prejudice to enclose the Chiller in glass, expressing the inner workings of the chiller to view.  But we learned that with a glass box design we would have to add cooling to the building, literally chill the chiller.  So we began looking for an alternate solution and precast concrete was chosen for its thermal properties.  The completed building is naturally ventilated and does not require supplemental cooling…or heating for the matter. In the winter, the heat created by the operating chillers keeps the facility warm. One more interesting precast note: The University was not pleased with earlier precast installations on campus because of staining and streaking. To solve this, our panels were polished before installation. So far it is working.

West elevation

The dichroic fins were added to the façade to activate the exterior using energy from the sun.  We have been interested in the properties of dichroic coatings for a while. A dichroic film is created by adding micro thin layer of metal to a translucent material. The metallic layer changes the wave length and therefore the color of light passing through. Since the metal is also reflective the dichroic produces different reflected and transmitted colors. It turned out to be a very dynamic expression.  Producing the large pieces of laminated glass for the fins turned out to a bit of a technical first. We worked closely with Goldray Glass to discover the proper lamination.

Dichroic glass fins are located in the joints of the polished precast concrete panels

How does the building compare to other projects in your office, be it the same or other building types?

Like many of our projects, the University presented an unusual challenge to the Team that required a unique solution.  We don’t like to specialize by building type. Generally we have observed that the most innovative designs are often the first of a building type by that designer.

We do believe in Client types however and find that Universities like Ohio State often seek and profit by innovative design.

An inviting outdoor plaza was created

How does the building relate to contemporary architectural trends, be it sustainability, technology, etc.?

We have recently designed other buildings and spaces that are experienced largely from the outside and or in transition, the architecture of infrastructure and are acutely aware of the impact this type of project has on the visual environment. 

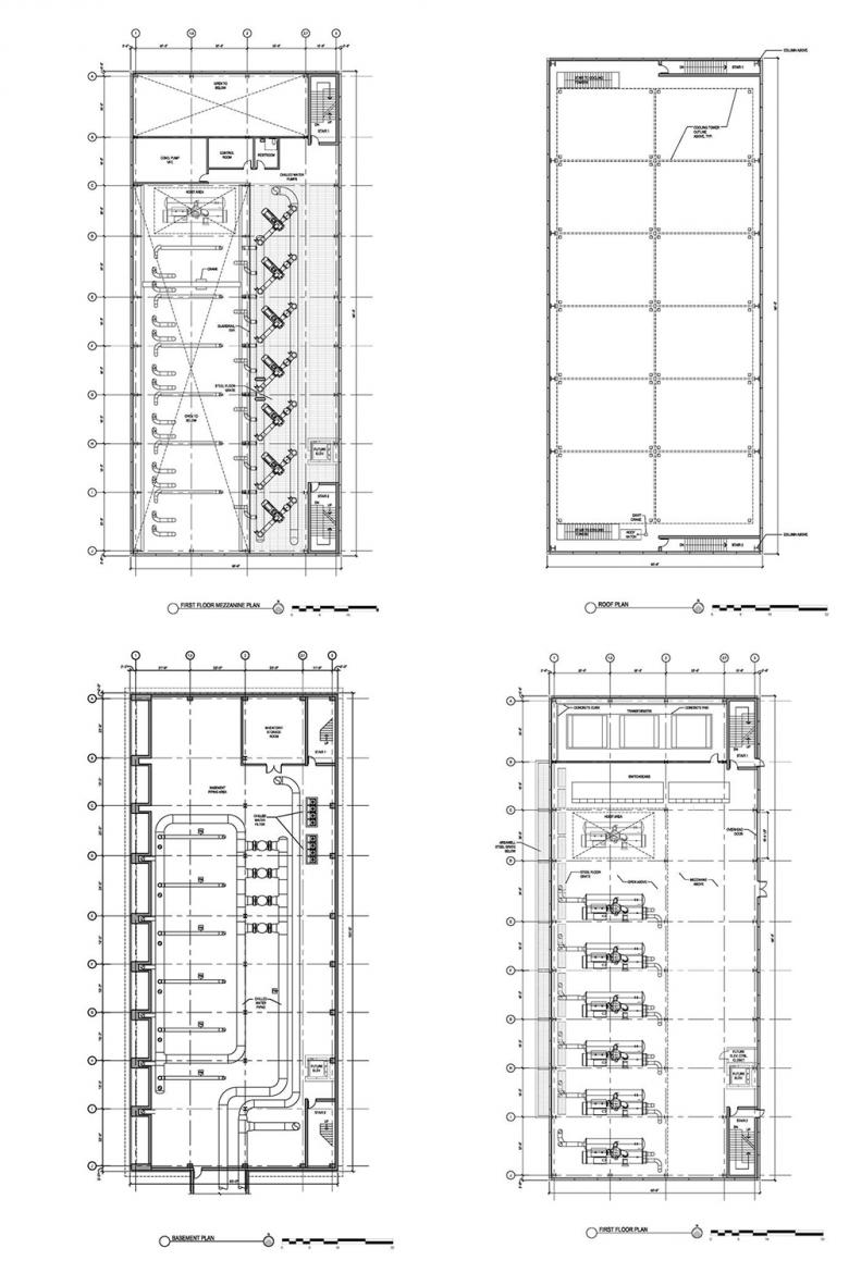
Floor plans
Site plan

View of the chiller equipment on the second floor

Are there any new/upcoming projects in your office that this building’s design and construction has influenced?

What we learned a lot about glass and precast concrete that will influence future projects. Material research and selection is very important to our practice.

Building section

How would you describe the architecture of Ohio and how does the building relate to it?

The Ohio State University is a vibrant campus with many buildings that explore new architectural ideas, in unique ways.  The South Campus Chiller is one of these buildings. It was great to work on this prestigious campus, where the quality of architectural design is highly valued. 

Email interview conducted by John Hill.

Dichroic glass boxes are lit from within to provide night time color reflections

How does the completed building compare to the project as designed? Were there any dramatic changes between the two and/or lessons learned during construction?

There were no dramatic architectural changes from the final design to construction. Some landscape features were not constructed but I hope they will be executed later. The design was so cost effective when bid that the Owner was able to upgrade the Chiller design. The University has already installed an additional four chillers that they originally thought would come online at a future date.

Ohio State University South Campus Chiller Plant
2013
Columbus, Ohio
 
Client
The Ohio State University
 
Architect
Ross Barney Architects 
Chicago, IL
 
Design Principal
Carol Ross Barney, FAIA

Principal in Charge
Eric Martin, AIA

Project Architects
Jonathan Graves, LEED AP, & Marc Anderson

Project Team
Ryan Giblin, AIA, LEED AP, & Huili Feng

Architect of Record
Champlin Architects

Local Architect
Lupton Rausch

Structural Engineer
Shelly Metz Baumann Hawk
 
MEP/FP Engineer
RMF

Landscape Architect
MSI Design
 
Lighting Consultant
Gary Steffy Lighting Design, Inc
 
Façade Consultant
ARUP
 
Construction Manager
Whiting Turner

Dichroic Glass
Goldray

Site Area
42,000 sf

Building Area
95,737 sf

Photographs
Brad Feinknopf

Drawings
Ross Barney Architects

Related articles 

Other articles in this category