Onagawa Container Temporary Housing
Onagawa Container Temporary Housing
The town of Onagawa in Miyagi Prefecture suffered extreme damage from the earthquake and tsunami on March 11, 2011. Architect Shigeru Ban responded by designing a multi-story temporary housing complex for survivors.
Project manager Yasunori Hirano talked about the project in an interview with japan-architects.com's Yuna Yagi.
How did you get involved with this project?
Starting right after the disaster last March our firm installed over 1,800 2m x 2m paper partitions to ensure privacy for families at more than 50 emergency shelters. One of the towns we visited was Onagawa, where large expanses of land had been inundated in the tsunami. As we were working on that project, we learned from Onagawa's mayor Nobutaka Azumi that because there wasn't much flat land in town the local government hadn't been able to build enough temporary houses for all the survivors. We presented the municipal government with a plan for multi-story units made from shipping containers as a solution.
Usually, orders for temporary houses must be placed by the prefectural governor, but in Miyagi Prefecture a system had been adopted allowing mayors to place orders as well. We ended up receiving a commission from the municipal government in Onagawa to build the multi-story units.
Because land was in such short supply, the town allocated a baseball field on the grounds of a municipal athletic facility for the project. We constructed a total of nine buildings (three two-story structures and six three-story structures) to house 189 families.
Tell us about the design process and concept ofthe project.
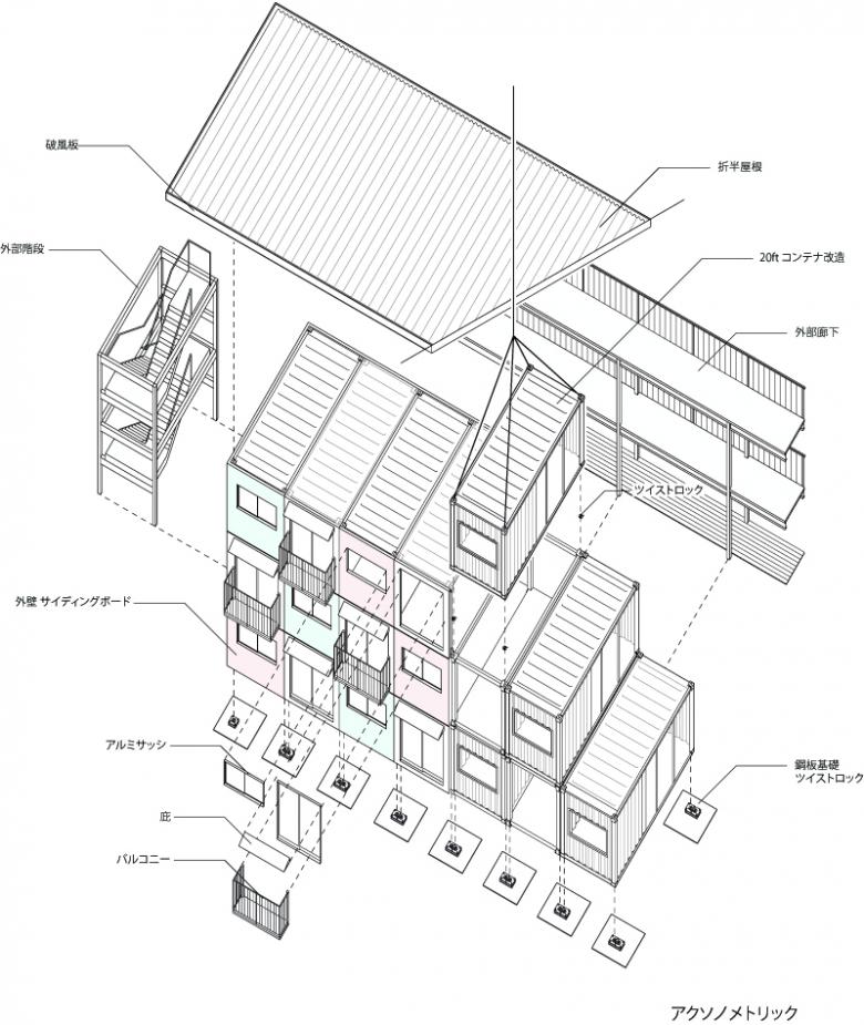
The emergency housing units are made from shipping containers stacked in a multistory checkerboard pattern. Kitchens, baths, and children’s rooms are located inside the containers, and open spaces like living rooms are located in the gaps between them.
Looking at other temporary housing units, we noticed they were often crowded with furniture the residents had purchased. For this reason we decided to install built-in wall storage. The cabinets were built using donations to Voluntary Architects Network (VAN), an organization run by Shigeru ban, and installed by volunteers.
Because the number of carpenters and other skilled workers in the disaster area available for hire was limited, we designed the structures so they could be assembled simply by stacking pre-made units. Window installation and other carpentry work was completed off site, at the same time the containers were manufactured.
In an ideal situation, people who were neighbors before the disaster would still live close to one another after moving to temporary housing. In reality, things don’t usually work out that way. We wanted to design the temporary housing in a way that would allow residents to easily form a new community. We included a meeting area, a workshop for children to read or study in, and a market where residents could do some basic shopping. The market was built using donations from musician Ryuichi Sakamoto and the workshop with donations from painter Hiroshi Senju.
Did the structure that was actually built differ in any way from your design? What problems did you encounter, and how did you solve them?
No previous examples of three-story temporary housing complexes existed in Japan, so it took quite a bit of time for all the parties involved to agreed to go ahead with the project.
In order to reduce sick-house syndrome, the Japanese government rates houses according to the amount of certain chemicals, such as aldehydes, used in construction. We wanted to make sure our temporary houses received the top rating (four stars), but because the containers were manufactured in China on a very tight schedule, meeting the standards was difficult.
Finally, when it came to assembling the structures on-site, we had a hard time finding skilled workers due to the chronic shortage of carpenters in the disaster area, where so much emergency housing was being built at the same time.
What was different or similar about this project compared to your previous work?
Our office has done a lot of emergency releif projects, but we’d never faced the need for so many housing units in such a short period of time. We try very hard to design temporary housing that is just as comfortable to live in as more permanent architecture. We were able to get the project done thanks to the participation of so many volunteers in the construction of the community buildings and in the installation of built-in storage.
How do you think this project fits into the context of contemporary architectural trends?
When disasters happen in Japan, pre-fab housing manufacturers and other large companies typically mass-produce simple temporary housing units very quickly. Architects haven’t really gotten involved in the past. But this time, starting with our container project, a number of architects worked on temporary housing, I think you can say architects have opened up the possibility of building temporary housing that’s more attuned to the quality of disaster victims’ living environment.
What did you learn from this project? What do you want to take from it to future work?
A strong earthquake will very likely hit Tokyo or another urban center in Japan in the future. When that happens, cities will have to rely on multi-story temporary housing complexes in order to make the best use of limited land. With this project we were able to demonstrate one way that can be done.
We are planning to thoroughly evaluate the living environment not only of our own container houses but also of other temporary housing built after 3.11.We believe that in order to prepare for future disasters there is a need to think about the problem of temporary living environments from the perspective of disaster victims, and to make improvements in response.
E-Mail Interview conducted by Yuna Yagi
Onagawa Container
Temporary Housing
2011
Onagawa-cho, Oshika-gun
Miyagi
Client
Onagawa town government
Architect
Shigeru Ban Architects
Tokyo
Design Principal
Shigeru Ban
Project Team
Shigeru Ban
Nobutaka Hiraga
Jun Matsumori
Yasunori Harano
Reiji Watabe
Associate Architect
TSP Taiyo Inc.
Structural Engineer
ARUP
MEP/FP Engineer
TSP Taiyo Inc.
Contractor
TSP Taiyo Inc
Interior built-in furniture
production and installation
Voluntary Architects Network (VAN)
Interior tables
Donated by
moreTrees + Louis Vuitton Forest
Interior curtains and lighting
Donated by Ryohin Keikaku
On-site Market
Donated by Ryuichi Sakamoto
On-site Workshop
Donated by Hiroshi Senju
Site Area
12,320 m2
Total Floor Area
5,671 m2
Photos
Hiroyuki Hirai







