Orchard Street

Orchard Street

17. May 2011

Orchard Street
2010

New York, NY

Client
30 Orchard, LLC

Architect
Ogawa Depardon Architects
New York

Design Principal
Gilles Depardon

Project Architect
Jason Tang

Project Team
John Vett
John Lazen

Other Participants
Julia Mutzbaur
Glorian Rodriguez
Amanda Brookins

Structural Engineer
GMS (Gilsanz Murray Steficek)

MEP/FP Engineer
CGM (Charles G Michel Engineering)

Interior Designer
Kathryn Ogawa (Ogawa | Depardon Architects)

Contractor
8 x 8 Construction Inc

Construction Manager
Joshua John

Site Area
2,225 sf

Building Area
17,000 sf

Photos
Frank Oudeman

Exterior View of the building from overhead

What were the circumstances of receiving the commission for this project?

This project was the result of an integral developer/design/build team. (Architect/Contractor/Developer venture)

Exterior View of the Storefront and entrance

Can you describe your design process for the building?

The building was designed with input from the team and developer from initial schematic design through the end of construction.

Interior View of the Penthouse Apartment

How does the completed building compare to the project as designed? Were there any dramatic changes between the two and/or lessons learned during construction?

The apartment mix was radically changed during construction – Going from ‘Master One Bedrooms’ to mostly ‘Two Bedroom Full Floor’ units.

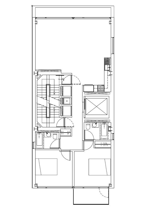
Typical Floorplan

How does the building compare to other projects in your office, be it the same or other building types?

The building was designed as a high-end residential unit not unlike many of the townhouses Ogawa | Depardon has previously completed.

Concept Rendering - Orchard St facade

How does the building relate to contemporary architectural trends, be it sustainability, technology, etc.?

We intended for this building to be timeless and to find its place in the Lower East Side through the craft-like quality of its materials and detailing.

Concept Rendering – Orchard St Terrace

Are there any new/upcoming projects in your office that this building’s design and construction has influenced?

We are now using many of the principles and lessons learned from the “rain screen” exterior cladding system in a few of our smaller residential projects.

E-Mail Interview conducted by John Hill

Orchard Street
2010

New York, NY

Client
30 Orchard, LLC

Architect
Ogawa Depardon Architects
New York

Design Principal
Gilles Depardon

Project Architect
Jason Tang

Project Team
John Vett
John Lazen

Other Participants
Julia Mutzbaur
Glorian Rodriguez
Amanda Brookins

Structural Engineer
GMS (Gilsanz Murray Steficek)

MEP/FP Engineer
CGM (Charles G Michel Engineering)

Interior Designer
Kathryn Ogawa (Ogawa | Depardon Architects)

Contractor
8 x 8 Construction Inc

Construction Manager
Joshua John

Site Area
2,225 sf

Building Area
17,000 sf

Photos
Frank Oudeman

Related articles 

Other articles in this category