Orchestrated Density
In China, everyone knows the saying “In heaven there is paradise, on earth there is Suzhou and Hangzhou”. In Suzhou, the many historic gardens and the old city centre with its whitewashed buildings and grey roofs along the canals have been protected for fifty years. New high-rise districts located outside the historic town are home to the majority of the more than ten million inhabitants of the city today. A few kilometres north of the protected old town, OPEN Architecture from Beijing recently built the Shanfeng Academy as the cultural and sports centre for Mountain Kingston Bilingual School.
The architects at OPEN Architecture, LI Hu and HUANG Wenjing, divided the functional programme into five built volumes and structured the narrow, rectangular site around four garden courtyards. The buildings include a gymnasium, library, theatre, a forum and a multi-storey sports complex. The five volumes are connected by covered corridors, which in turn provide additional access at the first-floor level. The integration of a public café at street level ensures the theatre space in the central black box volume can be accessed independently of the school’s use. All buildings are open to the public during the school holidays.
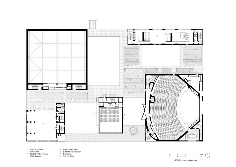
The largest volume houses the theatre, which expresses the main entrance with its curved roof. The auditorium has over 800 seats and a large stage for performances. The building’s outer skin is perforated by circular openings of different sizes, which are distributed across the surface in an irregular pattern. Immediately adjacent to the theatre is the library, which also contains an exhibition space on the ground floor. The library entrance leads directly to reading areas arranged around a central water garden. The library building has rectangular openings distributed in a free-form pattern across the façade.
Separated from the library building by a garden courtyard is the gymnasium volume. Glazed walls at street level allow views into this sports facility. There is a second sports court on the gymnasium roof. A swimming pool is located in the basement of the adjoining sports block, with daylight provided by street level windows. The three storeys above the pool are stacked with dance and gymnastics spaces expressed in a façade perforated with square windows.
In the centre of the site, directly next to the entrance, is a sculpturally designed conical volume with a forum on the ground floor and a black box space above. Daylight enters the black box through horizontal slit windows on the sloping sides as well as through a pair of round and arc-shaped roof lights. The two roof lights are fitted with a special film that tints the daylight with different hues as it moves through the space.
The four garden courtyards, three of which surround the forum, are dedicated to the four seasons, while a herb garden is laid out across the roofscape of the upper-level covered walkways.
The buildings are constructed with white-coloured concrete, reminiscent of the traditional whitewashed houses of the old city but without the need for constant maintenance with traditional whitewashed walls. As Suzhou has a rather rainy climate, the architects paid particular attention to rainwater drainage in their design. The materials were chosen with restraint in order to place the focus fully on the spatial qualities.
The solid and the void characterise the composition of the architecture and open spaces, echoing the multi-perspective aspects of historical Chinese ink painting. The gardens and the covered walkways are inspired by traditional gardens in Suzhou but also have affinities with European monastery complexes. Although the spatial density is considerable, a multitude of visual relationships are created and in moving between the five volumes many sub- spaces can constantly be experienced within the complex. The architects have achieved the feat of creating an aesthetic of density, that through careful orchestration while rethinking aspects of tradition offers rich experiential spaces to the almost 2,000 students of the school.
Design Year: 2020–2022
Client: Mountain Education Group
Programme: Grand Theatre, Gallery, Library, Sports Centre, Dance and Fitness Rooms, Swimming
Pool, and Café
Building Area: 13,676 sqm
Site Area: 7,700 sqm Location: Suzhou, China
CREDITS
Architecture and Interior Design: OPEN Architecture
Principals in Charge: LI Hu, HUANG Wenjing
Project Team: SHI Bingjie, Daijiro Nakayama, JIA Ke, Ye Qing, HUANG Zetian, FAN Jianglong (on site), Giovanni Zorzi, SHOU Chengbin, WANG Fengya, LU Di, TANG Ziqiao, JIA Han
Local Design Institute: Tongji Architectural Design (Group) Co., Ltd.
Landscape Design: OPEN + Z'scape
Theatre & Acoustic Consultant: JH Theatre Architecture Design Consulting Company
Lighting Consultant: Gradient Lighting Design Inc.
Photographers: Jonathan Leijonhufvud, Chen Cheng, Zhu Runzi, Arch-Exist Photography


















