Ordinary House

Ordinary House

2. April 2012

Building Review

Ordinary House
2010

Hokkaido, Sapporo

Architect
Akasaka Shinichiro Atelier
Sapporo

Construction Company
Hashimoto Kawashima Corporation

Hardware
HORI

Furniture fittings
HORI

Production Kitchen
Cleanup Corporation

Sanitary Equipment
INAX

Paint
Capitalpaint, OSMO COLOR

Site Area
247㎡

Total Floor Area
97.5㎡

Photos
Koji Sakai


Looking from the road, across the bridge, to the entrance. From road to interior the structure spans five levels.

Did the house as it was actually built differ in any way from your original design? Tell us about any difficulties you encountered and how you overcame them.

By covering one part of the wall around the triangular terrace with reflective aluminum panelling, I was able to bring the changing colors of the forest into the home in an abstract form. The triangular shape surrounded with glass and aluminum also serves as a megaphone that amplifies surrounding sounds and brings them into the house. I expected this to happen but it ended up working even better than I’d thought it would. In addition, I had hoped the exposed-beam ceiling would add a sense of expansiveness and light to the space. Once it was built  I discovered it reflected the colors of the forest in ways I hadn’t imagined.

Terrace and atrium viewed from the dining room. The green of the forest is abstracted and drawn inside by the aluminum reflective panelling on the left-hand side of the terrace.

How is this project similar or different from others you have worked on?

Rather than being swayed by passing trends, I want to design structures from universal elements.  I want to produce designs that are logical and have a sense of inevitability to them; to read the building site and be true to its voice. I take this attitude on all my projects, including this one, but in this case the time available for design was extremely limited. So I decided to drop all pretenses, let the tension out of my shoulders, and draw lines intuitively. I feel like what I did was find reason and order within the lines once they were on the page. This was a reversal of my normal process, where I start with a certain logic and then draw lines to fulfill it.

Carpeted living room seen from Space C. A flower-and-grass-level view of the forest can be enjoyed from the lowest level of the house, 500mm below ground. 

What did you learn from this project? What do you want to bring from this project to future work?

In that this house employs only simple shapes and minor design innovations, it can perhaps be called an “ordinary house” of the modern era. Yet simply by manipulating the use and combination of so-called ordinary elements like light, air, sound, and color, I was able to create a complex indoor environment rich in variations. I’d like to use this concept of “ordinariness” as a center point for exploring various directions in the future.

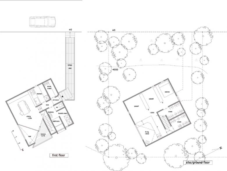
Floor plan. Access is through the second floor via a bridge from the road.
Section drawing. Many types of light are incorporated from many angles.
Structural drawing

E-Mail Interview conducted by Yuna Yagi

Building Review

Ordinary House
2010

Hokkaido, Sapporo

Architect
Akasaka Shinichiro Atelier
Sapporo

Construction Company
Hashimoto Kawashima Corporation

Hardware
HORI

Furniture fittings
HORI

Production Kitchen
Cleanup Corporation

Sanitary Equipment
INAX

Paint
Capitalpaint, OSMO COLOR

Site Area
247㎡

Total Floor Area
97.5㎡

Photos
Koji Sakai


Related articles 

Other articles in this category