Ottmers Residence

Ottmers Residence

5. September 2011

Ottmers Residence
2011

Rural Gillespie County, North of Fredericksburg
Texas

Client
Jeffrey & Katherine Ottmers

Architect
Vincent Snyder Architects
Austin

Design Principal
Vincent Snyder

Project Architect
Jon Geib

Project Team
Jon Geib
Aaron Taylor

Contractor
Jeffery Ottmers

Site Area
600 acres

Building Area
2,200 sq-ft

Photos
Vincent Snyder Architects

The ancestral ranch of Jeffrey and Katherine Ottmers

What were the circumstances of receiving the commission for this project?

Young couple with very limited resources that I have known for several years asked for assistance. They live on family land from an original land grant from the mid-19th century.

Southern façade at dusk

Can you describe your design process for the building?

A synthesis of cultural, constructional, and climatic contexts specific to the Hill Country of Texas. Having previously done extensive research in these contexts over the last decade, the chance to generate a sketch responsive to these concerns and their program happened quite quickly. Because the client was the contractor with little contemporary construction knowledge a complete 3-d framing model was completed after the plans, sections and 3-d volumes were established.

View out from second floor

How does the completed building compare to the project as designed? Were there any dramatic changes between the two and/or lessons learned during construction?

Everything but the details are as designed. The project was designed with this anticipation. The thinking was that if the “bones” were correct then the project’s primary design integrity would be maintained through the rigorous organization of space and light. Thus the use of the 3-d framing model and use of 16” o.c. minor grid & 4’ major grid (and repeated bay sizes). Construction tolerances are at places considerable, yet the project is still quite comfortable and dynamic due to the registration of changing light throughout the day and season.

Site plan

How does the building compare to other projects in your office, be it the same or other building types?

We design a wide variety of types from institutional/cultural to housing and with clients with vast differences of resources.

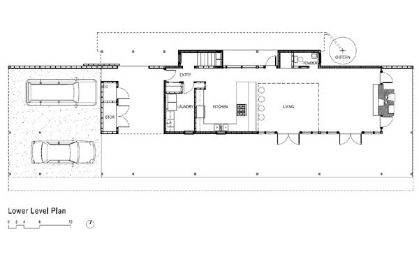
Lower Level Plan

How does the building relate to contemporary architectural trends, be it sustainability, technology, etc.?

It would be considered contemporary with regard to all of those aspects (I spoke with the clients yesterday and even with 105 degree temperatures in the Texas heat right now, they only use a window air conditioner in one of the bedrooms and claim to be quite comfortable). However, we have always considered the sustainable aspects that I have been aware of since my university day’s in the late 70’s and in fact, we did solar studies and addressed energy concerns quite seriously while I was at Frank Gehry’s office in the late 80’s and early 90’s. It has always been part of the responsibility of the architect but was done without fanfare. I would say that my friends on the left and right coasts consider the work traditional while most people here in Texas consider the work quite “modern” and non-traditional, although as I said they are influenced from historical precedents.

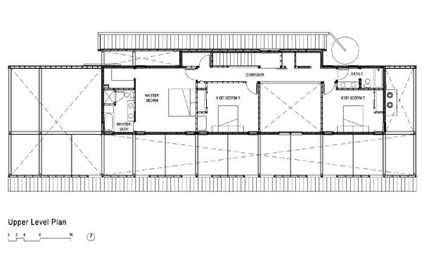
Upper Level Plan

Are there any new/upcoming projects in your office that this building’s design and construction has influenced?

No. However, naturally in any architects work projects tend to continue along certain threads until many of the conceptual priorities are exorcised.

E-Mail Interview conducted by John Hill

Ottmers Residence
2011

Rural Gillespie County, North of Fredericksburg
Texas

Client
Jeffrey & Katherine Ottmers

Architect
Vincent Snyder Architects
Austin

Design Principal
Vincent Snyder

Project Architect
Jon Geib

Project Team
Jon Geib
Aaron Taylor

Contractor
Jeffery Ottmers

Site Area
600 acres

Building Area
2,200 sq-ft

Photos
Vincent Snyder Architects

Related articles 

Other articles in this category