Our Lady of Guadalupe

8. November 2010

Our Lady of Guadalupe
2010

Waukegan, IL

Client

Episcopal Archdiocese of Chicago

Architect
STL Architects
Chicago

Design Principals
Jose Luis de la Fuente
Luis Collado

Project Manager

Michael Parlett

Project Team

Tracy Salvia - Technical Director
Garrett Harabedian – Designer
Edwin Chung – Technical Supervisor

Structural Engineer

Louis Shell Structures – Structural Engineer

MEP/FP Engineer

State Mechanical – Design/Build
Philips Electric – Design / Build

Landscape Architect
STL Architects

Contractor

STL Builders

Constr. Manager

Ben Tweel

Site Area
11,900 SF

Building Area

9,663 SF

View of the new building’s exterior

What were the circumstances of receiving the commission for this project?

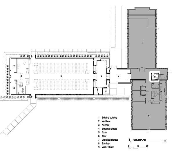
STL has previously designed three buildings for the client, though none of them were executed due to various reasons including budget and need. Despite this, the client was happy with STL’s design approach and sensibility. As had been the case previously, STL was approached to provide a design for a new facility capable of housing a congregation that had outgrown its existing worship space. The new project was to be located on the existing building site, and planned such that the existing building could be used by the congregation as break-out, office, and daycare space. The approximate size of the new building was the only criteria with which STL was initially asked to work.

View from the nave towards the altar

Can you describe your design process for the building?

The initial design cues were taken from the existing building and overall site configuration. STL approached the project as an addition capable of enhancing the existing structure while providing a new worship space for the congregation. Through a series of small presentations and conversations with the congregation, design decisions were reached. STL subsequently worked closely with the client to meet their needs and aesthetic desires without moving too far from the original concept for the building.

The soaring ceiling features exposed steel hardware

How does the completed building compare to the project as designed? Were there any dramatic changes between the two and/or lessons learned during construction?

The roof was changed dramatically during design to provide the iconic presence desired by the congregation. This alteration reverberated throughout the project, necessitating a new design by the structural engineer. STL worked closely with the structural engineer to create an interesting expression through the necessary tension rods and tension rod receivers that support the roof.

The soaring ceiling features exposed steel hardware

How does the building compare to other projects in your office, be it the same or other building types?

This building is more traditional than many projects in our office, though we feel that a certain clean, modern aesthetic is communicated through the building.

Site Plan

How does the building relate to contemporary architectural trends, be it sustainability, technology, etc.?

This building was constructed on an extremely tight budget, and as such sustainable technologies were not a driving factor. However, being composed of wood studs, an exposed wood roof, fly-ash impregnated concrete, and gypsum board, our tendency to celebrate materials in their natural state created a building with very few elements that impact the environment negatively.

Building Section

Are there any new/upcoming projects in your office that this building’s design and construction has influenced?

Every project provides an opportunity to learn. Knowledge of wood-based structures and the challenges of detailing on a very minimal budget will inform our work moving forward.

E-Mail Interview conducted by John Hill

Enlarged building section

Our Lady of Guadalupe
2010

Waukegan, IL

Client

Episcopal Archdiocese of Chicago

Architect
STL Architects
Chicago

Design Principals
Jose Luis de la Fuente
Luis Collado

Project Manager

Michael Parlett

Project Team

Tracy Salvia - Technical Director
Garrett Harabedian – Designer
Edwin Chung – Technical Supervisor

Structural Engineer

Louis Shell Structures – Structural Engineer

MEP/FP Engineer

State Mechanical – Design/Build
Philips Electric – Design / Build

Landscape Architect
STL Architects

Contractor

STL Builders

Constr. Manager

Ben Tweel

Site Area
11,900 SF

Building Area

9,663 SF

Related articles 

Other articles in this category