Outside Inside
Outside Inside
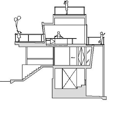
この家には、デッキが4か所ある。見晴らしのいい屋上デッキでは食事をしたり、お風呂上がりに涼んだり、夫がビールを持って上がってきたり。3階海側の デッ キはDKと一体化した空間。庭の樹木が枝を伸ばし、自然も身近だ。
The deck of the 3rd story facing to the beach is connected to Dining Kitchen. The nature is near, and you can reach the branches of the trees. The deck that faces to the moutain is shaped like a head of the ship, and Mr.K sometimes hangs out fishes to dry. There, you can see tanuki and squirrel which shows up from the bush.And the deck of the 1st story connected to the bedroom, is where kids play in a vinyl pool.
Mr.K's daughter plays with her friends freely on all decks running around, and also plays on a slide situated besides the staircase.
Mr. & Mrs. K were both keen on sailing since school,and found a place looking down the Sagami bay, about 10 minutes to the beach. This place is also surrounded by green rich parks and mountains. “Mr. Kohei Sato, an architect, lived in the neighborhood and familiar with this area, also likes the ocean and loves kids, and his way of life seemed similar to ours. And that's why we decided to ask him to desing our house.” says Mrs. K. “We requested Outdoor to become a part of a house. ”and“Open free, not a great cubby house for our family, but also open to the kids next door who could come in&out freely."
Mr.Sato proposed a plan which has the skipped floors around the staircase in the center of the house, just like the branches that comes out from a tree. On the 1st story are bed room and kid's room with vaulted ceiling, west side on the 2nd story are bath room and toilet. Half stairs up from there is a workroom which has a big custom-made table, then a open dinning room further up, and followed by kitchen and living.
“I planned to make use of the old trees, so that they could feel an image of a trees both inside and outside and feel like climbing up a tree everyday. ”says Mr. Sato. Every skkiped floor has a window where you can look down the ocean. Every branched room has a deck surrounded by the wonderful natural view.
For a full coverage see Atarashii Sumaino Sekkei, January 2009
Residential House
2008
Kanagawa
Client
Mr. S
Architecture
Kohei Sato
Kanagawa
Builder
STUDIO8





