Paradise Avenue House

29. September 2014

Paradise Avenue House
2012
Middleton, Rhode Island

Client
Withheld

Architect
Estes/Twombly Architects
Newport, RI

Design Principal
James F. Estes, FAIA

Structural Engineer
Loren Yoder, Yoder & Tidwell, Ltd

Landscape Architect
Martha Moore

Contractor
Rick Messier, Messier Construction

Roof
Englert Standing Seam

Windows/Doors
Loewen

Appliances
Miele

Lighting
Ingo Maurer, Stonco, Tech, Lightolier

Site Area
1 acre

Building Area
2,800 sf

Photographs
Warren Jagger

Drawings
Estes/Twombly Architects

Street view

What were the circumstances of receiving the commission for this project?

The client contacted us after learning about Estes/Twombly by word of mouth.

Rear view

Please provide an overview of the project.

Paradise Avenue is a mile long, ending at a popular surfing beach. It’s a picturesque, but busy road lined with old stone walls and generously spaced houses set well back from the street.

Side view

Setbacks from a stream toward the rear of the property required placing the house close to the road. The challenge was dealing with the attendant noise and lack of privacy in a way that allowed the client to enjoy the outdoors.

Pergola off living room

We used a series of layers, including both landscape and architectural elements to filter out the noise and views from the street. The rebuilt stone wall, reflecting street noise, was our first line of defense, backed up by a privet hedge to absorb sound and create privacy. The façade of the house itself is drawn out along the road by a garage on one side mirrored by a porch and trellis on the other side. The driveway becomes a linear courtyard, reinforcing the separation of public and private spaces.

Entry

In contrast to the linear, closed front, the rear is open with the interiors spilling out into the yard. Outdoor rooms are created with the use of trellis work and stone paving.

Dining/kitchen

How would you describe the architecture of Rhode Island and how does the building relate to it?

Rhode Island is well known for its shingled form buildings as well as the classic shingle style houses made famous by Vincent Scully. This house is a continuation of that tradition.

Email interview conducted by John Hill.

Kitchen
Living room
Living room
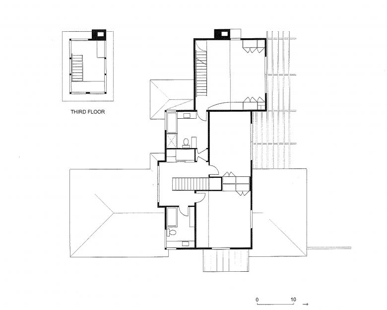
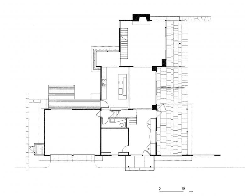
Ground floor plan
Upper floor plan

Paradise Avenue House
2012
Middleton, Rhode Island

Client
Withheld

Architect
Estes/Twombly Architects
Newport, RI

Design Principal
James F. Estes, FAIA

Structural Engineer
Loren Yoder, Yoder & Tidwell, Ltd

Landscape Architect
Martha Moore

Contractor
Rick Messier, Messier Construction

Roof
Englert Standing Seam

Windows/Doors
Loewen

Appliances
Miele

Lighting
Ingo Maurer, Stonco, Tech, Lightolier

Site Area
1 acre

Building Area
2,800 sf

Photographs
Warren Jagger

Drawings
Estes/Twombly Architects

Related articles 

Other articles in this category