Paul S. Russell, MD Museum of Medical History and Innovation

Paul S. Russell, MD Museum of Medical History and Innovation

30. July 2012

Paul S. Russell, MD Museum of Medical History and Innovation
2012

Boston, MA

Client
Partners Healthcare Systems, Inc.

Architect
Leers Weinzapfel Associates Architects
Boston, MA

Principal in Charge
Jane H. Weinzapfel, FAIA

Project Manager
Winifred A. Stoops, AIA LEED AP

Project Architect
Alan Christ, AIA LEED AP

Design Architect
Tom Chung, AIA LEED AP

Project Team
Kevin Bell, AIA
Susan Crowe Knight
Laura Duncan
Shih-Min Hsu, AIA
Hannah Jackson, RA
Irene Kang, AIA LEED AP
Matt Petrie, AIA
Jared Ramsdell
Marley Wright, RA

Exhibit Designer
Museum Design Associates

Structural Engineer
Lim Consultants

MEP/FP/IT Engineer
BVH Integrated Services

Civil Engineer
Vanasse Hangen Brustlin, Inc.

Geotechnical Engineer
McPhail Associates, Inc.

Landscape Architect
Brown Sardina, Inc.

Lighting Designer
Lam Partners, Inc.

Acoustical
Acentech, Inc.

General Contractor
Turner Construction Company

Copper Panels
Revere Copper Products, Inc.

Curtain Wall
Oldcastle BuildingEnvelope

Metal Panels
The Cheviot Corporation

Fiber Cement Panels
American Fiber Cement Corporation

Building Area
12,270 sf including Roof Garden

Cambridge Street Elevation

The new Massachusetts General Hospital Paul S. Russell MD Museum of Medical History and Innovation is located on a prominent site at the entry to its downtown Boston campus and showcases the medical achievements and culture of the hospital and its place in the community. The museum reflects the history and evolution of medicine and surgery as well as the science and research that support their development.

Grove Street Entrance

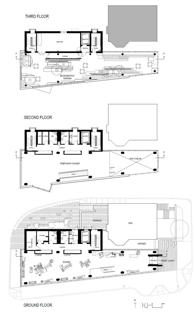
The new 8,000 sf building includes reception and orientation space, a core exhibition gallery, changing exhibition gallery, media and theater space, hands-on learning and simulation lab, hospital archives with adjunct spaces, and related administration space. The museum features an occupiable green roof and pergola, copper exterior enclosure and copper colored fritted glass.

Lobby

The institutional goals for the museum are to provide a historical and educational portal to the public; mark the 200th anniversary of MGH; provide a central resource for MGH clinicians and research scientists; and to create a distinguished front door for the hospital.

Site Plan

Sustainable Design

  • Green roof and pervious site paving and planting absorb storm water and reduce the heat island effect
  • High performance exterior envelope and glazing are highly insulated yet provide natural daylighting of interior spaces; the two combine to reduce heating loads, cooling loads, and artificial lighting
  • Careful site lighting design uses cut-off luminaires to minimize night sky light trespass while ensuring adequate lighting for safety and security
  • The copper chosen for the exterior siding typically has a recycled content between 80 and 95%, is durable and long-lived, maintenance free, and recyclable

Floor Plans
Building Section

Paul S. Russell, MD Museum of Medical History and Innovation
2012

Boston, MA

Client
Partners Healthcare Systems, Inc.

Architect
Leers Weinzapfel Associates Architects
Boston, MA

Principal in Charge
Jane H. Weinzapfel, FAIA

Project Manager
Winifred A. Stoops, AIA LEED AP

Project Architect
Alan Christ, AIA LEED AP

Design Architect
Tom Chung, AIA LEED AP

Project Team
Kevin Bell, AIA
Susan Crowe Knight
Laura Duncan
Shih-Min Hsu, AIA
Hannah Jackson, RA
Irene Kang, AIA LEED AP
Matt Petrie, AIA
Jared Ramsdell
Marley Wright, RA

Exhibit Designer
Museum Design Associates

Structural Engineer
Lim Consultants

MEP/FP/IT Engineer
BVH Integrated Services

Civil Engineer
Vanasse Hangen Brustlin, Inc.

Geotechnical Engineer
McPhail Associates, Inc.

Landscape Architect
Brown Sardina, Inc.

Lighting Designer
Lam Partners, Inc.

Acoustical
Acentech, Inc.

General Contractor
Turner Construction Company

Copper Panels
Revere Copper Products, Inc.

Curtain Wall
Oldcastle BuildingEnvelope

Metal Panels
The Cheviot Corporation

Fiber Cement Panels
American Fiber Cement Corporation

Building Area
12,270 sf including Roof Garden

Related articles 

Featured Project 

Atelier KI JUN KIM

House by the Wall

Other articles in this category