Pavilion Expo
Pavilion Expo Zaragoza
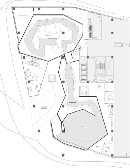
The Mexican Pavilion at the Expo Zaragoza 2008 is located at the western end of the Ronda 1 building. It occupies the two double heights set aside for it of a building already constructed by the organizers to be handed over "in the rough" to be developed by the participants.
The Mexican delegation chose the motto "We are water" as the guiding thread of the image and structure of the pavilion. This is reflected by the free-flowing architectural design of the exterior, which breaks with the forms established by the preexisting building. A great crack in the façade welcomes visitors to the pavilion, whose interior is the reinterpretation of a cenote which functions as the building's distribution core. The opening in the façade is occupied by pieces by two contemporary artists: Marco Rountree and Jerónimo Hagerman.
The design emphasizes lightness, with large glass panes, shifting planes, and unexpected images, designs, and reflections which configure the containers of the different rooms.
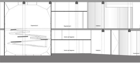
Inside are the large platforms displaying what water represents to Mexico. There are four rooms, designated "experiences," each with its specific character and content, from the maternal womb to immersion in the Caribbean Sea, with hi-tech projections and interactive episodes.
The interiors, designed by Héctor Esrawe, house a gift shop on the ground floor and a room dedicated to the National Water Commission (Conagua). On the upper floor is the restaurant/bar, which conveys the color of beach restaurants and the seafood outlets of Mexico City in a contemporary language.
Tatiana Bilbao (Mexico City, 1972) studied architecture and urbanism at the Universidad Iberoamericana (1996). In 1999 she joined LCM and in 2000 co-founded Laboratorio de la Ciudad de México, S.C. In 2004 she founded Tatiana Bilbao/mx.a s.c. and mxdf a.c., as well as taller de investigación urbana (with Derek Dellekamp, Arturo Ortiz, and Michel Rojkind), which works in collaboration with universities in Mexico and abroad. Since 2004 she has been professor of design at the Universidad Iberoamericana.
Pavilion
2008
Zaragoza, España
Architecture
Tatiana Bilbao
Mariana Tello
Francisco Solórzano
Thorsten Englert
EMPTY
Francisco Minguez
Nicolás Minguéz
Oscar Sáez
BAU OBRAS
Miguel Kreisler
Ángel Jaramillo
Project Team
Alain Herrera
Marcela Compean
Ian Castillo
Diego Hernández
Structural Engineering
Juan F. de la Torre Calvo
Contractor
OHL
Construction Supervision
Bartolomé Rullan
Edgar Ramírez
Installations
AT Asesores
Carlos Martínez
Interior Design
Esrawe Studio
Héctor Esrawe
Ricardo Casas
Constructed Surface Area
1,800 m2









