Peter T. Paul College of Business and Economics
Even as college tuitions rise faster than overall inflation, universities are booming. The University of New Hampshire is projecting a 30% increase in the undergraduate and graduate populations in the next two decades. In anticipation, UNH is building more, including a new building for the Peter T. Paul College of Business and Economics. Goody Clancy's design integrates the building into the campus through materiality and massing, and by creating a courtyard overlooked by the building's Great Hall. The architects answered a few questions about one of the latest additions to the UNH campus.
What were the circumstances of receiving the commission for this project?
In 2001, Goody Clancy was selected through a competitive RFP (Request for Proposals) process to develop a building program and concept design to add to the business school’s then current building. That project was not completed. In 2009, UNH elected to build a new building for the business school and issued a competitive RFP to update the program, select a site, and design the building. Goody Clancy was again selected for this work, which led to the construction of the Peter T. Paul College of Business & Economics.
Please provide an overview of the project.
Designed with a traditional brick façade to fit into the surrounding historic campus, this new building offers undergraduate, graduate and executive business students technology-enabled breakout rooms, classrooms designed to accommodate a range of teaching methods, and a unique hospitality management program. A bustling hub for learning and collaboration, the building houses several departments and draws students from across campus. A two-story, light-filled atrium provides social and study spaces, with views of the beautifully landscaped courtyard.
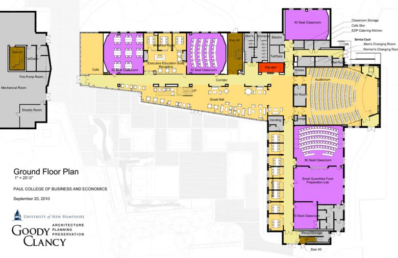
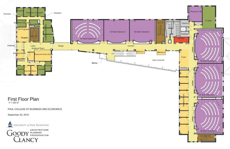
The program was developed to meet the projected 20-year requirements for the College and accommodate the anticipated growth in enrollment to 2,300 undergraduate and 500 graduate students. The total gross area is 110,000 SF and balances classrooms, faculty and administrative offices. The 16 classrooms are designed to accommodate a range of teaching methods, from state-of-the-art lecture spaces to collaborative problem-based-learning rooms. A variety of social spaces are included which foster a sense of community and belonging within the College. These include a double-height Great Hall overlooking the courtyard, a café, 29 technology-rich team rooms and a 208-seat auditorium. The adjacency of the Great Hall to the auditorium allows it to double as a gathering space during events that bring the College’s student and faculty together.
What are the main ideas and inspirations influencing the design of the building?
Contextual sensitivity, sustainability and pedagogy are the driving forces behind the design decisions. The two main entry points to the building, as well as the main public space of the building, are shaped by and integrated with the site topography. The monumental front of the west wing with its main entrance clad in brick and granite welcomes people arriving from the campus core. An architectural language that allowed the new building to fit seamlessly within the context of the campus was an important goal set forth by the campus architect. By articulating the building as distinct wings and by choosing traditional materials of brick, granite, and slate—detailed in unexpected ways—the building responds to the goal of making it highly specific to its place.
Once inside, one crosses a series of “thresholds” leading from the west wing, through the portal bridge and into the two-story-high Great Hall at its upper level. The Great Hall is clad with a veneer curtain wall/glulam system incorporating sun shades to provide a depth and richness of materials. The slate shingle cladding system design incorporated rain screen construction principles for higher performance of the envelope. Artworks owned by UNH as well as specifically commissioned for the building were incorporated into both the Great Hall as well as the exterior courtyard.
To what extent did the clients and/or future users of the building influence the design and the outcome of the building?
In addition to University campus planners and facilities staff, user groups from the business school including faculty, administrative staff and leadership, and students, participated in programming and design review at increasing levels specifically as the design progressed. These groups were also represented by a building committee, led by an associate dean.
How does the building relate to contemporary architectural trends, be it sustainability, technology, etc.?
The building was designed to achieve, and received, LEED Gold certification. By incorporating such elements as a high performance exterior envelope, zoned HVAC systems, energy recovery and exchange components and passive valance heating and cooling system the building overall consumes 45% less energy com¬pared to the ASHRAE baseline. Wall-mounted high-efficiency flush valve water closets and lavatories are equipped with sensor faucets and low flow aerators. A storm water feature incorporated into the exterior courtyard is connected to the roof rainwater collection system which provides water for plantings within the feature itself.
How would you describe the architecture of New Hampshire and how does the building relate to it?
Historic New Hampshire architecture was created by pragmatic, thrifty, independent people building in a harsh climate. Buildings are often simple, unadorned forms built of wood, or brick. Their beauty is in their proportions. Their restrained detail reflects the pragmatism of the people who made them.
The Peter T. Paul College of Business & Economics responds to the same forces. It is a sequence of calm brick volumes, trimmed in granite, unified by pitched slate roofs. Sitting in a naturalistic landscape, it shapes an open, south facing courtyard, whose multistory glass wall connects the building’s central space to the outdoors. During winter days sunlight penetrates deep into the space, warming its users (shading devices control summer sun). At night the active intellectual and social life of the school is visible through it from the campus. The simple detailing of brick patterns, slate coursing and granite trim convey New Hampshire values of thrift and permanence.
Email interview conducted by John Hill.
Peter T. Paul College of Business and Economics
2013
Durham, New Hampshire
Client
University of New Hampshire
Architect
Goody Clancy
Boston, MA
Design Principal
Rob Chandler AIA, LEED BD+C
Project Architect
Zsuzsanna Gaspar AIA
Project Manager (Design)
Victor Ortale AIA, LEED BD+C
Project Manager (Construction)
James Clifford, LEED BD+C
Structural, MEP/FP and Civil Engineer
Rist-Frost-Shumway Engineering
Landscape Architect
Carol R. Johnson Landscape Architects
Lighting Designer
Benya Lighting Design
Contractor
PC Construction
Site Area
110,000 sf
Photographs
Anton Grassl/Esto
Drawings/Renderings
Goody Clancy











