Phenomblue

6. July 2014

Phenomblue
2013
Omaha, Nebraska

Client
Noodle Development/Phenomblue

Architect
TACKarchitects
Omaha, NH

Design Principal/Project Manager
Jeff Dolezal, AIA

Project Architect
Chris Houston, AIA

Project Team
Ryan Henrickson, Jeff Dolezal, Chris Houston, Rebecca Harding

Contractor
AOI Construction

Construction Manager
Jeff Maas/Patrick Jensen

Site Superintendent
Taber Terry

Building Area
7,500 sf

Photographs
Tom Kessler, Kessler Photography

Drawings
TACKarchitects

Exterior view

What were the circumstances of receiving the commission for this project?

We worked on their first offices four years prior and maintained a friendship with them.

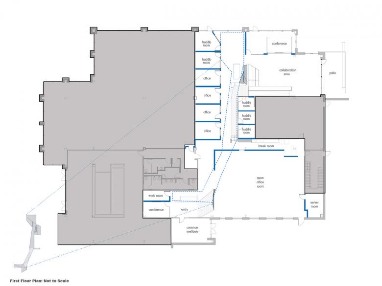
Floor Plan
Entry

Please provide an overview of the project.

Our design of a tenant space within the Aksarben Village Development consists of a reception area, two conference rooms, three huddle rooms, an open office area for 30 employees, five enclosed offices, and a café/breakroom.

View toward entry from corridor

What are the main ideas and inspirations influencing the design of the building?

Funky, fun, hip, rad space. That’s what the client, a young website and branding company asked for. Programmatically, they required a combination of open work areas, collaboration work areas, enclosed offices, and conferencing space.

View toward collaboration area

We used an “armature” as a way to organize the space into clusters, and as a way-finding element. The armature became a folded and angled plywood clad steel floating ceiling plane, which touches down in areas where collaboration occurs. It also defines the space between open work areas and circulation paths. The use of bold color assists in the playful nature of the space, as well as reinforcing the client’s brand and culture.

Collaboration area on the left and huddle rooms on the right

How would you describe the architecture of Nebraska and how does the building relate to it?

The architecture of Nebraska is very similar to most Midwestern states in that a majority of the architecture is pretty pedestrian and conservative. However, you will find individual projects that break this trend with site-specific, contextual solutions that ignore convention. This is more of the arena we strive for, work that responds to its context, whether interior or exterior. I would say that the work that’s good in Nebraska is as good as any other city/state within the United States.

Email interview conducted by John Hill.

Under the "armature"
Collaboration area
Armature detail
Armature axonometric and elevation

Phenomblue
2013
Omaha, Nebraska

Client
Noodle Development/Phenomblue

Architect
TACKarchitects
Omaha, NH

Design Principal/Project Manager
Jeff Dolezal, AIA

Project Architect
Chris Houston, AIA

Project Team
Ryan Henrickson, Jeff Dolezal, Chris Houston, Rebecca Harding

Contractor
AOI Construction

Construction Manager
Jeff Maas/Patrick Jensen

Site Superintendent
Taber Terry

Building Area
7,500 sf

Photographs
Tom Kessler, Kessler Photography

Drawings
TACKarchitects

Related articles 

Other articles in this category