Prescott Passive House

12. July 2010

Prescott Passive House
2010

Kansas City, KS

Client
Speculative

Architect
Studio 804 Inc.
Dan Rockhill

Design Principal
Dan Rockhill

Project Team
CJ Armstrong
Elizabeth Beckerle
Joshua Brown
William Doran
Colleen Driver
Laura Foster
Joel Garcia
Tyler Harrelson
Lauren Hickman
Aaron Jensen
Matthew Johnson
Daniel Lipscomb
Daniel Matchett
Jennifer Mayfield
Katherine Morell
Tye Zehner

Structural Engineer

Norton & Schmidt

Green Rater
Hathmore Technologies

Passive House Consultant
Passive energy designs

Site Area
15,000 s.f.

Building Area
1,700 finished

Approach view from sidewalk to south

(Photos: Studio 804, Inc.)

What were the circumstances of receiving the commission for this project?


Studio 804 builds a spec house every spring in an effort to lead, by example, the way in modern design and to address issues that are critical to the industry.

Interior view from living room to kitchen and loft

Can you describe your design process for the building?


To arrive at the final design, students set off in many directions, painstakingly researching specific attributes of sustainable design, environmentally friendly materials and aesthetic precedents.  Modular construction was evaluated in-depth, as were European examples of technology and design [where the Passive House standard, mentioned below, originated], and vernacular construction; both sustainable rating systems that we intended to use were also integrated into the design from the start.  Details and design elements were discussed daily and developed in a cooperative manner.  Full scale mock-ups also played a critical role in the process, systems like the louvers and wall assembly were extensively planned in this way.

Interior view of glass wall at bathroom core

How does the completed building compare to the project as designed? Were there any dramatic changes between the two and/or lessons learned during construction?


The finished house looks remarkably like the renderings produced before construction. There were minor changes to the house, but none having a drastic or negative effect on the finished project.  Being the first project built to the Passive House standard in this area also shed light on potential for future projects and methods.

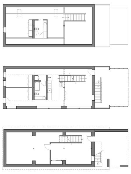
Plans

(Drawing: Studio 804, Inc.)

How does the building compare to other projects in your office, be it the same or other building types?


Typically Studio 804's projects are homes. This residence, and our previous project, mark a departure from the modular construction method that Studio 804 is known for.  The home is also designed to the Passive House standard, which, while not a new system, is new to the United States, and hadn't yet been attempted by the studio. 



 


Elevations

(Drawing: Studio 804, Inc.)

 

How does the building relate to contemporary architectural trends, be it sustainability, technology, etc.?

Primarily the building addresses the industry trends of sustainable and green building practices.  Because the methods chosen for the Prescott Passive House don't rely on expensive, technologically advanced systems, we were able to keep the house marketable within the affordable housing sector.  We felt that this was a critical aspect of the project, and one that sets it apart from current trends in architecture.   The home's pending LEED Platinum status surpasses what many people consider the threshold for sustainable practices.

Section

(Drawing: Studio 804, Inc.)

Are there any new/upcoming projects in the studio that this building’s design and construction has influenced?

We believe in the Passive House concept and will continue to work in this direction in the immediate future.

E-mail interview conducted by John Hill

Prescott Passive House
2010

Kansas City, KS

Client
Speculative

Architect
Studio 804 Inc.
Dan Rockhill

Design Principal
Dan Rockhill

Project Team
CJ Armstrong
Elizabeth Beckerle
Joshua Brown
William Doran
Colleen Driver
Laura Foster
Joel Garcia
Tyler Harrelson
Lauren Hickman
Aaron Jensen
Matthew Johnson
Daniel Lipscomb
Daniel Matchett
Jennifer Mayfield
Katherine Morell
Tye Zehner

Structural Engineer

Norton & Schmidt

Green Rater
Hathmore Technologies

Passive House Consultant
Passive energy designs

Site Area
15,000 s.f.

Building Area
1,700 finished

Related articles 

Other articles in this category