PS House

18. March 2010

PS House
2010
San Francisco, CA

Client
Rick Howard

Architect
IwamotoScott Architecture
San Fransisco

Design Principals
Lisa Iwamoto
Craig Scott

Project Architects
Dan Sullivan
Blake Altshuler

Project Team
Ryan Gollenberg

Contractor
Rick Howard
Finbarr Collins

Facade

Photos: IwamotoScott

Can you describe your design process for the building?

The design process proceeded from the client's brief, which was quite concise: a speculative house aimed at maximizing the potential of the small footprint of an existing dilapidated structure at the rear of the property, that was to be demolished but whose footprint had to be maintained.

Courtyard

How does the completed building compare to the project as designed? Were there any dramatic changes between the two and/or lessons learned during construction?

The completed building compares very closely to the project as designed. The most dramatic change involved the re-design of the entrance gate and exterior passageway from the street leading to the courtyard and new house. This was done rather quickly after construction had already started.

Entry passage

How does the building compare to other projects in your office, be it the same or other building types?

While we have designed numerous single-family residential projects, this is our first house designed and built as a spec project. It relates in it's design aesthetic to some of our earlier work such as LiveWorkShop House and FaceSide Housing, as well as to more recent projects such as Ordos Villa 043. Some of our more recent projects focus more on experimental technologies and fabrication methods, which this project did not allow as much due to its scope.

Upper level

How does the building relate to contemporary architectural trends, be it sustainability, technology, etc.?

Sustainability is addressed both at the urban scale, in that this project densifies the inner block, and the architectural scale. Sustainable design strategies such as large amounts of channel glass on the façade for maximum daylighting, which faced east for low heat gain, radiant floor heating and on-demand hot water heating are deployed, as well as sustainable materials such as engineered wood flooring and stair treads, and renewable decking and rainscreen siding.

Axon
Drawing: IwamotoScott

Are there any new/upcoming projects in your office that this building's design and construction has influenced?

There are not yet, but hopefully will be...

E-mail interview conducted by John Hill

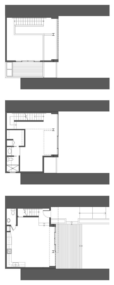
Plans
Drawing: IwamotoScott

PS House
2010
San Francisco, CA

Client
Rick Howard

Architect
IwamotoScott Architecture
San Fransisco

Design Principals
Lisa Iwamoto
Craig Scott

Project Architects
Dan Sullivan
Blake Altshuler

Project Team
Ryan Gollenberg

Contractor
Rick Howard
Finbarr Collins

Related articles 

Other articles in this category