Rancho Los Sauces

Rancho Los Sauces

1. January 2012

Rancho Los Sauces
2009

Estado de México

Client
private

Architect
grupoarquitectura
Daniel Álvarez

México D.F.

Project Architect /
Interior Design

Daniel Álvarez

Project Team
Héctor Ferral
Rosa López
Susana López
Erick Ríos
Rafael Sánchez
Chantal Stoopen
 
Structural Engineer
Enrique Ávalos

Civil Engineer
Enrique Ávalos

Lighting Designer
Grupo Arquitectura

Interior Designer
Grupo Arquitectura

Contractor
Grupo Arquitectura

Carpentry
Sergio Valdés

Masonry
Paco Puente

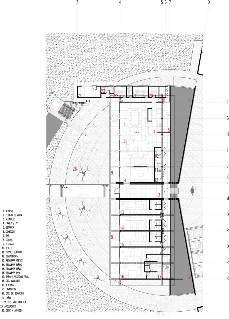
Surface Area of Site
10,000 m2

Surface Area of Building
1,500 m2

Photos
Paul Czitrom

What were the circumstances in which you received the commission for this project?

The owners were interviewed in the style of a competition by various architectural firms and they made the decision to award us the contract; we took other works to show them and we convinced them. The decisive aspect was the schematic outline that we proposed for the development of the project and the work.

Please describe the design process for the building.

First of all, the schematic and conceptual planning was very important in positioning the building in a lineal fashion with views across the valley. Later, we decided to build it with a metallic structure and the main body of the building was modelled on this. We had an exchange of views with the owners and we were fine-tuned to the diagrams which, from the outset, were very simple.

In what way did the site influence the project?

Certainly the topography and views; we positioned the house in the part of the hillock with an entire view of the valley. It was definitely the position, from the first day that we stood on the site.

How does the finished building compare with the Project design? Were there drastic changes between the two and/or were any lessons learned during the construction?

From the first diagram, we never make changes; simply developments from the same project.

How does the building compare with other projects in your office, whether being of the same or a different type of construction?

It is a project that we enjoyed very much, very simple in its conception and I consider it to be of a very sound construction; it’s one of my favourites.

How is the building related to contemporary architectural tendencies, whether being in relation to sustainability, technology, etc.?

We carefully analysed the site in regards to its orientations, thereby taking into account natural lighting, double glazing, solar panels, water recycling, etc…these are aspects that concern us greatly.

Are there any new/upcoming projects in your office that have been influenced by the design and construction of this building?

Well, in our office, those that we design are always the same if there are certain links in respect of function, form, structure and concept between all the projects that we undertake.

E-Mail Interview conducted by Bernhard Althof

Rancho Los Sauces
2009

Estado de México

Client
private

Architect
grupoarquitectura
Daniel Álvarez

México D.F.

Project Architect /
Interior Design

Daniel Álvarez

Project Team
Héctor Ferral
Rosa López
Susana López
Erick Ríos
Rafael Sánchez
Chantal Stoopen
 
Structural Engineer
Enrique Ávalos

Civil Engineer
Enrique Ávalos

Lighting Designer
Grupo Arquitectura

Interior Designer
Grupo Arquitectura

Contractor
Grupo Arquitectura

Carpentry
Sergio Valdés

Masonry
Paco Puente

Surface Area of Site
10,000 m2

Surface Area of Building
1,500 m2

Photos
Paul Czitrom

Related articles 

Other articles in this category