Riverstone Office Building
Riverstone Office Building
25. March 2013
Coeur d'Alene is the largest city in Idaho's northern panhandle, located appropriately on the north shore of Lake Coeur d'Alene. On the banks of the Spokane River, just north of where it drains into the lake, is the Riverstone development, where this office building designed by Patano+Hafermann Architects is located. The building's form and materials are responsive to local circumstances, yet executed through the use of modern techniques. The architects answered some questions about the project.
View of north elevation, rain screen/reclaimed cladding
What were the circumstances of receiving the commission for this project?
Conversations between the architect and developer about the design of a Sports Arena lead to Patano+Hafermann designing a new headquarters for that developer and an additional high-tech company as a tenant.
Front entry, rain screen/reclaimed wood siding
Can you describe your design process for the building?
Christopher started the design process investigating the history of the site, which was an old timber mill. The simple, elegant forms of the mill structures informed the initial concept for the Riverstone Office Building. The collision of the large shed roof and the gable roof created an uninterrupted form for the building that facilitated the arrangement of the spaces below and provided large covered areas to the south for the main entry to the building and to the north for an outdoor patio and social gathering area.
Structural Insultated Panels (SIPS) were immediately incorporated into the design process and the entire structure was organized on 8'-0" modules. That module translated into all of the window systems and siding systems and created an organizing principal for the structure. Reclaimed wood sources were identified for the exterior wood siding and heavy timber frame materials. These systems were incorporated into the first sketches and 3-D models. The 3-D modeling went directly into the production of construction documents and the entire building was assembled in 3 months.
Structural Insultated Panels (SIPS) were immediately incorporated into the design process and the entire structure was organized on 8'-0" modules. That module translated into all of the window systems and siding systems and created an organizing principal for the structure. Reclaimed wood sources were identified for the exterior wood siding and heavy timber frame materials. These systems were incorporated into the first sketches and 3-D models. The 3-D modeling went directly into the production of construction documents and the entire building was assembled in 3 months.
Interior office space view, SIPS, sliding door
How does the building compare to other projects in your office, be it the same or other building types?
The building is part of a process that we have been refining for the past ten years, a systems approach to construction that implements modular components to streamline the construction process and create a structure that uses less energy . In this case, SIPS were used to construct the walls and roof over a heavy timber frame. An efficient building envelope is the first step towards a high performance building.
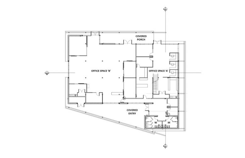
First floor plan
How does the building relate to contemporary architectural trends, be it sustainability, technology, etc.?
The component-based construction system and high-performance building envelope both address current trends and challenges in architecture. How can we build a better building for less? How and where can we become more efficient so that we can enhance the design of the project? If we build the building faster can we purchase a higher quality cladding system? These are the challenges we face everyday, and the Riverstone Office Building is an excellent example of our architectural response. Finding local materials and sourcing options brings depth to the project and a connection to surrounding landscape. We see the juxtaposition of high-tech and low-tech as the appropriate position to occupy as an architect.
Loft floor plan
Are there any new/upcoming projects in your office that this building’s design and construction has influenced?
Patano+Hafermann has just completed the conceptual design of the 17,000 sf Discovery Center, a hybrid facility that will house a Robotics Arena for scholastic robotics competitions and a Science Exhibit Hall. This project is located adjacent to the Riverstone Office Building and incorporates the component based approach at a much larger scale. The Discovery Center consists of heavy timber beams and roof trusses supported by steel columns all clad with SIPS wall and roof panels. We are expanding on an initial idea from the Riverstone project — to heat and cool the Discovery Center with a geothermal loop connected to an adjacent man-made lake. The Discovery Center is currently in the fundraising process.
Buildin section - SIPS layout
How would you describe the architecture of Idaho and how does the building relate to it?
Out interpretation of the architecture of Idaho is straightforward, functional while utilizing the beautiful natural resources produced in the state. The early development and settlement of Idaho consisted of utilitarian buildings that happened to be quite beautiful due to the simplicity of their forms and the relationship to the function and performance of the structure. The Riverstone Office Building springs from this perspective, a simple form constructed of local and reclaimed materials. Large overhangs to the south, open views to the north, an abundance of natural light and a well insulated building envelope that performs well in the extreme climate of Idaho.
Email interview conducted by John Hill.
Riverstone Office Building
2012
Coeur d'Alene, Idaho
Client
RSHO Development
Architect
Patano+Hafermann Architects
Seattle, WA + Coeur d'Alene, ID
Design Principal
Christopher Patano
Project Architect
Erik Barr
Project Manager
Chrisopher Patano
Project Team
Sue Hawkins
Structural Engineer
DCI Engineers
MEP/FP Engineer
Energy Control
Landscape Architect
SPVV Landscape Architects
Lighting and Interior Design
Patano+Haferman Architects
Contractor
RSHO Development
Construction Manager
Eric Petersen
Roof and Wall Construction
SIPS (Structural Insulated Panels)
Reclaimed Wood Siding
ReHistoric Reclaimed Wood Products
Rainscreen Cladding
Cembonit
Site Area
1 acre
Building Area
7,425 sf
Photographs + Drawings
Christopher Patano
Seattle, WA + Coeur d'Alene, ID
Design Principal
Christopher Patano
Project Architect
Erik Barr
Project Manager
Chrisopher Patano
Project Team
Sue Hawkins
Structural Engineer
DCI Engineers
MEP/FP Engineer
Energy Control
Landscape Architect
SPVV Landscape Architects
Lighting and Interior Design
Patano+Haferman Architects
Contractor
RSHO Development
Construction Manager
Eric Petersen
Roof and Wall Construction
SIPS (Structural Insulated Panels)
Reclaimed Wood Siding
ReHistoric Reclaimed Wood Products
Rainscreen Cladding
Cembonit
Site Area
1 acre
Building Area
7,425 sf
Photographs + Drawings
Christopher Patano





