Robinson Nature Center
Robinson Nature Center
Nature centers are a fairly specific building type that allow architects to enrich people's experiences of architecture, the natural environment, and their interaction. Nature centers also call for sustainable architecture of the utmost, due to their purpose and proximity to prized natural settings. GWWO Inc./Architects has designed a number of nature centers, and the Robinson Nature Center embodies these principles. The Baltimore-based architects answered some questions about the award-winning project.
What were the circumstances of receiving the commission for this project?
After responding to a publicly advertised RFP (Request for Proposal) and presenting an interview to the client, the GWWO team was awarded the Robinson Nature Center project. The nature center was the dream of Anne Robinson, who owned the property before donating it to the James and Anne Robinson Foundation. The Foundation then sold the property to Howard County to be used as the site for the center. Following the submission and interview phase, Howard County procured GWWO Inc./Architects to design a nature center which would achieve LEED Platinum certification.
Can you describe your design process for the building?
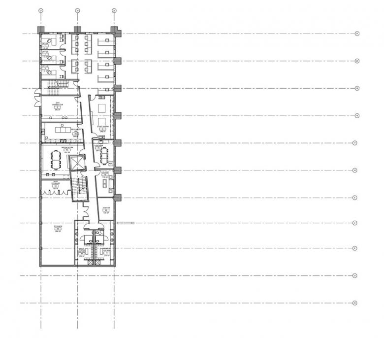
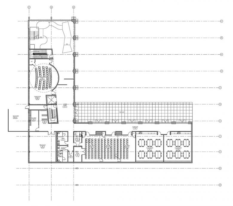
The new center was designed to immerse visitors into a dynamic environmental learning experience from the moment they arrive on site through their entire visit. The three-story structure is nestled into the sloped site, with much of it below grade in order to minimize impact on the site. The result is a building that appears modest upon approach, and that does not distract from the experience of the site. The center’s exterior is constructed primarily of wood and stone, reminiscent of the historic Simpsonville Mill, the remains of which are located nearby, and of agricultural structures similar to those found on the Robinson homestead. The use of wood and stone continues on the building’s interior, which also features stained concrete and cork flooring. Expanses of glass offer views out from within at every step in the visitors’ journey, maintaining connections to nature and enhancing the interpretive experience.
How does the building compare to other projects in your office, be it the same or other building types?
The firm’s designs are driven by a rigorous process focused on realizing and embodying each client’s story within the architectural expression and user experience of each building and site. This story-based design approach is enhanced by a commitment to sustainable design. The result is progressive architecture that tells a story—and achieves striking presence while remaining responsive to its site and surroundings. In that aspect the Robinson Nature Center project is similar to others in the office, but given that each client and site tell a different story, no two buildings designed by our firm are the same.
How does the building relate to contemporary architectural trends, be it sustainability, technology, etc.?
Sustainability: The Robinson Nature Center is a LEED Platinum-certified building, and as such integrates extensive green design features including an extensive green roof, FSC-Certified wood, local materials and a geothermal heating and cooling system. Other notable sustainable features include pervious paving, low-emitting materials (such as carpet, sealants and paints that do not emit a significant amount of pollutants into the air), daylighting, and locally produced materials such as stone, glass and gypsum board. An exhibit in the center showcases these design elements, and teaches the visiting public why this green initiative is so important to Robinson Nature Center. The Robinson Nature Center holds public lectures and tours on site detailing the green building design, which they hope will increase the community’s awareness of environmental issues.
Visitor Experience: There is always a dilemma in nature center design in regards to how much of the building a visitor experiences versus how much of the site/nature surrounding the structure. Often times, the preferred solution is to have the visitor experience the site, and not the building since the mission and focus of nature centers is to have visitors immersed in nature. Our center allows for visitors to experience all four season inside the building, while they experience one outside, and the connection to nature and the site is held throughout the building, allowing visitors to connect and experience the site without being outside.
Are there any new/upcoming projects in your office that this building’s design and construction has influenced?
While each project our firm designs is different because each client’s story is different, there is a component of this project which has begun to positively influence other office endeavors. A strong focus of GWWO is interpretive work, which ranges from visitor and nature centers to museums. As part of this type of design, GWWO works extensively with exhibit designers and landscape architects. The process at Robinson Nature Center was one of symbiosis between us and these disciplines, and the mission of the center informed the architecture, siting, landscape architecture and exhibit design. This project is the best example of the symbiosis among members of the design team, and seeing the process work so seamlessly has had a positive impact on other interpretive projects in the office.
How would you describe the architecture of Maryland and how does the building relate to it?
Maryland is unique in that the geography of the state spans from mountains in the West to the Chesapeake Bay along the Eastern Shore, and includes numerous urban centers. Given this variation, the state’s architecture, which draws on and is based off the geography of the state, is quite varied. The Robinson Nature Center is designed to fit into its rural and agrarian setting, and also draws from the historic context of the mill that was previously on-site through the integration of stone and wood.
Email interview conducted by John Hill.
Robinson Nature Center
2011
Columbia, Maryland
Client
Howard County Department of Recreation and Parks
Architect
GWWO Inc./Architects
Baltimore, MD
Design Principal
Alan E. Reed, FAIA LEED AP
Project Architect
Monica Pascatore
Project Manager
Lisa A.J. Andrews, AIA LEED AP
Structural Engineer
Faisant Associates, Inc.
MEP/FP Engineer
Henry Adams, LLC
Landscape Architect
Hord Coplan Match
Contractor
Forrester Construction
Civil Engineer
Adtek Engineers
Exhibit Design
Howard + Revis
Commissioning
Facility Dynamics Engineering
Acoustics
Acoustical Design Collaborative
Planetarium Design
Spitz, Incorporated
Archeology
R. Christopher Goodwin & Associates, Inc.
Site Area
18.4 acres
Built Area
26,000 sf
Photographs
Robert Creamer Photography
Drawings
GWWO Inc./Architects





