San Francisco Museum of Modern Art
The Snøhetta-designed, ten-story expansion of the San Francisco Museum of Modern Art (SFMOMA) opened to the public on 14 May 2016. Involving a transformation of the original Mario Botta building, the project consists of three times more gallery space than before. Snøhetta sent us some photos, drawings and text on the much-anticipated museum project.
SFMOMA’s leadership worked closely with Snøhetta to design the new museum as an outward- looking and engaging gathering space. Connections to the surrounding neighborhood and city were carefully considered, along with bringing the benefits of landscape and the outdoors to the museum spaces. New pedestrian pathways around the museum and a new public entrance on Howard Street better integrate SFMOMA into the South of Market (SoMa) neighborhood and activate the surrounding streetscape.
The iconic eastern façade of the Snøhetta-designed expansion, inspired in part by the waters and fog of the San Francisco Bay, is comprised of more than 700 uniquely shaped and locally fabricated FRP (fiberglass reinforced polymer) panels. Throughout the day, the movement of light and shadow naturally animates the rippled surface. Silicate crystals from Monterey County embedded in the surface catch and reflect the changing light.
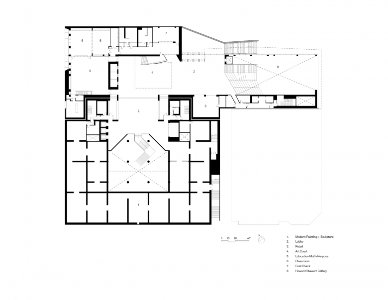
Visitors are welcomed to the new museum by two main entrances, leading to ground floor exhibition spaces that are free to all. The entrance on Third Street welcomes visitors to the reimagined Evelyn and Walter Haas, Jr. Atrium, where the iconic oculus floods the space with natural light. Alexander Calder’s 27-foot-wide mobile, Untitled (1963), is suspended beneath the oculus, drawing the eye upwards, and a new sculptural stair leads visitors to Helen and Charles Schwab Hall, the main gathering space on the second floor.
On Howard Street, a new museum entrance adjacent to the glass-walled Roberts Family Gallery, allows visitors to enter the museum through Schwab Hall. Now presenting Richard Serra’s monumental sculpture Sequence (2006), the Roberts Family Gallery is a vibrant space visible to passersby, creating a visual connection between the city and the museum and showcasing SFMOMA’s community-focused mission. Inside, a set of maple-faced Roman steps provides an informal public gathering spot and seating area.
From both entrances, stairs lead visitors to Schwab Hall, the hub of the new museum. Visitors can enjoy a rotating installation of artworks, such as Sol LeWitt’s joyful Wall Drawing 895: Loopy Doopy (white and blue) (1999), or obtain admission to explore the rest of the museum. From here, a maple- clad stair leads upward to the third-floor Pritzker Center for Photography and the galleries above.
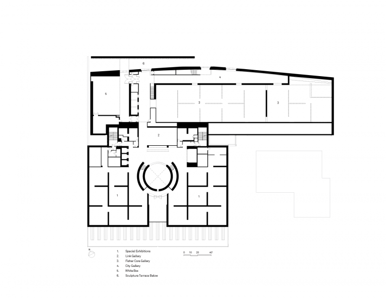
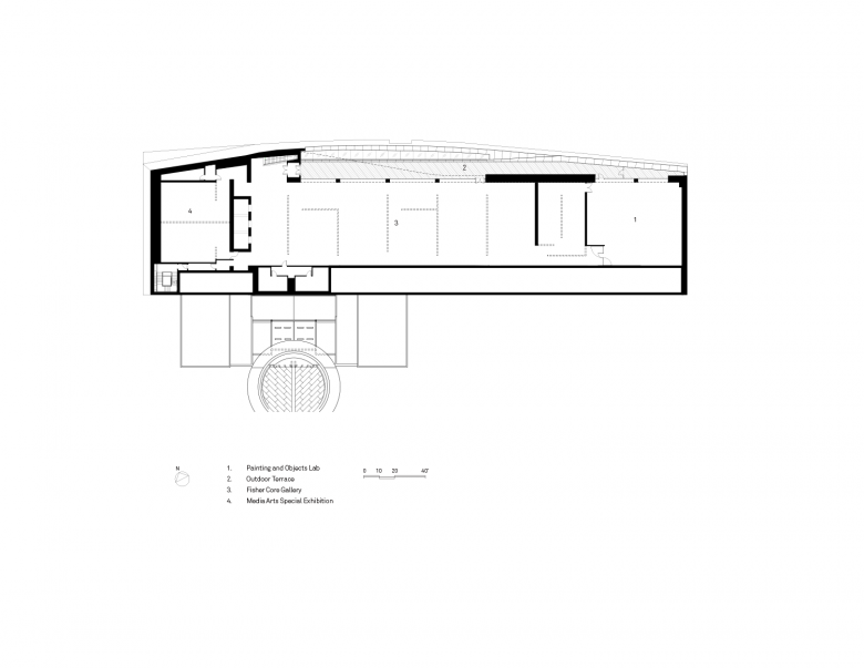
The new galleries in the Snøhetta-designed expansion are intimate in scale and create ideal conditions for viewing the artworks. Diverse gallery spaces support the display of specific collections and works of various scales. Minimal, flexible, column-free galleries permit countless temporary wall layouts—a blank canvas for the curators. At opening, visitors can experience a contemplative, octagonal-shaped gallery devoted to seven works by Agnes Martin and loft-like galleries on the seventh floor that offer space for contemporary artworks.
Terraces adjacent to many galleries extend exhibitions into the city, displaying outdoor sculptures and offering unparalleled views of San Francisco. The new third-floor Pat and Bill Wilson Sculpture Terrace is home to the largest public living wall in the United States with more than 19,000 plants and 21 native species. This curated sequence of spaces allows visitors to move between incredible artworks to broad overlooks, and enjoy views of the city as they circulate through and up the museum.
Complementing the museum’s incredible art galleries, the new SFMOMA features dynamic educational program and performances. The new Koret Education Center serves students, teachers and lifelong learners with a resource library and studio classrooms. SFMOMA partnered with Bay Area innovator Meyer Sound to install sound solutions throughout the museum, including a state-of-the-art Constellation acoustic system in the newly renovated Phyllis Wattis Theater. The Wattis Theater screens archival film and offers cutting-edge 4K projection. The new Gina and Stuart Peterson White Box is a uniquely flexible space, with a theatrical truss that supports a variety of performances, events or large scale artworks.
The new SFMOMA is on track to receive LEED Gold certification, and is one of the first museums in the country to employ all LED lighting throughout the gallery spaces. This measure helped the museum meet its ambitious sustainability goals.
San Francisco Museum of Modern Art
2016San Francisco, California
Client
SFMOMA
Design Architect + Architect of Record
Snøhetta
Oslo/New York
Partner-in-Charge
Craig Dykers
Project Architects
Aaron Dorf, Lara Kaufman, Jon McNeal
Senior Architects
Simon Ewings, Alan Gordon, Marianne Lau, Elaine Molinar, Kjetil Trædal Thorsen
Design Team
Nick Anderson, Behrang Behin, Sam Brissette, Chad Carpenter, Michael Cotton, Aroussiak Gabrielian, Kyle Johnson, Nick Koster, Mario Mohan, Neda Mostafavi, Anne-Rachel Schiffmann, Carrie Tsang, Giancarlo Valle
Associate Architect
EHDD
San Francisco
EHDD Team
Duncan Ballash (Principal + President), Lotte Kaefer (Project Architect), Rebecca Sharkey (Project Manager)
General Contractor
Webcor Builders
Collaborators
AV design: BBI Engineering
Civil Engineering: KPFF
Conservation studio, lab and art storage design: Samuel Anderson Architects Electrical: The Engineering Enterprise
Façade Maintenance Engineer: CS Caulkins
Façade Design Assist: Kreysler & Associates, Enclos
Fire Life Safety Code and Sprinkler Engineering: The Fire Consultants
Furniture selection and design: Studios Architecture
Graphics + Signage: SOM Graphics
In Situ restaurant design: Aidlin Darling Design
Landscape Architecture: Snøhetta
Lighting, Acoustics, AV and Façade Engineers: ARUP
Living Wall consultant: Habitat Horticulture and Hyphae Design Lab
Mechanical and Plumbing: Taylor Engineering
Museum Store design: Shopworks Design and EHDD
Network design: TEECOM
Phyllis Wattis Theater consultant: Auerbach Pollock Friedlander
Phyllis Wattis Theater and Gina and Stuart Peterson White Box design architect: EHDD
Security design: Turk Technologies
Sightglass at SFMOMA coffee bar design: Boor Bridges Architecture
Structural Engineer: Magnusson Klemencic Associates
Sustainability Consultant: Atelier Ten
Vertical Transportation: EWCG
Total Square Footage
460,000 square feet: 225,000 square feet (Botta building) plus 235,000 square feet (Snøhetta expansion)



















