Santa Monica Animation Studio

Santa Monica Animation Studio

8. October 2012

Santa Monica Animation Studio
2012

Santa Monica, CA

Client
Withheld

Architect
Gwynne Pugh Urban Studio
Santa Monica, CA
Principal
Gwynne Pugh

Designer
Waisler Design
Santa Monica, CA
Principal
Andy Waisler

Landscape Design
Studio J
Santa Monica, CA
Principal
Linda Jassim

Building Area
17,000 sf + 995 sf tasting room

Photographs
Benny Chan

Drawings
Gwynne Pugh Urban Studio
 

The Cube and its connections

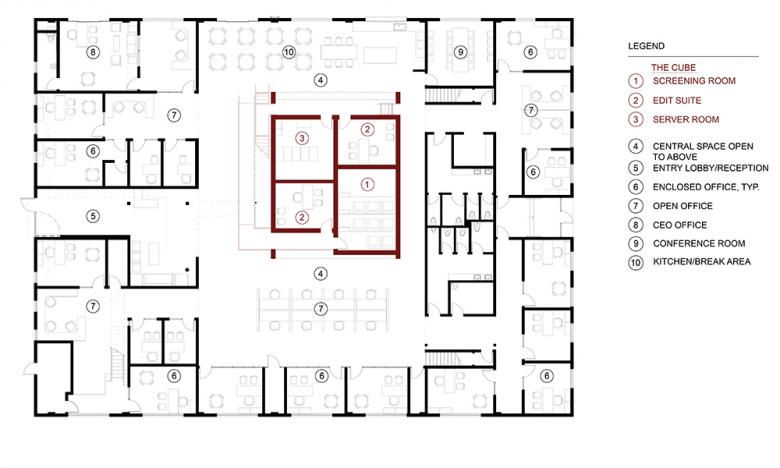
As is a consistent throughout all of Urban Studio's designs, sustainability and conservation were of paramount concern throughout the tenant improvement process. The design maintains the structure of a 1940s bowstring truss and brick warehouse along with stripped down and polished concrete floors. The centerpiece is the “Cube” which houses a screening room, two editing rooms and a central IT/server room for the entire office. Designed with a small black band that secures the foundation of the room, the office appears to float within the space. The sides facing the kitchen and hallway have built in platform seating used as spill over spaces for employee lounging.

Stairs, bridge and ramp

Using natural lighting paired with efficient lighting design, the space incorporates natural woods and sharp, contrasting colors to create a vibrant and natural aesthetic. The design also includes an outdoor patio space that playfully blends both the indoor and outdoor spaces. Oversized sliding doors connect the interior to the outdoor garden area, bringing in daylight and fresh sea air. The landscape design capitalizes on the found space on the side of the building, for use by employees for dining and breaks. An outside bar with seating hangs off the large open window facing the kitchen.  At night and on cool winter days, heat lamps and lighting warm the space.

The Cube volume with seating

Urban Studio’s design offers maximum flexibility of space, as the use of the studio varies widely, including viewing and editing spaces, general offices, and production facilities. The plan is open with privacy between offices and creates a visual connection to the overall space.  On the mezzanine level architectural steel stairs connect to an overhead bridge and the conference room, which overlooks the Cube. 

Bow truss ceiling and workspace below

Operating on a tight budget and timeline, the completion of this project involved significant negotiation with the city and utility companies to ensure a smooth transition from the studios previous location. 

Site Plan
Floor Plan

Santa Monica Animation Studio
2012

Santa Monica, CA

Client
Withheld

Architect
Gwynne Pugh Urban Studio
Santa Monica, CA
Principal
Gwynne Pugh

Designer
Waisler Design
Santa Monica, CA
Principal
Andy Waisler

Landscape Design
Studio J
Santa Monica, CA
Principal
Linda Jassim

Building Area
17,000 sf + 995 sf tasting room

Photographs
Benny Chan

Drawings
Gwynne Pugh Urban Studio
 

Related articles 

Other articles in this category