School of Art & Design at New York State College of Ceramics
School of Art & Design at New York State College of Ceramics
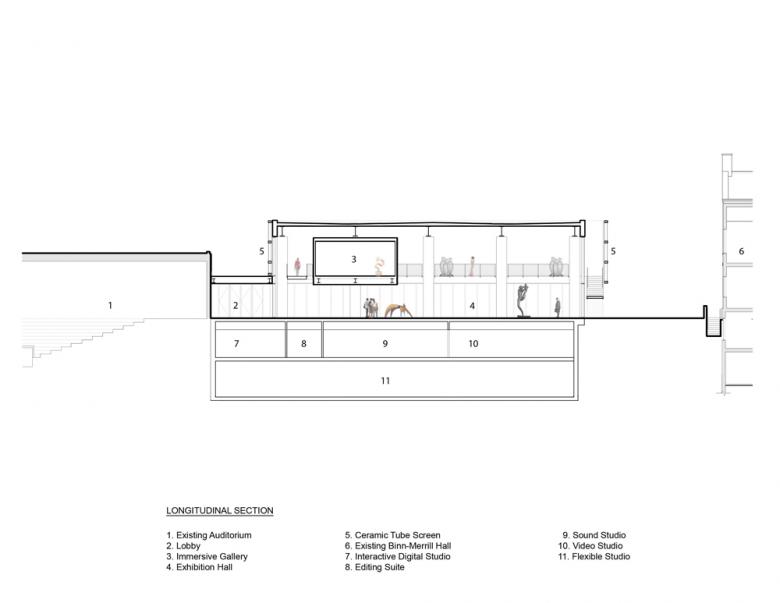
The New York State College of Ceramics at Alfred University covers the art and science of ceramics through its two divisions: the School of Art & Design and the School of Engineering.The former recently expanded with a two-story building that is appropriately clad in a ceramic tube screen. ikon.5 architects' design skillfully expresses the College's focus through the facade's articulation. The architect answered some questions about the recently completed building.
What were the circumstances of receiving the commission for this project?
The expansion of the School of Art and Design was initiated as a response to a Request for Proposal. The State University Construction Fund issued the RFP and shortlisted five firm for interviews. We won the commission after presenting at our interview.
Can you describe your design process for the building?
Our design process for the building explored a solution through making sculptural material collages as pieces of artwork. These explorations informed the form, shape and materiality of the project. The artistic approach to solving an architectural problem was chosen as a way of creating a solution that represented the heritage of the region and a expressive representation of the School of Art & Design.
How does the completed building compare to the project as designed? Were there any dramatic changes between the two and/or lessons learned during construction?
There were very few differences between the design project and the completed building.
How does the building compare to other projects in your office, be it the same or other building types?
The School of Art and Design is a unique project in our office because it used a significant amount of architectural terra cotta as the exterior envelop of the building.
How does the building relate to contemporary architectural trends, be it sustainability, technology, etc.?
The terra cotta façade is a rain and solar screen which reduces heat gain on the envelope of the building. In addition, the screen shields direct sunlight from the art objects within. In order to develop this expressive ceramic façade, we worked with Boston Valley Terra Cotta and a standard tube and color palette.
Email interview conducted by John Hill.
School of Art & Design at New York State College of Ceramics
2011
Alfred, NY
Client
State University Construction Fund - The State of New York
Architect
ikon.5 architects
Princeton, NJ
Design Principal
Joseph Tattoni
Project Architect
Michael Zareva
Managing Principal
Arvind Tikku
Structural Engineer
Ysrael A. Seinuk, P.C.
MEP/FP Engineer
Joseph R. Loring & Associates
Lighting Designer
Illumination Arts
Contractor
Pike Construction Company
Civil Engineer
Costich Engineering
Architectural Terra Cotta
Boston Valley Terra Cotta
Architectural Curtain Wall
Vistawall
Metal Panels
Rheinzinc
Gallery Lighting
LSI Lighting
Building Area
19,000 sf






