Sigal Museum

Sigal Museum

6. February 2012

Sigal Museum
2010

Easton, PA

Client
Northampton County Historical & Genealogical Society (NCHGS)

Architect
Spillman Farmer Architects
Bethlehem, PA

Design Principal
Joseph N. Biondo, AIA

Managing Principal
James Whildin, AIA

Project Manager
Randy Galiotto

Project Team
Michael Metzger, AIA
Wayne Stitt, AIA
Joanne Titcomb
Brian Brandis
David Wrigley
Sierra Krause
Deirdre Kwiatek

Construction Manager
Alvin H. Butz, Inc.

Building Area
31,626 sf

The SigalMuseumis an existing historic building whose façade was completely re-envisioned with contemporary materials and contextual design.

What were the circumstances of receiving the commission for this project?

We completed a visual arts building for Lafayette College in downtown Easton, Pennsylvania. The project was an adaptive reuse of a turn of the century auto dealership into a collaborative learning environment for visual arts. The museum stakeholders appreciated our response to program, the urban condition and the transformation of an existing structure. We demonstrated a keen understanding for adaptive reuse and thoughtfully repurposing existing buildings. They determined that we were the most appropriate team to collaborate with to realize their vision.

The Sigal Museum’s identifying signage is incorporated into the façade, which features a rainscreen of locally quarried slate.

Can you describe your design process for the building?

Our design process is consistent with our mission which is to empower people to make inspiring, thought provoking and responsible decisions related to the built environment. Through this process, we explore each project’s unique opportunity for honest expressive solutions specifically suited to the building’s site and use. Our priority is to develop an architecture that is rational, leveraging a distinct and honest building vocabulary that shows clear evidence of how and why it was made. We are deeply influenced by place and choose honest materials which honor the location and achieve a lasting patina as they age.

Museum visitors explore local history through the multi-dimensional interactive display wall.

How does the building compare to other projects in your office, be it the same or other building types?

Regardless of building type or scale, our designs are similar in many ways. They all consist of a clear diagram, rational plan; the buildings are tactile and material based, and contains thoughtful detailing throughout. Our buildings are distilled to what is absolutely necessary and show clear evidence of how it is made in an effort to become a learning experience for the users.

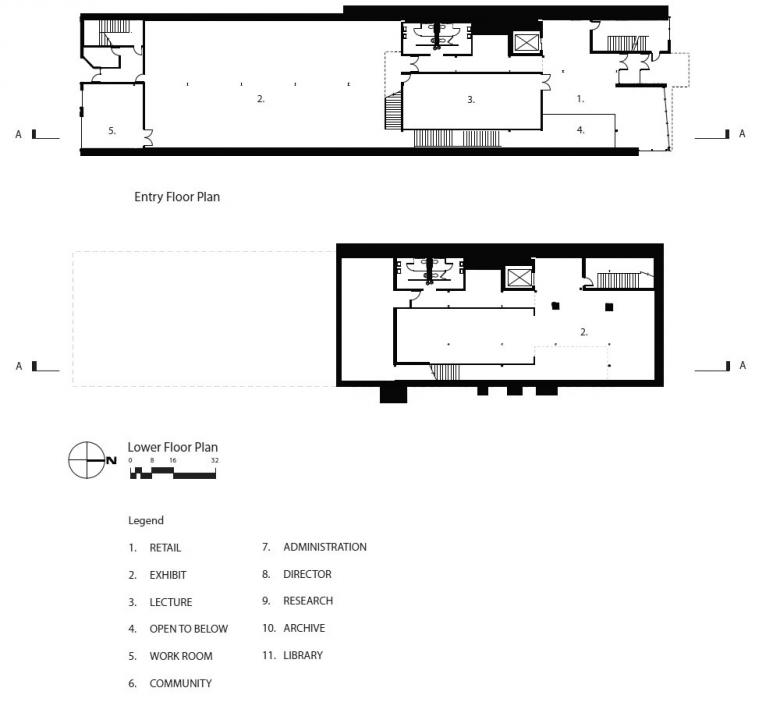
Lower and entry floor plans

How does the building relate to contemporary architectural trends, be it sustainability, technology, etc.?

Although we have become a fashion conscience society, our buildings do not rely on contemporary trends. They are guided by the fundamental principles of critical regionalism over style, or abstract concept. In addition, we are deeply influenced by the Shaker Philosophy of Design which is “do not make something that is not necessary or useful…..” The architecture we produce attempts to be authentic, resourceful and is fundamentally grounded in the unique history of each context.

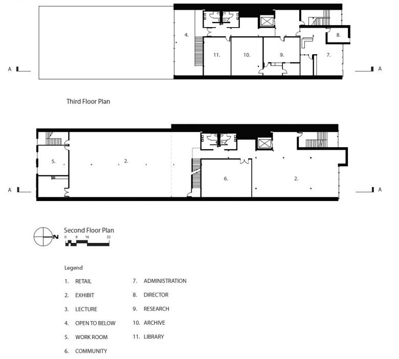
Second and third floor plans

Are there any new/upcoming projects in your office that this building’s design and construction has influenced?

We have many exciting projects of various scales and building type in design. Each project is influenced by the explorations of the last. Our architecture favors the tectonic, tactile and buildable materials harvested from the earth. We are fascinated with building materials and systems and have an unending curiosity for taking ordinary materials to extraordinary results. We will continue to push toward an architecture that is clear, precise and honest.

Email interview conducted by John Hill.

Building section

Sigal Museum
2010

Easton, PA

Client
Northampton County Historical & Genealogical Society (NCHGS)

Architect
Spillman Farmer Architects
Bethlehem, PA

Design Principal
Joseph N. Biondo, AIA

Managing Principal
James Whildin, AIA

Project Manager
Randy Galiotto

Project Team
Michael Metzger, AIA
Wayne Stitt, AIA
Joanne Titcomb
Brian Brandis
David Wrigley
Sierra Krause
Deirdre Kwiatek

Construction Manager
Alvin H. Butz, Inc.

Building Area
31,626 sf

Related articles 

Other articles in this category