Smith Creek Pedestrian Bridge

Smith Creek Pedestrian Bridge

18. November 2013

Smith Creek Pedestrian Bridge
2013
Clifton Forge, Virginia
 
Client
Masonic Amphitheatre LLC
 
Architect
design/buildLAB
Blacksburg, VA

Professors
Marie Zawistowski, Architecte DPLG – Professor of Practice; Keith Zawistowski, AIA, NCARB, GC – Professor of Practice

Student Team
Bethel Abate, Aiysha Alsane, Justin Dennis, Jennifer Leeds, Stephanie Mahoney, Stephen Perry, Amanda Schlichting, Claudia Siles, Samuel “Aaron” Williams, Ryan Hawkins, Catherine Ives, Anna Knowles-Bagwell, Michael Kretz, Fernanda Rosales, Katherine Schaffernoth, Daniel Vantresca, Bryana Warner

Structural Engineer (vibration & flood loads)
Setareh Structural Engineering

Structural Design (gravity loads)
Mario Cortes
 
Hydraulic Engineer
Hassan Water Resources

Geotechnical Engineer
Froehling & Robertson, Inc.

Steel Fabrication Consultants
Jeffrey Snider, Matthew Tolbert

General Contractor
Commonwealth Contracting Services

Structural Steel
BMG Metals

Metal Skinned Composite Panels
Alpolic

Cable Railing
Jakob

White Oak Decking
Union Church Millworks

Paint
Sherwin Williams

Site Area
1.2 acres

Built Area
571 sf

Photos
Jeff Golberg/Esto

Drawings
design/buildLAB

The Bridge on the left and the Amphitheatre on the right

What were the circumstances of receiving the commission for this project?

The Smith Creek Pedestrian Bridge project was the second phase redevelopment of a post-industrial brownfield into a public park and performance space. Phase one was initiated after a group of design/buildLAB students completed an urban study of Clifton Forge, VA. The study identified the concurrent needs to both remove industrial production and to create public space at the center of town. A combination of local volunteers, government leaders and a philanthropic foundation were able to arrange a land swap to move a tire retreading facility to an industrial park and to make its land available for a civic infrastructure project. The LAB then led a campaign to marshal the donated professional services, the discounted materials, and the grant funds needed for the park and amphitheatre. Phase one (the Amphitheatre) was funded, designed and built in 2011-2012 and phase two (the Bridge) was funded, designed and built by a our subsequent group of students in 2012-2013.

Looking toward Church Street

Can you describe your design process for the bridge?

This project is the collaboration of seventeen third-year undergraduate architecture students. Our design process began with the research of precedents, the documentation of relevant codes and regulations and with interviews of community members. Initially we created individual designs. Slowly, these designs were merged on the basis of similar ideas, materiality, and construction, culminating in one schematic design. We then broke into three groups: Ramp/Stair, Hub, and Bridge/Span. Within these groups of approximately five students we developed and detailed our respective portions. Our groups met regularly to ensure continuity.

The Bridge in the foreground and the Amphitheatre beyond

How does the completed building compare to the project as designed? Were there any dramatic changes between the two and/or lessons learned during construction?

The completed bridge is almost identical to our design. However, our primary obstacle during the design process was the creek's unusually high flood elevation. After schematic design, further reinforcement was necessary to sustain extreme lateral loads. Collaborating with a structural engineer, we integrated a steel truss into the bridge deck.

We initially imagined this as very obtrusive but managed to design it to sit flush with the main beams and to compliment the rhythm of the deck framing and bolting pattern. Taking this project from design to realization required us to face the detailing and specification challenges often avoided in architectural education and to learn fundamental skills such as teamwork and patience.

View from above

How does the building compare to other projects at the design/buildLAB, be it the same or other building types?

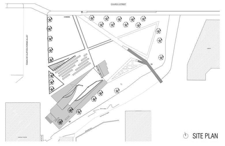
Although the design/buildLAB realizes only one project each year, each of the projects to date have built on the identified resources and uncovered needs of the previous projects. The Smith Creek Pedestrian Bridge serves to link the previous year's Masonic Amphitheatre to the town's historic center. Even though the projects were designed by two different groups of students, our bridge team sought to maintain visual cohesiveness with its neighboring amphitheatre. This led to the use of the same white oak decking, the same metal cladding and to the decision to expose steel as the primary structural element of the bridge.

Further, the bridge and amphitheatre share the common goal being genuinely public and belonging to a broad cross section of the community. Similarly to the farmer’s market and the amphitheatre, the LAB used as much salvaged and locally sourced material as possible. To this end all of our framing lumber was reclaimed from an industrial warehouse that previously occupied the amphitheatre site and all of our decking was locally harvested and locally sawn.

Detail of steel columns

How would you describe the architecture of Virginia and how does the project relate to it?

Virginia's most prominent works of architecture are its iconic barns and farmhouses. Both old and new, these honest and functional structures settle into the landscape with remarkable ease and serve as a testament to the enduring environmental awareness their designer/builders.

The Smith Creek Pedestrian Bridge aspires to elegance of economy and purpose. Its form is clear. Its purpose is utilitarian. Its material pallet is modest. And, its impact on the land is light. The Smith Creek Pedestrian Bridge is the modern expression of Virginia's timeless agrarian sensibilities.

Email interview conducted by John Hill.

Site Plan
Exploded Axonometric
Construction Photo

Smith Creek Pedestrian Bridge
2013
Clifton Forge, Virginia
 
Client
Masonic Amphitheatre LLC
 
Architect
design/buildLAB
Blacksburg, VA

Professors
Marie Zawistowski, Architecte DPLG – Professor of Practice; Keith Zawistowski, AIA, NCARB, GC – Professor of Practice

Student Team
Bethel Abate, Aiysha Alsane, Justin Dennis, Jennifer Leeds, Stephanie Mahoney, Stephen Perry, Amanda Schlichting, Claudia Siles, Samuel “Aaron” Williams, Ryan Hawkins, Catherine Ives, Anna Knowles-Bagwell, Michael Kretz, Fernanda Rosales, Katherine Schaffernoth, Daniel Vantresca, Bryana Warner

Structural Engineer (vibration & flood loads)
Setareh Structural Engineering

Structural Design (gravity loads)
Mario Cortes
 
Hydraulic Engineer
Hassan Water Resources

Geotechnical Engineer
Froehling & Robertson, Inc.

Steel Fabrication Consultants
Jeffrey Snider, Matthew Tolbert

General Contractor
Commonwealth Contracting Services

Structural Steel
BMG Metals

Metal Skinned Composite Panels
Alpolic

Cable Railing
Jakob

White Oak Decking
Union Church Millworks

Paint
Sherwin Williams

Site Area
1.2 acres

Built Area
571 sf

Photos
Jeff Golberg/Esto

Drawings
design/buildLAB

Related articles 

Other articles in this category