Snowhaus

Snowhaus

14. January 2013

Snowhaus
2012

Anchorage, AK

Architect

Mayer Sattler-Smith
Anchorage, AK

Design Principals
Klaus Mayer
Petra Sattler-Smith

Structural Engineer
BBFM Engineers, Forrest Braun

Site Area
5,500sf

Building Area
3,885sf

Photos and Drawings
Mayer Sattler-Smith

Rear elevation

What were the circumstances of receiving the commission for this project?

This project came about from the desire to find a new office location for us, and also to generate a new project for us. We eyed a property next door, but the existing building was still used as a upholstery shop. The real estate agent asked if we were interested in an old house right next door. The property was vacant for the last 4 years since the previous owner passed away. There were some roof leaks and lots of water damage. 

Exterior detail

Can you describe your design process for the building?
 
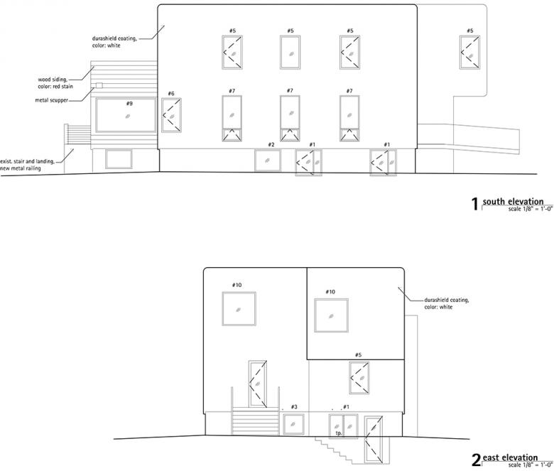
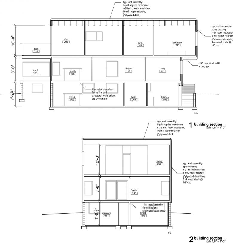
This 1939 dwelling, although located in a business district, seemed to be a good candidate for some experimentation. The basement holds a 3-bedroom rental unit, the first floor a 1000-square-foot office, and the second floor a 1250-square-foot living unit. The existing 2x4 construction needed to be updated to a more energy efficient assembly. We chose to play with the idea of adding a polyurethane foam on the exterior side of the stud frame construction. This creates a seamless layer of insulation with a real R-value of R25. It also allows for exposing some of the stud walls to the interior of the space. The roof and walls are covered with a liquid applied membrane for a white finish.
 
We decided to take the old gable roof off and frame up a new 10' wall for a full second story. For the bedroom upstairs we pushed the wall 4' out creating a cover for the existing exterior stairs to the basement below.

Exterior detail

How does the completed building compare to the project as designed? Were there any dramatic changes between the two and/or lessons learned during construction?

There were some significant changes to the building design to bring the project in line with the minimal budget. For example, one option with a rooftop deck was explored. The project phasing was also adjusted to the available financing.

The building in context

Are there any new/upcoming projects in your office that this building’s design and construction has influenced?

We hope to apply the lessons learned from this project to others in regards to the energy efficiency aspect. We might also do more projects where we will take on other roles, e. g. owner/redeveloper. 

First floor plan

How would you describe the architecture of Alaska and how does the building relate to it? 

Alaska offers extremely varied conditions. The coast up in the Arctic is arid and has very little daylight, whereas southeast alaska is very similar to the coastal areas in British Columbia with rainforest and big trees. The special light conditions and short daylight in winter is one constant design consideration. Energy efficiency is very important topic in our work and in general. Alaska is still a young state with lots of opportunities for architecture and placemaking. 

Email interview conducted by John Hill.

Elevations
Building sections

Snowhaus
2012

Anchorage, AK

Architect

Mayer Sattler-Smith
Anchorage, AK

Design Principals
Klaus Mayer
Petra Sattler-Smith

Structural Engineer
BBFM Engineers, Forrest Braun

Site Area
5,500sf

Building Area
3,885sf

Photos and Drawings
Mayer Sattler-Smith

Related articles 

Featured Project 

Atelier KI JUN KIM

House by the Wall

Other articles in this category