US Building of the Week

St. Thomas’ Parish / Madison House

Hickok Cole | 15. February 2021
Photo: Ron Blunt 
Project: St. Thomas’ Parish / Madison House, 2019
Location: Washington, DC, USA
Client: St. Thomas’ Parish / May Riegler (Madison House now owned by Capital Security Advisors)
Architect: Hickok Cole
  • Design Principals: Laurence Caudle, Yolanda Cole
  • Project Architect: Stefano Sani
  • Project Manager: Bertin Radifera
  • Project Team: Peter McCarthy, Quy Nguyen, Ryan Sloan, Jeff Lockwood, Andrea Lucas, Matt Horn, Ryan Dirks
Structural Engineer: Linton Engineering, LLC
MEP/FP Engineer: Metropolitan Engineering, Inc.
Interior Designer: Zeus Living (residential interiors only)
Contractor: Forrester Construction (St Thomas) / Snead Construction (Madison House)
Stone Consultant: Rugo Stone  
Historic Preservationist: Mark Rabinowitz
Building Areas: 18,000 sf (church); 47,869 sf (residential with 55 units)
Photo: Ron Blunt 
What were the circumstances of receiving the commission for this project?

St. Thomas Episcopal Church was originally designed in the late 1800s by Philadelphia architect, Theophilus Chandler, followed by the construction of its Parish Hall in 1922. Frequented by Franklin Roosevelt, Harry Truman, and many other prominent Washington, DC residents throughout its history, the church was long considered a sacred relic within the Dupont Circle community. It continued to play a significant and supportive role during the civil rights movement in the early 1960s, and again for the LGBT community in the 1970s and 1980s as one of the few churches conducting funerals for those who died from HIV and AIDS.  

In 1970, an arson fire destroyed much of the original church, leaving behind only a few walls and a portion of the Parish Hall, and forcing the congregation to meet in a much smaller on-site structure for the years following. Several decades later, St. Thomas resolved to rebuild and partnered with a local developer who would help alleviate some of the construction costs by using part of the property to construct a new residential building. The resulting renovation and development transforms the English Gothic church ruins and surviving parish hall into a 47,869-square-foot, 55-unit multifamily residence that complements the character of the surrounding town homes and an 18,000-square-foot church that reinvigorates the congregation’s presence within its community.

Photo: Ron Blunt 
Please provide an overview of the project.

Rising to a height of 65 feet, the project is composed of three distinct sections, including the repurposed parish hall with two added floors, the restored cloister entrance leading to a new block of apartments, and the new church along 18th Street. The final design concept supports a resolution the developer made in partnership with the Dupont Circle Conservancy, which includes the use of high-quality materials as well as gradual steps back in height to maintain the neighborhood’s pedestrian experience. A direct result of this decision is the creation of several outdoor terrace spaces for residents to enjoy. From east to west, the development blends with the neighborhood, transitioning seamlessly from the nearby townhomes to the residence, and ending with St. Thomas Parish.

To accommodate the new residence, the bulk of the church shifted to 18th Street and was stacked vertically. The church’s contemporary facade features a faceted surface of terracotta modules, traversed by a dynamic sequence of multi-height openings, filtered by a sunscreen veil of gently projecting terracotta baguettes.

Photo: Ron Blunt 

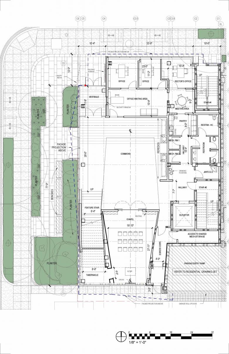
The interior fit-out consists of an elevator lobby and four floors above grade. The first floor is comprised of a lobby, chapel, and offices. On the second floor is a double-height sanctuary, which serves as the primary worship space and boasts high acoustical ceilings and paneling, and a mezzanine level choir loft featuring a preserved organ from the original church. The remaining floors house a kitchen, fellowship hall, green roof, and terrace to support gatherings and events, and create additional streams of revenue for the church.

St. Thomas Parish opened successfully in April of 2019, welcoming the congregation by celebrating its first service on Easter Sunday, signifying the church will remain cemented in the fabric of the community for years to come.

Photo: Ron Blunt 
What are the main ideas and inspirations influencing the design of the project?

The church’s contemporary design is a symbolic representation of its rise from the ashes and progressive approach. To articulate this concept, the four-story church leads the observer from the glazed corner entrance, through the rising profile of the ascending stair and the multi-height openings of the façade and ending in a campanile-inspired tower that provides natural light during the day and glows as a beacon for the community at night.

Meanwhile, its terracotta module facade stands out amid the surrounding Dupont Circle neighborhood, which is complemented by the incorporation of the remaining historic ruins to reflect a perfect blend of the past and present and seamlessly achieve the client’s vision for the new development.

Photo: Ron Blunt 
How does the design respond to the unique qualities of the existing building?

Embracing the church’s history and the scale and character of the surrounding neighborhood was key to the client’s vision. Remaining relics of the parish hall façade were preserved and incorporated into the residential entryway to create a bond between the development’s main components. 

An original altar was deconstructed and cataloged in a rigorous mapping process that allowed the pieces to be transported off site for cleaning and proper preservation before being returned to the church for reinstallation in the entry vestibule. Upon entering the church today, members and guests are greeted with the ornate memorial for all to reminisce on what was once described as “the most beautiful ecclesiastical building in the District.”

Photo: Ron Blunt 
How did the project change between the initial design stage and its completion?

To address community concerns about aesthetics and ensure the development would establish a proper relationship with the existing properties along 18th and Church Streets, the project underwent many stages of review and approval through several entitlement organizations including the Dupont Circle Conservancy and the Historic Preservation Offices in addition to keeping in contact with neighborhood organizations like the Dupont Circle Advisory Neighborhood Commission. Following nearly five years of negotiations, the design concept supports a resolution made by the Conservancy, including the implementation of high-quality materials and numerous steps in height which gives appropriate identity to each of the residential and church components in a cohesive and unique composition.

Photo: Ron Blunt 
Was the project influenced by any trends in energy-conservation, construction, or design?

The church’s west facade is efficiently designed to protect the interior from over exposure and overheating with terracotta sunshades that strategically help to block the sun while allowing filtered light through the baguettes. The church’s light tower, clad in terracotta and curtain wall, is reminiscent of an Italian campanile that serves to both announce the church’s presence from afar as well as an energy feature that captures light from the rising sun during morning services.

Both the church and residence have green roofs to help manage storm water on-site and contribute to the potential reduction of the building’s energy and water bills. The building meets the DC Green Building Act requirements.

Email interview conducted by John Hill.

Photo: Ron Blunt 
Residential lobby (Photo: Meero Photography via Zeus Living)
Residential lobby (Photo: Meero Photography via Zeus Living)
Before (Photo: Hickok Cole)
Before (Photo: Hickok Cole)
Drawing: Hickok Cole
Drawing: Hickok Cole
Drawing: Hickok Cole
Drawing: Hickok Cole

Other articles in this category