Studio House on the Tsuyazaki Coast

Studio House on the Tsuyazaki Coast

1. January 2015

Studio House on the Tsuyazaki Coast
2012
Fukuoka

Architects
Masao Yahagi Architects

Design Principal
Masao Yahagi

Project Team
Yoshiko Okada

Structural Engineer
Nawakenji-M/Kenji Nawa

Contractor
Iko House Co. 

Kitchen
TOTO

Bath
LIXIL

Toilet
TOTO

Hardware
BEST

Lighting Fixture
Endo Lighting, NIPPO, KOIZUMI

Site Area
276.03 ㎡

Building Area
138.23 ㎡

Total Floor Area
179.69 ㎡

Photo
Koichi Torimura

Exterior from the south-east, showing tunnel-like interior.

Please give us an overview of the project.

The clients for this project were an artist who creates large, soft sculptures from jute fiber, and her husband, a graphic designer and sign-maker. This is a combined home and workspace for the two of them, which they also use as a gallery on occasion.  They requested a large work and display space measuring at least 4.2 meters wide and 7.2 meters deep, with a ceiling of 5 meters or more; work areas for both husband and wife; a minimal living area; a driveway for loading; abundant natural light but no direct sunlight, because they would be dealing with works of art; and a simple, economical design. They originally envisioned a steel-framed warehouse-like structure, but because the site is fairly close to the coast, with sandy soil, a steel structure would have required ground reinforcement, and rust from the salt air was also a concern. These factors necessitated a light wood-frame structure.  

The building is located on a historic street in a small tourist district.
Exterior from the south, showing walls twisted to block direct sunlight.

What was most important for you during the design process?

The question of how to create a large, open space using conventional wood-framing techniques was the central theme of this project from start to finish. Ultimately we determined the direction of the project by considering this problems in conjunction with what at first appeared to be an entirely unrelated challenge—the problem of how to attain adequate natural lighting without letting in any direct sunlight.

Large multi-use space with wood-framed hyperbolic-paroboloid shell walls.
Looking out from the multi-use space to the street.

What challenges did you face in the project? How did you respond to them?

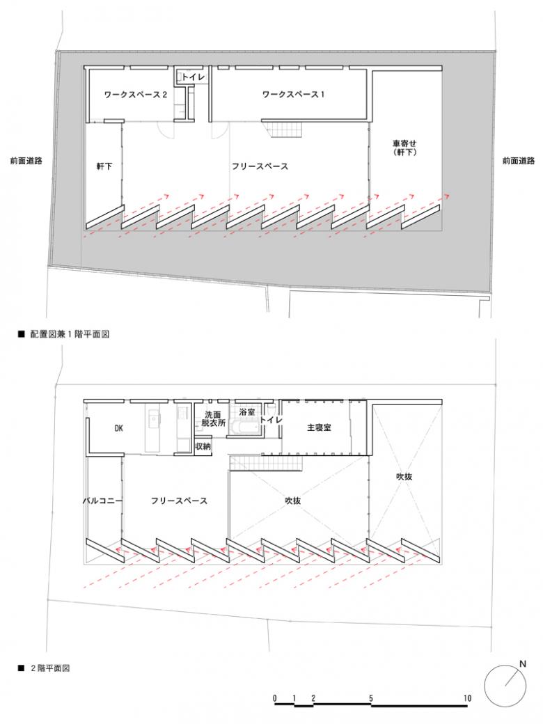
For the general shape of the building, we decided on a long tunnel form running east to west, as the shape of the lot dictated. However, we had quite a difficult time designing a wood frame with enough structural strength in the short direction, which tends to be weak in long, thin structures. In the end, the first-floor work space and second floor living space became the structural core on the north side、while a series of twisted rectangular walls on the south side ensured that the building had adequate strength both lengthwise and crosswise. These walls are a string of fragmented hyperbolic paraboloid shells, which is a type of structure in which the wall surface also functions as a column. The gaps between the twisted walls face towards the south on the first floor, so direct sunlight only hits the floor, while on the second floor they face north, so only diffuse light enters. We took a number of steps to avoid having to use special construction methods to achieve these twisted walls. Each wall has five vertical timbers in it, with the central timber perfectly vertical and the timbers on each side tilted at two different angles. The construction was actually easier than the conventional Japanese wood framing method. After creating this three-dimensional frame, we covered it with base wall materials capable of adhering to a curved surface (such as a double layer of 6-mm structural plywood or MOISS wallboard).

Soft, diffuse light filters between the twisted walls into the multi-use space.
View of second floor multi-use space and kitchen/dining area 
Kitchen/dining area

What did you learn from this project? What will you take from it to future projects?

This project renewed my conviction that no mater how tough the design conditions are, if you persist in applying your imagination and innovation, you’ll find a way out. In order to succeed, I think it’s important to have as few preconceptions as possible, search for ideas that solve multiple problems simultaneously, and make sure those ideas don’t just solve problems but also contribute to the appeal of the space. 

Evening, looking into the house from the street.
In the evening, light seeps out from between the twisted walls.

How does this project fit into current architectural trends such as sustainability, social function, or technology? 

The town of Tsuyazaki once thrived as a fishing port and post town, but in recent years has fallen on hard times. Nevertheless, through the efforts of the local community to organize activities such as carriage rides through historic districts, it’s become popular as a minor tourist destination. The husband was born and raised in the town and wanted this building to contribute in a small way to the revival of the community. When I proposed this design with its distinctive exterior, I was a bit concerned that they would react negatively, but in fact they were really happy with it. A short time after that, the clients showed me a photograph of the old brewery across the street taken when it was newly built. The white plaster walls and black cedar timbers stood out among the thatched-roof houses of the town, but today that building is the symbol of the town. They told me they hoped the building I was designing would also eventually become a symbol of the town. Hearing that renewed my sense of responsibility and hope for the role a single building can play in a community.

The building under construction. 
Diagram 
Plan 


E-mail interview by Yuna Yagi (translated from Japanese by Winifred Bird)  

Studio House on the Tsuyazaki Coast
2012
Fukuoka

Architects
Masao Yahagi Architects

Design Principal
Masao Yahagi

Project Team
Yoshiko Okada

Structural Engineer
Nawakenji-M/Kenji Nawa

Contractor
Iko House Co. 

Kitchen
TOTO

Bath
LIXIL

Toilet
TOTO

Hardware
BEST

Lighting Fixture
Endo Lighting, NIPPO, KOIZUMI

Site Area
276.03 ㎡

Building Area
138.23 ㎡

Total Floor Area
179.69 ㎡

Photo
Koichi Torimura

Related articles 

Featured Project 

Atelier KI JUN KIM

House by the Wall

Other articles in this category