Sugamo Shinkin Bank / Ekoda branch

Sugamo Shinkin Bank / Ekoda branch

1. February 2014

Sugamo Shinkin Bank / Ekoda branch
2012
Tokyo

Client
Sugamo Shinkin Bank

Architects
emmanuelle moureaux architecture + design

Design Principal
Emmanuelle Moureaux

Contractor
Shiraishi Construction Corporation

Site Area
574.08㎡

Building Area
405.35㎡

Total Floor Area
713.81㎡

Photo
Daisuke Shima / Nacasa & Partners Inc.

Front exterior
Looking towards entrance

Please give us an overview of the project. 

Ekoda is the fourth branch I have designed for Sugamo Shinkin Bank, and the third full building for them. In each of these projects my design has responded to the same essential request from the client: “a bank customers feel happy to visit."

The site is located in a commercial district with many stores, facing onto a bustling, narrow sidewalk. I was inspired to express this sense of proximity between the building and its surrounding urban environment by merging the exterior and interior spaces. The main structure is set back approximately two meters from the property line, behind a timber-decked peripheral space filled with colorful nine-meter-tall sticks. These 29 exterior sticks are reflected on the transparent glazed façade and mix naturally with 19 interior sticks placed randomly inside the building. This rainbow shower restores color and playfulness to the town.

Entering the building, visitors notice they are still in an exterior courtyard leading to the bank's interior. Here also, the inside and outside are integrated. Walking past the glazed courtyard, visitors find themselves in a cafe-like open space filled with natural light. The bamboos in the courtyard extend skyward in concert with the colorful sticks. The exterior deck, interior open area, exterior courtyard, and interior teller counters compose four layers of space. The layers are reflected on the glazing, creating a sense of depth as they combine with complex shadows.

The nine-meter-tall sticks mimic a rainbow shower

What was most important for you during the design process? 

Breaking down the architectural boundary that’s conventionally formed by exterior walls, and instead using the colored sticks to create an ambiguous space where inside and outside blend; developing depth and rhythm through the overlaps and reflections of the sticks; evoking the sensation of being inside a shower of color. 

The boundary between outside and inside is ambiguous 
The open lounge is visible to the left.

What challenges did you face in this project, and how did you respond to them?

Developing a method for manufacturing the thin, nine-meter tall sticks was a challenge, as was calculating the amount of deflection from earthquakes or strong winds. 

Bamboo growing in the courtyard echoes the form of the sticks

What did you learn from this project? What will you take from it to future work?

This project nicely represents my approach to design, which I call “shikiri,” or “dividing space with colors.”  I use colors as three-dimensional elements, like layers, in order to create spaces, not as a finishing touch applied to surfaces. For me color is the most important element in the creation of space. In this project the shape of the color was linear rather than planar. I’ve worked with forms composed from colored lines many times before, such as in my “toge” project [a modular product that can be assembled into room dividers or other shapes], but this was the first time for me to apply the concept at an architectural scale. In the future I’d like to continue exploring the potential of colored lines to form structures. 

The café-like open space is filled with light and color
A glimpse of sky visible above the courtyard

How does this project fit into current architectural trends such as social and environmental responsibility or technical developments?

In terms of architecture’s social role, I was aiming for a credit union that customers would want to spend even one second longer than usual in. The design shrinks the distance between the building and its urban surroundings, and functions as a resting place within the city. I was trying to break down the image of the bank as a hard, formal place full of tension. 

The view from the second floor reveals complex reflections and layered depth. 

What is the role of architecture and architects in society?

Evoking emotion.

Looking across the courtyard to the reception area
Site plan 
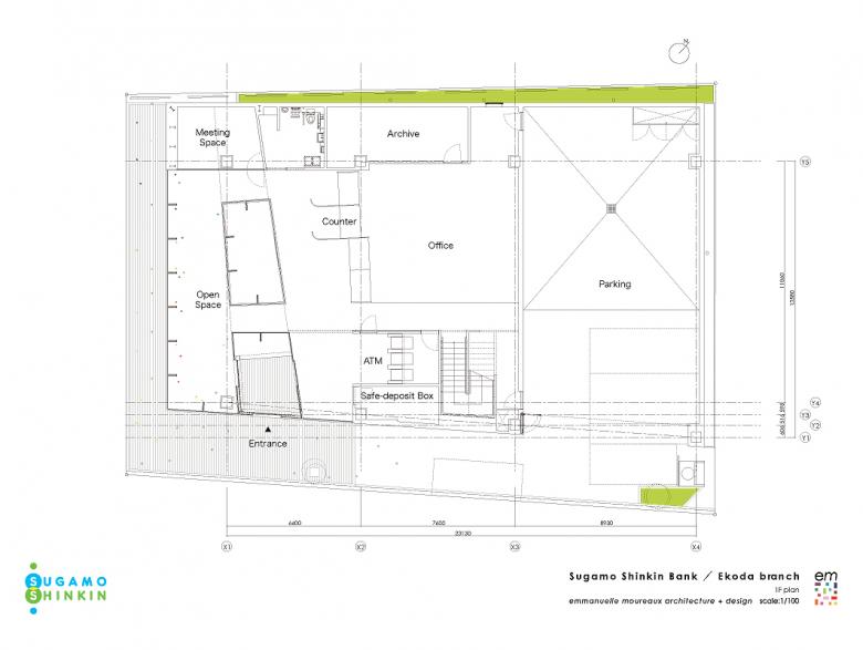
1st Floor plan 
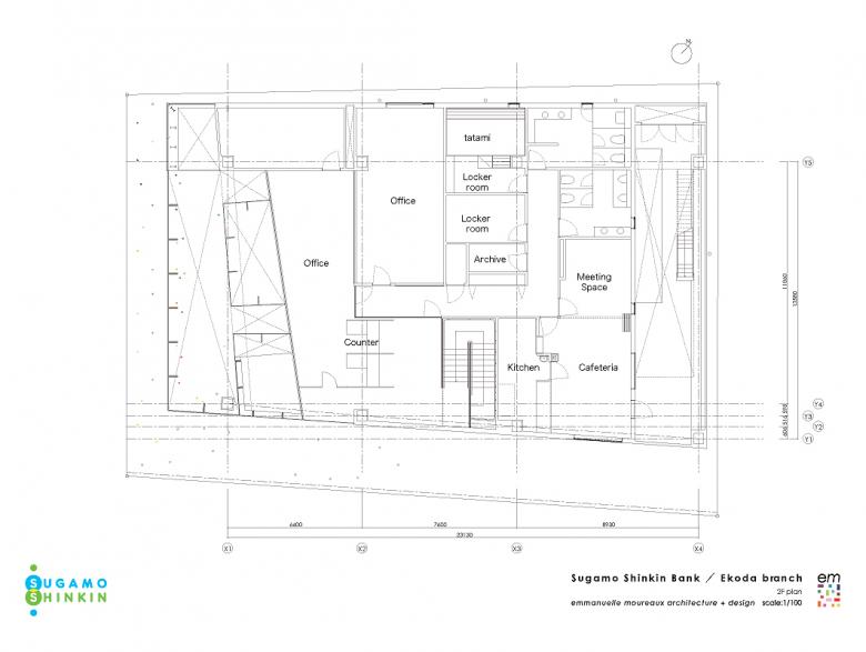
2nd Floor plan 


E-mail interview by Yuna Yagi (translated from Japanese) 

Sugamo Shinkin Bank / Ekoda branch
2012
Tokyo

Client
Sugamo Shinkin Bank

Architects
emmanuelle moureaux architecture + design

Design Principal
Emmanuelle Moureaux

Contractor
Shiraishi Construction Corporation

Site Area
574.08㎡

Building Area
405.35㎡

Total Floor Area
713.81㎡

Photo
Daisuke Shima / Nacasa & Partners Inc.

Related articles 

Featured Project 

Atelier KI JUN KIM

House by the Wall

Other articles in this category