Sugar Hill Development

2. November 2015

Sugar Hill Development

2015
New York City, USA

Client
Broadway Housing Communities

Design Consultant
Adjaye Associates
London, England

Architect of Record
SLCE Architects LLP

Landscape Architect
Rader + Crews

Structural Engineer
Ysrael A. Seinuk, P.C.

Mechanical Engineer
Rodkin Cardinale, P.C.

Facade Consultant
Israel Berger & Associates LLC

LEED Consultant
Steve Winters Associates Inc.

Contractor
Mountco Construction and Development

Owner's Representative
Zubatkin Owner Representation LLC

Building Area
191,000 sf

Photographs
Wade Zimmerman
Looking east on West 155th Street

The building is located on the southeast corner of St. Nicholas Avenue and West 155th Street, a prominent spot that overlooks a park to the north and falls away toward the Harlem River on the east. The building responds to New York City's zoning code by stepping back at the ninth floor, a move that is accompanied by an overhang of the same size on the back of the building.

West elevation facing St. Nicholas Avenue
Detail of north elevation facing 155th Street

The building's strong presence is accentuated by its dark exterior, which is made up of precast concrete panels. With this choice of material and construction, the window placement is relatively unencumbered, reflected in the random placement of the small windows on the east and west elevations. Further, the serrated north and south facades incorporate the ventilation grilles in a way that is less distracting than most New York City affordable housing projects. A vertical striping permeates the panels, though at certain angles the rose-inspired pattern of circles is evident, what is an artistic touch on a fairly utilitarian wrapper.

Ninth floor terrace
Museum courtyard

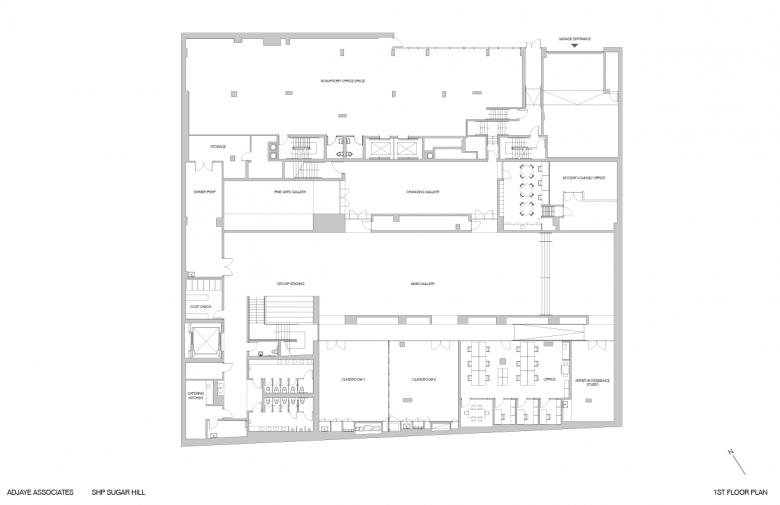
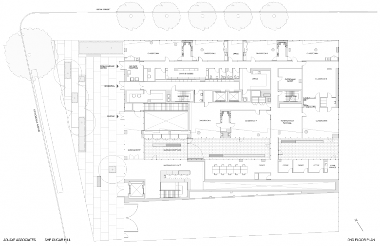
One of the most remarkable aspects of the project is its programmatic diversity. Multi-family residential buildings in New York City—be they affordable, market-rate or a mix of both—tend to be exclusively residential minus some ground-floor retail. The Sugar Hill Development includes public spaces for art, community spaces for children and adults, and office spaces for the developer and other non-profits. These programmatic additions are expressed on the exterior, particularly on the first and ninth floors overlooking the park on the north; from here they are horizontal glass bands within the otherwise gray precast skin.

Museum gallery
Early Childhood Center

Adjaye Associates, which is based in London but has offices in New York and other locations, was responsible for the building design as well as the interiors in all spaces but the apartments. While the exterior is dark and colorless, the interior is light and full of color, especially in the spaces for children. The importance of these spaces is evident in statements by Adjaye at the time of the museum's opening:

[The museum] captures the spirit of the project’s aspiration to reinvent the social housing model. Offering a holistic approach to the needs of the Sugar Hill community, the building has an integrated cultural program, which places childhood development and art at its center. I am thrilled to see this wonderful first exhibition illuminate not only the galleries but the whole neighborhood. this is the moment when the building really comes to life.

Level 1 Plan
Level 2 Plan
Typical residential floor plan
North elevation
West elevation
North-sout section looking east

Text by John Hill

Sugar Hill Development

2015
New York City, USA

Client
Broadway Housing Communities

Design Consultant
Adjaye Associates
London, England

Architect of Record
SLCE Architects LLP

Landscape Architect
Rader + Crews

Structural Engineer
Ysrael A. Seinuk, P.C.

Mechanical Engineer
Rodkin Cardinale, P.C.

Facade Consultant
Israel Berger & Associates LLC

LEED Consultant
Steve Winters Associates Inc.

Contractor
Mountco Construction and Development

Owner's Representative
Zubatkin Owner Representation LLC

Building Area
191,000 sf

Photographs
Wade Zimmerman

Related articles 

Other articles in this category