U.S. Building of the Week
Temple Israel
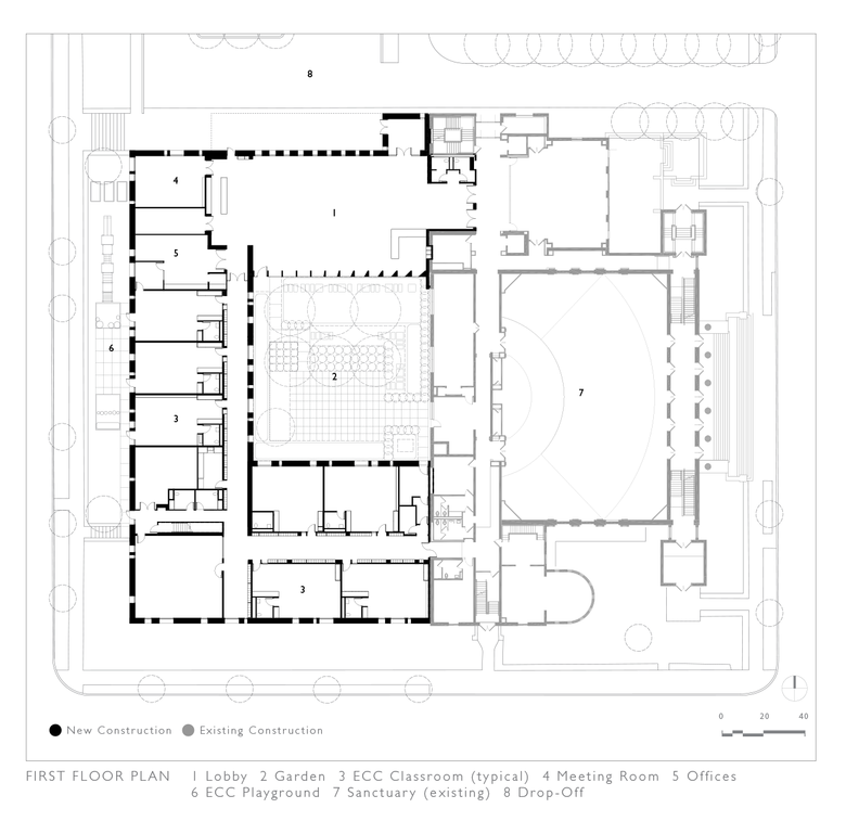
The most striking part of HGA's addition to Temple Israel in Minneapolis is the lobby, which is graced by a curved ceiling and looks onto an enclosed courtyard. The space is an uplifting entrance for both the congregation and the children attending classes there. HGA answered a few questions about the project.
Location: Minneapolis, Minnesota, USA
Client: Temple Israel
Architect: HGA
- Project Designer: Joan Soranno
- Project Manager: John Cook
- Senior Project Architect: Rob Good
- Senior Landscape Architect: Emanouil Spassov
- Project Team: Michael Hara, Erik Hansen, John Ellingson, Trygve Hansen, Joe Wetternach, Leighton Deer, Jeff Lee, Brad Kult, Joe Tarlizzo, Ariane Laxo, Deidre Webster, Dan Avchen, Justin Bice, Aaron Mullins, Kate Levine, Tim Carlson, Robert Johnson Miller, Sean Cotton, Andrew Atkins, Scott Lichty, Julie Hagstrom, Shawn Stockwell
Stone — Restoration Consultant: Wiss, Janney, Elstner Associates, Inc
Acoustic Vibration: Kvernstoen, Ronnholm & Associates, Inc.
Security Consultant: Rozin Security Consulting, LLC
Energy Modeling: The Weidt Group
Envelope: Pie Consulting and Engineering
Building Area: 27,260 sf (new construction), 11,775 sf (interior remodel)
HGA was hired to assist with master planning for all of Temple Israel’s properties. The site-specific master plan for the main campus identified an overall vision for the entire site including planning for the eventual use of adjacent parcels that are currently owned by Temple Israel. The scope for this project emerged out of this longer term planning exercise.
Temple Israel was the first Jewish congregation to organize in Minneapolis and is the eighth-largest Jewish reform congregation in the U.S. The synagogue serves more than 2,200 households and has grown younger in recent years. Its Early Childhood Center (ECC) serves more than 100 preschool children; several hundred students also attend Hebrew instruction.
Organized in 1878, the congregation commissioned its first home — its existing classical revival temple — in 1928. A two-story education building was added in the 1950s, and in 1986, a car-centric portico over the main entrance. As the congregation continued to grow, Temple Israel soon found itself in need of additional space for formal and informal gatherings, as well as updated and accessible classrooms for its educational programming.
After a strategic planning process revealed the congregation’s desire to remain in its urban neighborhood, Temple Israel moved forward with a $16.8 million renovation and expansion of its distinctive campus, the primary focus of which is a 25,000-square-foot contemporary addition with a new lobby, event space, ECC, religious education classrooms, and landscaped courtyard.
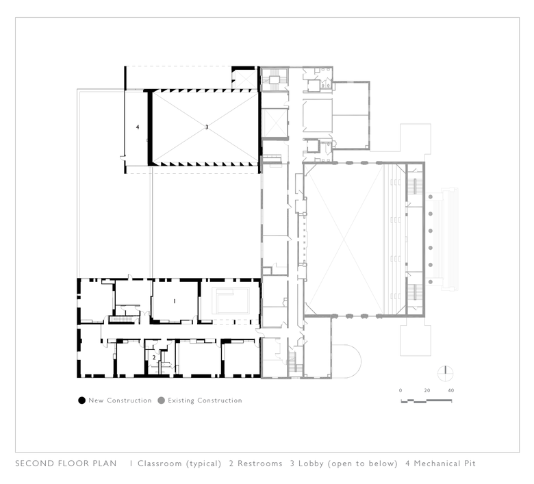
The new ECC is an intimately scaled wing with new classrooms, "child-centric" gathering spaces, wider corridors, and a raised-bed vegetable garden. The environment becomes a dynamic system for learning, with flexible furnishings, writable surfaces, exposed ceiling structure for infinite hang points, and ample corkboards. There is a direct connection from many of the classrooms to the outdoor playground which is built of natural materials — tanbark, wood, stone — and surrounded by a decorative metal fence with an abstract tree pattern.
Reggio Emilia, the teaching theory used in the synagogue’s ECC, served as the design concept to unify the spaces through principles of transparency, flexibility, and bella figura — a simple, restrained philosophy of beauty that includes natural light, tactile materials, and order.
Transparency in Reggio Emilia is translated not only in the literal sense, but also in the osmosis between learning and the surrounding environment. At Temple Israel, this results in strong indoor-outdoor relationships in every space. The 4,200-square-foot lobby features a series of twelve dramatically angled windows facing an outdoor courtyard. With its honey locust trees and long concrete benches, the courtyard serves as connective gathering space with all of the new surrounding structures looking onto it.
Bella Figura, in the Reggio Emilio classroom, teaches children to appreciate beauty in the purest form. This philosophy is evident throughout: in the grand gesture of the lobby’s dramatic oak latticework suspended from the ceiling, in the play of light and shadow from carefully placed fenestration, and in the rhythm of ceiling baffles and playful pendants.
The addition’s contextually sensitive design allows the 1928 temple to maintain its visibility as the focal point along Emerson Avenue. Part of the current project included cleaning and tuck-pointing the façade and renovating its iconic grand staircase. All of the new structures are more sensitively scaled, with the two-story structure facing taller apartments across one street and the one-story preschool responsive to the single-family homes along another. Security systems, including video cameras and an emergency response system, were discreetly integrated into the new spaces. Durable, elegant materials, including white oak and limestone, are used throughout the interior and exterior.
The basic programmatic elements of the project remained consistent with the master plan. A key element of the project was the courtyard created by the three wing expansion and the existing building. The degree of remodeling and renovation to the existing building was adjusted slightly as the project developed.
Green building practices were a high priority for Temple Israel. As a part of the building design HGA studied the feasibility to incorporate rooftop solar, enhanced envelope insulation, enhanced stormwater collection, high efficiency mechanical systems and the installation of a green roof. Site constraints didn’t allow for rooftop solar but the remaining priorities were incorporated into the design. Provisions for the future installation of a green roof above the single story education wing were made as a part of this project.
Because the building was an addition to an existing structure, the primary exterior building material palate was carefully selected to match the existing building. Working with the limestone and dark bronze palate of the existing exterior, the expansion reinterprets these materials in a contemporary way. For the interior, white oak was utilized extensively throughout and showcased in the lobby’s catenary wood and fabric ceiling.
Email interview conducted by John Hill.











