World Building of the Week
The Canopy
Edwin Chan, a longtime design partner at Gehry Partners in Los Angeles, started his own firm, EC3, in 2013. It would take five years for EC3 to realize its first ground-up building: True North, a mixed-use development in Detroit for developer Prince Concepts. The first phase of EC3's second project for the developer, The Canopy, was recently finished. Chan and company answered a few questions about the project.
What were the circumstances of receiving this commission?In 2021, building on a previous collaboration with the client initiated through the international talent agency ABOVE THE FOLD, the Detroit-based developer Prince Concepts invited EC3 back to Detroit’s Core City neighborhood to design a new collection of rental properties located one block from the firm’s first project, True North.
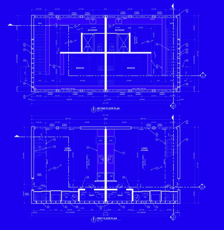
For the second commission by Prince Concepts, EC3 was tasked with transforming a 1.1-acre (0.45ha) two-parcel site into a multi-family residential community. The site’s prominent location at the intersection of 15th St. and W. Forest Ave., off Grand River Avenue and a few miles from downtown Detroit, offered an opportunity for the development to define a gateway into the Core City neighborhood. To give the new project a distinct identity from True North, the team decided to not use the predetermined Quonset hut form. In total, The Canopy is twelve new duplexes housing 24 rentable residential units: 11 studios, ten 1-bedroom and three 2-bedroom units. The modest development is sited in an informal yet intentional way to define a series of “outdoor living rooms” that builds on site organization principles that helped create a strong sense of community at True North.
At the first workshop in EC3’s studio in Los Angeles, the architecture team led by Edwin Chan and Prince Concepts arrived at a design approach that rejected the conventional “double-loaded corridor” organization of multi-family housing, in favor of articulating the residential units as twelve free-standing duplexes organized along an open-air communal spine. A series of massing models explored how the twelve duplexes could be expressed architecturally as one-story, two-story, and three-story volumes within the 35-foot (10.6m) height restriction of the zoning.
For the architecture, the design team took inspiration from Detroit’s very own Lafayette Park by Mies van der Rohe and the Hutongs (residential alleyways) in Beijing, China, to create a “green urbanism” that seamlessly integrates dwellings into the native landscape and fosters a sense of community across the newly created dense urban setting. In addition, the sculptural/animated roof-scape of the Continental, a massive former engine factory once owned by the client, informs the massing strategy to connect with Detroit’s industrial architectural heritage.
For the interiors, EC3 draws from the raw exhibition spaces in Marfa by artist Donald Judd, as well as from the firm’s design for the DESTEFASHIONCOLLECTION: 1 TO 8 exhibition at the Bass Museum in 2018, which features exposed metal framing paired with affordable off-the-shelf materials and products.
Committed to preserving the natural character of the neighborhood, EC3 and Prince Concepts formulated a design strategy that optimizes green space by configuring the residential units around several existing “iconic” trees on the two lots. It takes into careful consideration and prioritizes each unit’s orientation to take advantage of natural light and access to open space. Small balconies are strategically placed along the communal spine and around the “outdoor living-rooms” to foster a sense of community within the development. Bright colored stucco facades provide playful accents in The Canopy and enliven the the site with areas for encounter, discussion, reflection, and other activities.
EC3 and Prince Concepts collaborated closely during the design phase, using physical models to explore different site organizations and unit layouts, arriving at 4 typologies that aims to provide a diversity of lifestyles for its residents across generations and genders:
One-Story Studios
Facing 15th Street in the middle of Phase One’s site, these units take advantage of the generous volume created by the pitched-roof, with purposefully placed clerestory windows framing the views of the surrounding landscape, full-height patio doors. Storage, enclosures for electrical and plumbing, and privacy barriers for the sleeping and bathroom areas are constructed with built-in plywood millwork.
Two-Story One Bedrooms
These units incorporate slot windows created by exposing the framing—in addition to clerestory windows—to maximize daylighting and provide views on three sides. Like the studios, built-in plywood millwork is used for storage and privacy within the open floor plan. A small “flex” space on the second level adjacent to the sleeping area can be used as a dressing area, a yoga/wellness room, or a study for remote working.
Three-Story Studio + Two Bedroom
For the three-level units, wall-to-wall slot windows and full-height patio doors provide daylight and views on three sides for the ground-level studio. The open floor plan of the 2-bedroom units above makes efficient use of the modest floor plate by minimizing corridors with built-in millwork to provide spatial definition and privacy. Like other units, the 2-bedroom units will take advantage of the generous volume created by the pitched-roof with clerestory windows.
Three-Story Studio + One Bedroom
To compensate for the modest footprint of the ground-level studio, a small solarium, constructed using translucent polycarbonate panels, opens to the communal spine and “green living-rooms” to promote indoor-outdoor living for the residents. A small terrace extends from the living area of the 1-bedroom unit above to occupy the roof of the solarium.
The Canopy and its predecessor, True North, should be considered as the continuous evolution of an urban vision to prioritize and optimize landscaped public spaces in a private residential development.
Like many projects in Edwin Chan’s expansive career portfolio as design partner at Gehry Partners, including the Guggenheim Museum in Bilbao, Fondation Louis Vuitton in Paris, and Novartis Pharmaceuticals’ Human Resources Building in Basel, True North has ignited the regeneration, repopulation, and reengagement of the buildings and landscapes around the site in Core City, while advancing the role of architecture in city building and engaging communities.
Located one block from The Canopy, in a neighborhood that had not seen new construction in over six decades, True North quickly garnered critical international attention for its creative use of prefabricated Quonset huts and unique placemaking. Built and occupied in less than a year and fully completed in 2018, the modest housing development had significant impact as the first built ground-up project realized by Edwin Chan since he left Gehry Partners to form his own independent architectural practice EC3.
Email interview conducted by John Hill.
Location: Core City, Detroit, Michigan, USA
Client: Prince Concepts
Architect: EC3, Los Angeles
- Design Principal: Edwin Chan
- Project Architect: Jordan Squires
- Project Team: Kyle Onaga, Lucas Li
Structural Engineer: Friendship Engineering
MEP/FP Engineer: Novak & Fraus Engineers
Landscape Architect: Prince Concepts
Contractor: Prince Concepts
Site Area: 1.1 acres / 0.45 ha. (Lots 7+9 Combined)
Building Area: 7,720 sf / 717 m2 (Phase 1)













