The Groove @ Central World Expansion

4. May 2015

The Groove @ Central World Expansion

2013
Bangkok, Thailand

Client
Central Pattana Public Co. Ltd.

Architect
SDA | Synthesis Design + Architecture
Los Angeles, CA

Design Principal/Project Architect
Alvin Huang

Project Team
David O Wolthers, Filipa Valente, Chia-ching Yang, Behnaz Farahi,
Timothy Harmon, Joseph Sarafian

Associate Architects
A49 Architects, Thailand
Foundry Space, Thailand

Structural Engineer
Doctor Kulsiri Chadrangsu - Ferrand

MEP/FP Engineer
MITR, Thailand

Landscape Architect
Trop Design, Thailand

Building Area
12,000 sm

Photographs
Polar Factory

Drawings
SDA
Exterior view

What were the circumstances of receiving the commission for this project?

This project is an expansion of the existing Central World Shopping Center in Bangkok, one of the largest malls in the world. We have been working with the Central group and Chirathivat family since 2007 on a number of different projects.

Exterior view

Please provide an overview of the project.

This project is made up of 4,000 sqm of enclosed retail and 8,000 sqm of restaurants and bars facing an open-air protected courtyard.

Exterior entrance view

What are the main ideas and inspirations influencing the design of the building?

At the exterior, the building tries to capture the intensity, energy and movement of Bangkok. While at the interior, the project looks to capture the sophistication and atmospheric vibrancy of “al fresco” dining in European cafe culture and pair it with the energy and intimacy of the Soi’s of Bangkok to define a new contemporary Soi culture of sophisticated outdoor dining and lively pedestrian streets for Central World.

Courtyard between existing building and new buiding

Were there any significant challenges that arose during the project? If so, how did you respond to them?

Given the unique position of the project facing the high traffic condition of Ploenchit Road and the BTS Skytrain and Skywalk, the facade and roof serve as a the graphic identity of the building while acting as a veil which reveals and conceals views. The primary driver of our formal organization and design concept in particular for the facade was the continuous flow of pedestrian and vehicular traffic along Ploenchit Road. The facade is articulated with continuous horizontal lines which change height to accommodate openings for restaurant and retail shop fronts as well as terracing areas.

Internal courtyard

How does the building relate to contemporary architectural trends, be it sustainability, technology, etc.?

The building attempts to utilize passive cooling through protected courtyards, integrated landscaping, and a retractable roof to create a cool and relaxing outdoor atmosphere.

View from the first floor

How did you approach designing for Bangkok/Thailand and how would you describe the process of working on the project there?

I have been working on projects in Thailand since 2007, and this past January made my 20th trip to the country.  I have become a big fan of the country, its culture and its people. Bangkok is a fascinating city and an amazing place to do work. They have a very sophisticated culture and appreciation of design which is evident in both the quality of retail environments and hospitality/dining establishments that is on par with any cosmopolitan global destination, yet retain a particular Thai way of thinking that is humble and down to earth.

Ceiling detail

As a foreign architecture office, we are only legally allowed to work up to the Design Development phase, so in the end we are handing off to a local architect (in this case A49) to produce the Consruction Drawings and to do the Contract Administration. As such, we work closely with the client to develop the conceptual and schematic designs – and with the local consultant team to advise on local codes, construction processes, and other requirements.

View to the facade

In the end, we have discovered something quite important which is what we like to call “parametric descriptions.” As we are handing off to the local architect to produce construction drawings, it is inevitable that the precise locations and dimensions of elements has to change. As such, we prefer not to describe our geometry with dimensions, but rather through relationships. The more we can use descriptors that define geometric relationships, such as align, tangent, equal, etc, the better.

Facade detail

How would you describe the architecture of Bangkok/Thailand and how does the building relate to it?

At an urban level, the project tries to recreate the vibrancy of the Sois (pedestrian alleys) found throughout Bangkok – where small restaurants and bars are able to create lively but shaded and protected outdoor dining areas. At a more architectural level, we are interested in referencing the timber detailing of traditional Thai architecture, as well as capitalizing on the benefits of passive cooling strategies that they used. Pattern and motif is also a recurring theme in Thai architecture which we look to express in a more contemporary language with pattern being used as a variable condition that can produce gradients.

Retail side interior

Email interview conducted by John Hill.

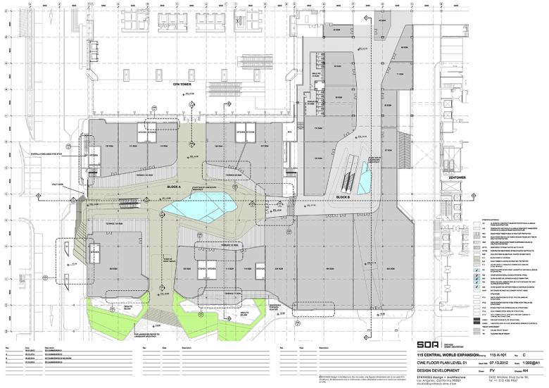
Level 1 Plan
South Elevation
Section A-A
Exterior Diagram
Interior Diagram
Elevation Diagram

The Groove @ Central World Expansion

2013
Bangkok, Thailand

Client
Central Pattana Public Co. Ltd.

Architect
SDA | Synthesis Design + Architecture
Los Angeles, CA

Design Principal/Project Architect
Alvin Huang

Project Team
David O Wolthers, Filipa Valente, Chia-ching Yang, Behnaz Farahi,
Timothy Harmon, Joseph Sarafian

Associate Architects
A49 Architects, Thailand
Foundry Space, Thailand

Structural Engineer
Doctor Kulsiri Chadrangsu - Ferrand

MEP/FP Engineer
MITR, Thailand

Landscape Architect
Trop Design, Thailand

Building Area
12,000 sm

Photographs
Polar Factory

Drawings
SDA

Related articles 

Featured Project 

Atelier KI JUN KIM

House by the Wall

Other articles in this category