The House for Contemporary Art

The House for Contemporary Art

1. February 2015

The House for Contemporary Art
2014
Fukui

Architects
Ryumei Fujiki and Yukiko Sato/F.A.D.S

Structural Engineer
Yasutaka Konishi

MEP/FP Engineer
Osamitsu Kagenaga

MEP/FP Engineer
Kazuo Shuto

Contractor
Matsuda Koumuten Co.

Constr. Manager
Kazunari Yamada

Site Area
264.48 ㎡

Building Area
137.10 ㎡

Total Floor Area
135.56 ㎡

Photo
Hiroshi Ueda, 
Ryumei Fujiki and Yukiko Sato

Entrance approach 

Please give us an overview of the project.

You can circulate through the spaces in this home looking at the owner’s collection of artwork just as if you were passing through galleries in a museum. The structure fulfills the client’s request that passersby not be able to see inside, while also letting in fresh air and sunlight and achieving a well-sequenced, multi-layered spatial composition. Although the home is made up of a number of cubes of different sizes, we tried to create a structure that was as seamless as possible, with the spaces forming a single connected unit. In addition,  the client wanted to be able to draw in both the garden and the studio, so we included a courtyard that could be accessed directly from the north-facing studio.  

Exterior view from the southwest 
From the front door, the living room is visible beyond the courtyard (south garden) 

What was most important for you during the design process?

It goes without saying that our top priority was fulfilling the client’s wishes. We began by measuring the many works of art that the client had created and collected over the years. Next, we held a number of planning meetings to discuss where to display each work of art, among other issues. For instance, we determined the height of the living room ceiling based on the wall size that could accommodate a painting measuring over 1.5 x 1 meter. In addition to the art collection, the client also has a large number of old records, mostly jazz. It was important for us to figure out a way to display them so their jackets would appear to best advantage. 

The north garden glimpsed from the living room 
Looking from the living/dining area towards the south garden 
North garden viewed from dining room 

What challenges did you face in the project? How did you respond to them?

It would have to be the response to and interaction with the environment. The first thing was dealing with the snow. In regions with heavy snow, the shape of the roof is very important. Many homes are built on the assumption that someone will shovel the snow off the roof, but that’s a lot of heavy work, and dangerous. Our initial proposal was for a budget-conscious, wood-framed structure with a gently-sloping roof that would naturally shed snow. In the end, however—and in part because of the client’s input—we decided on a flat roof with no parapet that would stay relatively snow-free because of wind action. 

Our second challenge was coming up with a plan that would create good airflow within the structure. To encourage natural ventilation, we created a temperature differential by designing two gardens, one on the south side that would warm up easily, and one on the north side that would remain cool. This is a traditional design method used in Kyoto townhouses. 

Living room and south garden viewed from entry hall 
Evening view of studio seen from bathroom 

What is the societal role of the architect?

In this project, our first priority was fulfilling the client’s wishes, but we don’t believe the architect’s role stops there. Architects must also respond to various societal problems with bold imagination. For example, we need to fundamentally rethink architectural practices in response to the world’s worsening environmental problems. We are looking to nature, or natural systems, for hints as to how to do that. It’s not simply about finding clever ways to reduce energy use, but rather about architecture itself growing closer to nature. It’s impossible to fully realize this ideal in a single project, but what we hope to do in our future work is to steadily experiment with a variety of approaches, and through that process to approach a new kind of architecture. 

Evening view from the south garden 
Exterior viewed from the west 
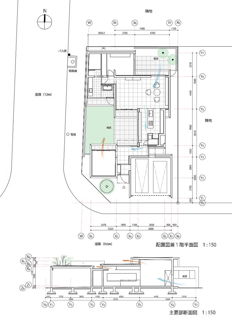
Layout/floor plan and section of main building areas 
Axonometric drawing 

 
E-mail interview by Yuna Yagi (translated from Japanese by Winifred Bird)  

The House for Contemporary Art
2014
Fukui

Architects
Ryumei Fujiki and Yukiko Sato/F.A.D.S

Structural Engineer
Yasutaka Konishi

MEP/FP Engineer
Osamitsu Kagenaga

MEP/FP Engineer
Kazuo Shuto

Contractor
Matsuda Koumuten Co.

Constr. Manager
Kazunari Yamada

Site Area
264.48 ㎡

Building Area
137.10 ㎡

Total Floor Area
135.56 ㎡

Photo
Hiroshi Ueda, 
Ryumei Fujiki and Yukiko Sato

Related articles 

Featured Project 

Atelier KI JUN KIM

House by the Wall

Other articles in this category