The Kathleen Grimm School for Leadership and Sustainability at Sandy Ground

18. April 2016

The Kathleen Grimm School for Leadership and Sustainability at Sandy Ground

2015
Staten Island, New York

Client
New York City School Construction Authority on behalf of New York City Department of Education

Architect
Skidmore, Owings & Merrill
New York, NY

Design Partner
Roger Duffy, FAIA

Managing Partner
Anthony Vacchione, AIA

Managing Director
Christopher McCready, AIA

Senior Design Architect
Jon Cicconi, AIA

Senior Technical Coordinator
Carrie Moore, AIA

Technical Coordinator
Caroline Yu

General Contractor
Leon D. DeMatteis Construction Corporation

Sustainability and Net Zero Consultant 
In:Posse
 
R&D Collaborator
Center for Architecture Science & Ecology
 
MEP Engineering
AKF Group
 
Structural Engineering
Desimone Consulting Engineers, PLLC
 
Civil & Traffic Engineering 
Philip Habib & Associates
 
Geotechnical Engineering
Langan Engineering and Environmental Services 
 
Landscape Architect
Mark K. Morrison Landscape
 
Lighting Design
Brandston Partnership, Inc.
 
Graphics and Data Visualization 
Pentagram
 
Acoustics/AV/IT & Security
Shen Milsom & Wilke
 
Theater Design
Harvey Marshall Berling Associates
 
Code Consultant
Design 2147 Ltd.
 
Vertical Transportation
Van Deusen & Associates
 
Cost Estimating
VJ Associates
 
Food Service
Hopkins Foodservice Specialists, Inc.
Site Area
3.5 acres

Building Area
68,000 sf

What were the circumstances of receiving the commission for this project?
We were invited by the New York City School Construction Authority (SCA) to compete for the commission. Bruce Barrett, the SCA’s vice president for architecture and engineering, envisioned P.S. 62 as a pilot project to help the city explore strategies for reducing its carbon footprint. It is New York City’s first net-zero-energy school, and one of the first of its kind worldwide. The SCA had never undertaken a project like this before, so it invited four firms with strong credentials in sustainable design to compete for the project. Based on our proposal, SOM was awarded the commission.

Please provide an overview of the project.
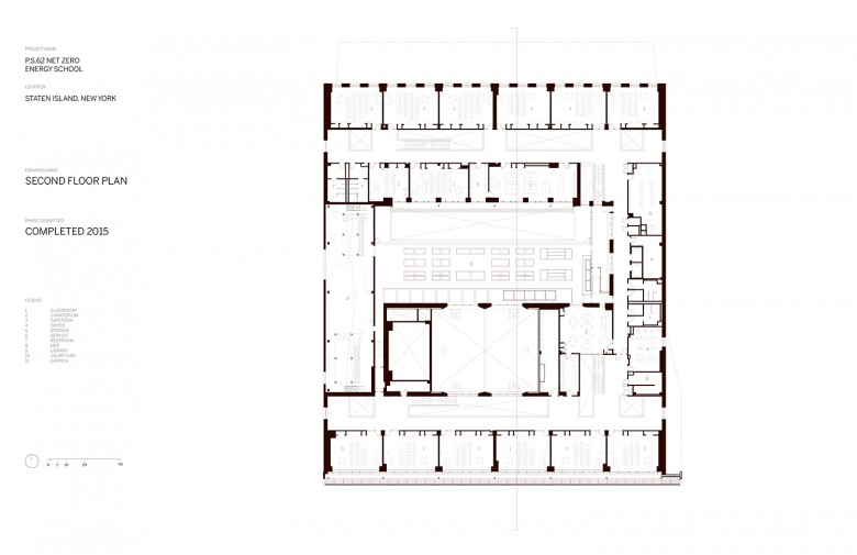
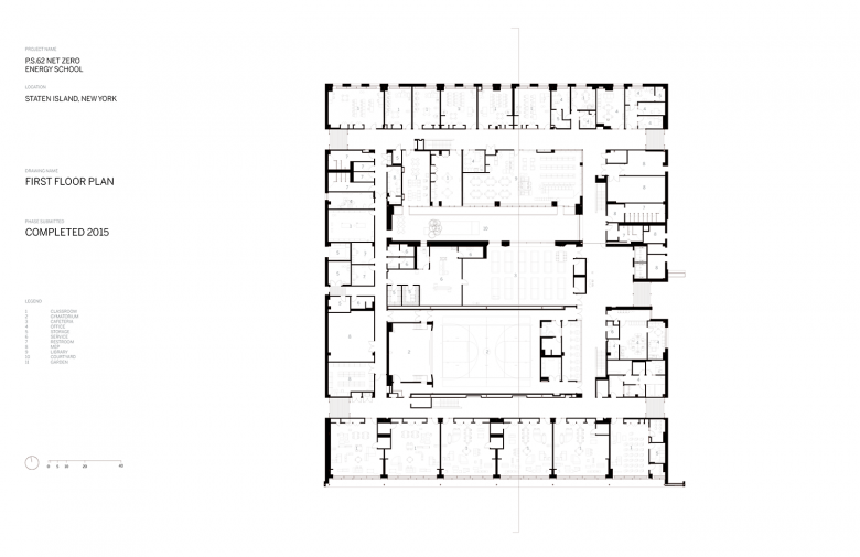
P.S. 62 is located on the South Shore of Staten Island, where it serves more than 400 students from pre-kindergarten through fifth grade. The 68,000-square-foot school is designed to harvest as much energy as it uses on an annual basis. Photovoltaic (PV) panels mounted on the school’s angled roof structure and south facade provide the school’s primary energy source.

P.S. 62 consumes 50% less energy than a typical New York City school, and many design strategies contribute to the project’s exceptional energy efficiency. The school’s sustainable features include an ultra-tight high-performance building envelope, daylit interiors, a geo-exchange system, energy-efficient lighting fixtures and kitchen equipment, energy recovery ventilators and demand-control ventilation, and a solar thermal system for hot water.

What are the main ideas and inspirations influencing the design of the building?
Every aspect of the design contributes to reaching the school’s net-zero-energy goal. From the very beginning, our design team and consultants focused on a single question: how can we reduce the school’s energy use?

One of the most significant ways that we achieved this is by using daylighting strategies throughout the building, which significantly reduces the school’s dependence on electric lighting. The entire building is oriented on the site to maximize daylight, and its two-story height and interior courtyard ensure that natural light can reach the deepest part of each floor. The classrooms and corridors feature skylights and clerestory windows, sloped ceilings, and reflective surfaces that optimize natural light in each space.

How does the design respond to the unique qualities of the site?
In New York City, there are not very many sites for a net-zero-energy school, but this site presented the perfect conditions for achieving this goal. On this 3.5-acre site in a residential neighborhood, we were able to design a two-story building that fits within its low-rise surroundings, while providing the number of PV panels required to generate the building’s energy.

How did the project change between the initial design stage and the completion of the building?
We determined the building’s basic form — its height, orientation, and massing — at the very outset of the project, in order to create the optimal conditions for daylighting. But the angled roof structure is something we developed later in the design process. This element was informed by research we undertook with the Center for Architecture Science and Ecology (CASE), which is a partnership between SOM and Rensselaer Polytechnic Institute. We studied how to increase the efficiency of the PV panels by placing them at different angles and in various configurations. The final design allows the panels to be mounted on sloping planes. This solution not only reduces the overall area of PVs needed to power the school, but also produces a greater energy output throughout the year.

Was the project influenced by any trends in energy-conservation, construction, or design?
The project is a direct response to the urgent challenge to confront climate change by reducing carbon emissions from buildings. As a pilot project for the SCA, our design anticipates the way that schools may need to be designed in the future, particularly to meet New York City’s OneNYC initiative to reduce carbon emissions by 80% by 2050. P.S. 62 is designed to test a range of sustainable approaches that can be applied to other schools in New York City and beyond. Given New York City’s public schools account for approximately 130 million square feet, the benefits can be significant.
 
Email interview conducted by John Hill.

Site Plan
First Floor Plan
Second Floor Plan
Daylight Section
Sustainability Section
Precast Diagram

The Kathleen Grimm School for Leadership and Sustainability at Sandy Ground

2015
Staten Island, New York

Client
New York City School Construction Authority on behalf of New York City Department of Education

Architect
Skidmore, Owings & Merrill
New York, NY

Design Partner
Roger Duffy, FAIA

Managing Partner
Anthony Vacchione, AIA

Managing Director
Christopher McCready, AIA

Senior Design Architect
Jon Cicconi, AIA

Senior Technical Coordinator
Carrie Moore, AIA

Technical Coordinator
Caroline Yu

General Contractor
Leon D. DeMatteis Construction Corporation

Sustainability and Net Zero Consultant 
In:Posse
 
R&D Collaborator
Center for Architecture Science & Ecology
 
MEP Engineering
AKF Group
 
Structural Engineering
Desimone Consulting Engineers, PLLC
 
Civil & Traffic Engineering 
Philip Habib & Associates
 
Geotechnical Engineering
Langan Engineering and Environmental Services 
 
Landscape Architect
Mark K. Morrison Landscape
 
Lighting Design
Brandston Partnership, Inc.
 
Graphics and Data Visualization 
Pentagram
 
Acoustics/AV/IT & Security
Shen Milsom & Wilke
 
Theater Design
Harvey Marshall Berling Associates
 
Code Consultant
Design 2147 Ltd.
 
Vertical Transportation
Van Deusen & Associates
 
Cost Estimating
VJ Associates
 
Food Service
Hopkins Foodservice Specialists, Inc.
Site Area
3.5 acres

Building Area
68,000 sf

Related articles 

Featured Project 

Atelier KI JUN KIM

House by the Wall

Other articles in this category