The Music Building, University of Pennsylvania

6. September 2010

The Music Building, University of Pennsylvania
2010
Philadelphia, PA

Client

University of Pennsylvania

Architect

Ann Beha Architects
Boston

Design Principal

Ann M. Beha FAIA

Project Manager / Architect

Philip B. Chen AIA, LEED AP

Projects Team
Neil Stroup AIA, LEED AP
Adam Ruedig
Brandon Prinzing

Structural Engineer
Keast & Hood Co.

MEP/FP Engineer

AHA Consulting Engineers

Landscape Architect

Stephen Stimson Associates

Lighting Designer
Ripman Lighting Consultants

Acoustician & Audio / Visual
Kirkegaard Associates

Contractor

Daniel J. Keating Company

Materials Conservationist
Building Conservation Associates

Specifications Writer
Kalin Associates, Inc.

Graphics Consultant

Wojciechowski Design

Elevator Consultant
VDA (Van Deusen & Associates)

Hardware Consultant
Ingersoll Rand Security Technologies

Cost Estimator
The McGee Company

Site Area
25,787 sf

Building Area

25,008 sf
(13,782 sf Renovation / 11,226 sf New Construction)

Photos
2010 David Lamb Photography

View of Music Building From Chancellor’s Walk

What were the circumstances of receiving the commission for this project?

This project was an invited competition set up by the University. Architect selection was awarded through a two-stage process, beginning with an invitation to submit Qualifications, followed by a Design Competition for five short-listed firms. The competition submittals included a proposal, fee and a series of design studies for the project site. ABA’s proposal presented three conceptual options developed with similar values in mind and weighed the advantages and disadvantages of each.

View of Music Building Addition from Engineering Walk

Can you describe your design process for the building?

From the outset of design, this project was about creating a dialogue between old and new. Our design process began with a parallel review of the program, the historic building and its site. The program was defined, with an emphasis on its acoustic requirements, the project goals for sustainability, and design excellence.

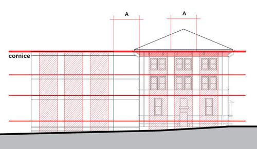
A dialogue was developed thorough investigation of the existing building, the context, and past and present circumstances. The design began with an investigation of the original buildings to set the standard for adjacent design by analyzing the façade and massing organization, setting datum lines, proportions, heights and configurations, as a framework for the exterior design expression. Ultimately, our design process was a rigorous understanding of the existing building and the new program which compelled the addition to be both complementary and transformative.

Classroom / Recital Space

How does the completed building compare to the project as designed? Were there any dramatic changes between the two and/or lessons learned during construction?

Because of the historic nature and location of this building, the project was the subject of numerous reviews from University, local and State design and historic review authorities. To build consensus and gain approval, we intensively studied the building three-dimensionally: perspective sketches, physical and digital models of the project, the site, the building, and its components. These studies, as well as construction mock-ups for the restoration and addition, ensured that the final result was as close to the intended design as possible.

Still, working with existing buildings always produces contingencies during construction, and these can threaten to change the design in unexpected ways. When unforeseen conditions arose, solutions which were delivered quickly and considered all the related implications resulted in minimal changes to the design.

The final exterior design deploys a custom colored terra cotta rain screen. Budget required some limitation of the fin system, but this simplification was a plus, in the end. The site deign was originally more extensive, but the basics were accomplished. There were some design limits on the interior (choices of doors and amount of open interior glass) to achieve exemplary acoustic performance.

Site Plan

How does the building compare to other projects in your office, be it the same or other building types?

ABA’s projects are typically for academic, cultural and civic institutions; and many of the projects involve transformations of existing, and often historically significant, buildings.

We feel that this project is one of the most complete responses to an existing building that our office has completed. Considering that the project doubles the size of the existing building, it is really not an addition but rather an entirely new structure with a two part composition—the 19th century building and the new building. Their joining was simply executed, so that the “whole” is completely visible and obvious.

Program Distribution

How does the building relate to contemporary architectural trends, be it sustainability, technology, etc.?

Re-using an existing building is one of the most sustainable practices possible. According to National Trust for Historic Preservation, even if an existing building were replaced by a new energy-efficient building, it would take 35-50 years to compensate for the embodied energy.

By re-using the historic Music Building, salvaging demolished building materials for re-use, improving energy efficiency of the existing building envelope, and using energy and water efficient systems, this project will become the first LEED Silver building on Penn’s historic campus.

Building Analysis

Are there any new/upcoming projects in your office that this building’s design and construction has influenced?

We were designing two projects that integrated historic structures and significant new construction at the same time as the Music Building project: The Carl A. Fields Center for Equality and Cultural Understand at Princeton University, and the Nulman Lewis Student Center at The Wheeler School (see Architectural Record’s July 2009 K-12 Building Types Study).

There is a great deal of cross referencing in the design ideas for these projects, but each is fundamentally different.

E-mail interview conducted by John Hill

The Music Building, University of Pennsylvania
2010
Philadelphia, PA

Client

University of Pennsylvania

Architect

Ann Beha Architects
Boston

Design Principal

Ann M. Beha FAIA

Project Manager / Architect

Philip B. Chen AIA, LEED AP

Projects Team
Neil Stroup AIA, LEED AP
Adam Ruedig
Brandon Prinzing

Structural Engineer
Keast & Hood Co.

MEP/FP Engineer

AHA Consulting Engineers

Landscape Architect

Stephen Stimson Associates

Lighting Designer
Ripman Lighting Consultants

Acoustician & Audio / Visual
Kirkegaard Associates

Contractor

Daniel J. Keating Company

Materials Conservationist
Building Conservation Associates

Specifications Writer
Kalin Associates, Inc.

Graphics Consultant

Wojciechowski Design

Elevator Consultant
VDA (Van Deusen & Associates)

Hardware Consultant
Ingersoll Rand Security Technologies

Cost Estimator
The McGee Company

Site Area
25,787 sf

Building Area

25,008 sf
(13,782 sf Renovation / 11,226 sf New Construction)

Photos
2010 David Lamb Photography

Related articles 

Featured Project 

Atelier KI JUN KIM

House by the Wall

Other articles in this category