U.S. Building of the Week
The Watercooler
Although located less than a mile from the Idaho State Capitol Building in Boise, the Watercooler sits close to neighborhoods full of single-family houses. In turn, Beebe Skidmore Architects' design of the residential development balances the site's urban and suburban qualities. The architects answered a few questions about the project.
Location: Boise, Idaho, USA
Client: Local Construct
Architect: Beebe Skidmore Architects
- Project Architects: Heidi Beebe, Doug Skidmore
Structural Engineer: Axiom PLLC
Landscape Architect: Stack Rock Group
Contractor: Andersen Construction
Wood Siding: Arbor Wood
Site Area: 24,400 sf
Building Area: 31,500 sf
The Watercooler is the winner of an RFP (Request for Proposals) by Boise’s Central City Development Corporation (CCDC), team-authored by the architect and developer. The scheme is a response to the location: a transitional zone between Boise’s urbanizing core and close-in neighborhoods of single-family houses. This area is characterized by largely commercial uses and undeveloped lots.
The selection committee liked the moderate scale and pedestrian-friendly approach of the Watercooler proposal, choosing it over proposals that maximized use of available floor-area-ratio and height limits. The CCDC awarded ownership of the parcel as incentive to realization, fulfilling their mission to revitalize the neighborhood and introduce housing close to downtown.
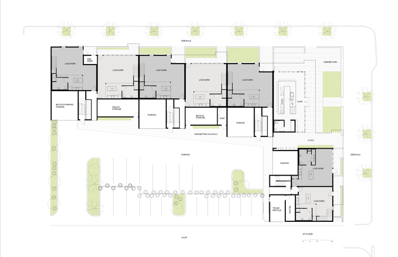
The Watercooler is a 39-unit mixed-used live/work building located at the west edge of downtown Boise, Idaho. Measuring 31,500 square feet on three floors, the building fills the north and east side of a 200’ x 122’ parcel at the corner of 14th and Idaho Street. Surface parking for cars and bikes is located at the rear with vehicular access off the alley.
At the street corner, the Watercooler steps back to create a semi-public park. This privately owned, publicly accessible space is a contribution to the City of Boise’s 2001 master plan transforming 14th into a pedestrian street. A covered breezeway provides a pedestrian connection between the corner park and parking area.
The objectives of the architecture are to first, create a lively street edge, and second, do so with a highly efficient plan that meets the project’s lean construction budget.
To address the street edge, the Watercooler is organized into four nearly identical blocks, repeating and shifting in plan to form offsets at regular intervals along the sidewalk. Cantilevered portions of the upper floors extend to create an arcade-like zone along the building facade for shade and weather protection at the unit entrances.
Ground level units are accessed from the sidewalk with brightly colored doors and tenant signage tucked under the cantilevered zones. Board form concrete planter walls form individual residential stoops. At the corner park, a glassy retail/restaurant defines the shared open area, marking the main access for the residents.
The program is organized around a corner pocket park, created to fulfill Boise’s Westside Downtown Masterplan. Live-work units with mezzanines are entered at street level, and ground-level parking is concealed behind the building. Second and third level walk-up apartments are entered from the back of the building, accessed via a covered passage adjacent to the corner park and cafe. This layout eliminated the need for an interior double-loaded corridor and precludes the need for an elevator.
The exterior skin is a mix of white stucco and a rain screen of thermally modified poplar boards.
Email interview conducted by John Hill.












