Third Lutheran Church
Being an architect means acknowledging that even the smallest things are important. This position comes to mind when considering Architectural Artisans' design of a new accessible entry at the side of the Third Lutheran Church in Louisville. The small limestone portal invites visitors from the street at the front and the parking at the back, opening up the church to those who might not otherwise be able to traverse the flight of steps to the sanctuary. Jeff Rawlins of Architectural Artisans answered a few questions about the project.
What were the circumstances of receiving the commission for this project?
Architectural Artisans was approached with the project based upon the previous work in the community and a reputation for thoughtful, contextual design that reimagines conventional boundaries. Through the 21 years of the firm’s practice, the vast majority of the projects can be mapped within a three mile radius of the office.
Please provide an overview of the project.
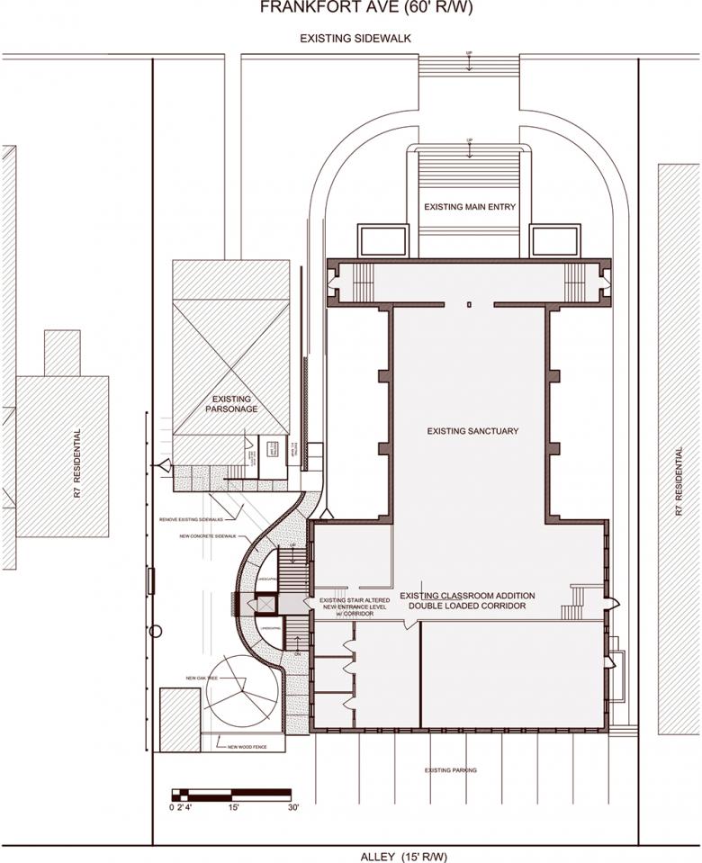
This project for the Third Lutheran Church in Louisville is an ADA lift addition to a 1930’s gothic revival church in the Clifton landmarks district. As you can see in the initial photo the main floor is well above grade. As with many churches the members start their service with a social cup of coffee. This, along with the fact that commuters enter from a rear parking area guided the decision to place the ADA access towards the rear of the building at the end of the classroom corridor where it would not only link to the sanctuary, but to the classrooms and basement fellowship hall used for community functions. Fortunately, the church owns the house/parsonage next door providing room in the rear yard to place the addition and develop the landscape to enhance the arrival sequence.
The two main goals were to respectfully relate the new addition to the existing church and for the new addition to function as the primary entrance from a rear parking area.
What are the main ideas and inspirations influencing the design of the building?
The programmatic functions drove the design form. The goal was to maintain a clean, modern addition juxtaposed against the more ornate design of the church but also be respectful of the overall context, scale and material choices. The limestone cladding became a natural choice that relates to the foundation of the church while also having a more playful contemporary aesthetic.
How does the building relate to contemporary architectural trends, be it sustainability, technology, etc.?
The elevator addition is an example of the most basic ideologies of sustainability and adaptive reuse – rather than causing irreparable damage the existing historic structure by inserting an elevator within the existing footprint, the addition uses otherwise unused courtyard space to accentuate the church, courtyard and entry sequence from the parking area. Complimenting the siting and design approach are the locally sourced material selections, which at their root are sustainable in nature. The concrete stairs and limestone cladding will outlast the vast majority of the structures adjacent to the church and aim to create a sense of permanence within the design.
How would you describe the architecture of Kentucky and how does the building relate to it?
The architecture of Kentucky, as with most eastern states, evolved from the work of skilled craftsmen and not that of professionally trained “architects.” As such, a great number of the significant structures in Kentucky are designed with this detail and craftsmanship forming a secondary layer and interpretation to the larger form and aesthetic goals. Third Lutheran Church, originally constructed in 1931, is no exception.
The elevator addition was designed and constructed to celebrate the craftsmanship and the masonry detailing that is ever present in the larger context of the church, though this detailing was reinterpreted in a more contemporary, yet timeless style. The form itself speaks to its own iconic nature but remains subdued and humble. As one approaches the addition, the texture and pattern of the limestone creates an extremely tactile and pedestrian oriented experience. Also worth noting is that the limestone cladding was quarried from Indiana about 50 miles from the site.
Email interview conducted by John Hill.
Third Lutheran Church
2011
Louisville, Kentucky
Client
Third Lutheran Church
Architect
Architectural Artisans
Louisville, KY
Structural Engineer
Steve Leonard Engineering
Contractor
T.C. Peters Construction Company
Site Area
0.56 acres
Building Area
196-sf addition; 15,000-sf existing church
Photographs
Josh Meredith
Drawings
Architectural Artisans











