Torchy’s Tacos – S. Congress

4. April 2016

Torchy’s Tacos – S. Congress

2016
Austin, Texas

Client
Torchy's Tacos

Architect
Chioco Design
Austin, TX

Design Principal
Jamie Chioco

Project Architect
Landry Architects

Project Manager
Ben Dimmitt

Structural Engineer
JM Structural Engineer

MEP/FP Engineer
Peter Leptuch

Landscape Architect
Norris Design

Steel Fabrication/Custom Light Fixtures
Makehaus LLC

Site Area
13,827 sf

Building Area
2,997 sf

Photographs
Patrick Y Wong / AtelierWong.com

Drawings
Chioco Design

What were the circumstances of receiving the commission for this project?
This project is a continuation of our relationship with the client.  After several years of testing and establishing a design language embodying the Torchy's Tacos brand, mainly through the design and construction of interior finishouts and second generation remodels, Chioco Design was commissioned to create their new flagship location.

Please provide an overview of the project.
After several years of testing and establishing a design language embodying the Torchy's Tacos brand, mainly through the design and construction of interior finishouts and second generation remodels, Chioco Design was commissioned to create their new flagship location. The ground-up building, located along Austin's iconic South Congress Ave., is situated on the site formerly occupied by Fran's Hamburgers, an Austin based restaurant established in the 1970s that symbolized a nostalgia for the archetypal Texas drive-in diner. Chioco Design set out to create a building able to respect it's iconic setting, allude to it's historic roots and fulfill the needs of a modern restaurant. Consciously referencing the archetypal 50s-era drive-in diners, Chioco Design developed an iconographic structural 'X' & 'Y' form traversing the length of the block facing South Congress Ave. These bright red columns support a crenellated roof profile extruded through the entire building, seamlessly connecting inside to out, and allowing for the addition of numerous north-facing skylights which provide an abundance of consistent natural light. Steel planters and tree wells extend out to the sidewalk and street to act as an inviting and accessible area adjacent to the vibrant energy of South Congress Ave.

Drawing from a carefully developed and dynamic material palette from previous Torchy's locations Chioco Design implemented the now-symbolic red road reflectors across the western facade emphasizing the eclectic character of the neighborhood. Encaustic cement tiles are thoughtfully used around the interior andexterior, even materializing as a flooring surface to distinguish the entrance and queuing area. Brightly colored custom fabricated light fixtures hover above both bar areas serving as a significant contrast to the white ceilings during the day and brilliantly illuminating the space at night. Half-height board-formed concrete walls, a staple of the Torchy's brand, serve to direct traffic and act as a compliment to the warm wood tones found around the space.

What are the main ideas and inspirations influencing the design of the building?
There is a basic structural bay that spans over the interior and exterior dining spaces that incorporates a north facing skylight.  This structural bay is repeated along the length of the building, which creates a bold structural pattern along the edge of the adjacent main street.  The structural pattern is also referential to 50s and 60s era restaurant design.  

How does the design respond to the unique qualities of the site?
The roof has been crenelated to allow for numerous north facing skylights which creates an indoor and outdoor dining space filled with even natural natural light.  The dining patio has also been oriented along the length of the building facing South Congress Ave. which has numerous existing street side dining spaces.

What products or materials have contributed to the success of the completed building?

The concrete tile on the floor and walls is an effective and clean way to add contemporary graphics to the mostly white space.  The concrete tiles also have a relatively high thermal conductivity which is enjoyable in a warm climate.

Email interview conducted by John Hill.

Area Map
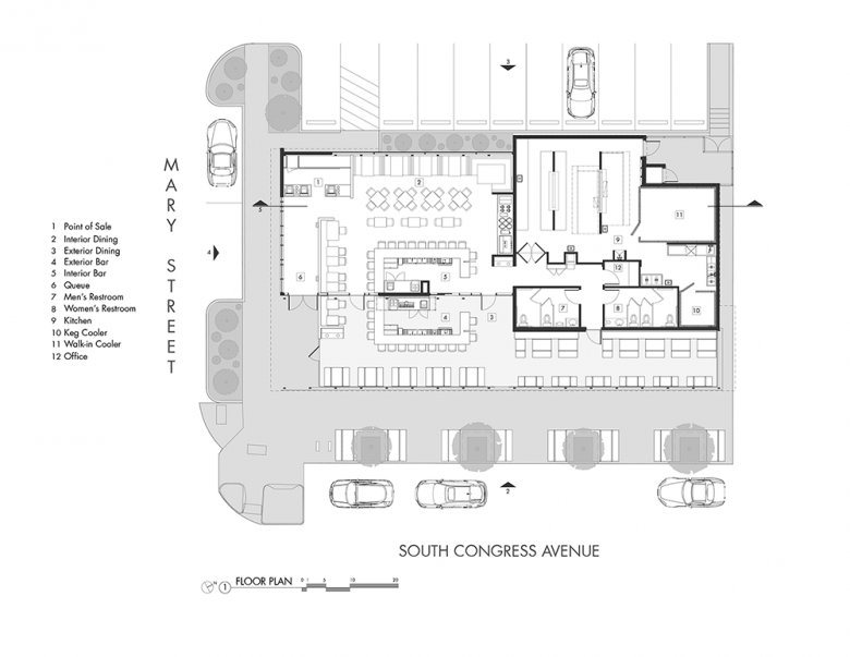
Floor Plan
Elevations
Section and Detail Section

Torchy’s Tacos – S. Congress

2016
Austin, Texas

Client
Torchy's Tacos

Architect
Chioco Design
Austin, TX

Design Principal
Jamie Chioco

Project Architect
Landry Architects

Project Manager
Ben Dimmitt

Structural Engineer
JM Structural Engineer

MEP/FP Engineer
Peter Leptuch

Landscape Architect
Norris Design

Steel Fabrication/Custom Light Fixtures
Makehaus LLC

Site Area
13,827 sf

Building Area
2,997 sf

Photographs
Patrick Y Wong / AtelierWong.com

Drawings
Chioco Design

Related articles 

Featured Project 

Atelier KI JUN KIM

House by the Wall

Other articles in this category