Tower House

15. September 2014

Tower House
2013
Portland, Oregon

Client
Lynn and Alan Crymes

Architect
Benjamin Waechter, Architect
Portland, OR

Design Principal
Benjamin Waechter

Project Team
Drew Krauss, Jared Abraham

Structural Engineer
Munzing Structural Engineering

Contractor
Prutting and Co.

Construction Manager
Andrew Friedman

Sliding Doors
Fleetwood

Windows
Loewen Windows

Metal Siding
Custom-Bilt Metals

Cabinets
Orange Design Industries

Site Area
4,800 sf

Building Area
2,400 sf

Photographs
Lara Swimmer

Drawings
Benjamin Waechter, Architect

View of entrance from street

Please provide an overview of the project.

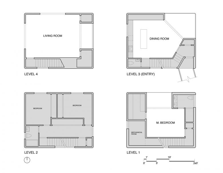
The Tower House is located in the west hills of Portland, Oregon, overlooking the city and the Willamette River. It is sited on a steep and narrow lot with road access from above. The house is 4 stories tall with a footprint of 600 square feet. One enters on the third level via a 25-foot-long steel bridge. The house is clad in black vertical corrugated metal with rounded corners to achieve an uninterrupted fabric like sleeve. The simple volume is punctuated by three recessed loggias.

Detail view of entrance

What are the main ideas and inspirations influencing the design of the building?

The steep and narrow site constraints were the main factors in developing the design. The property is tightly situated between an existing house and a natural ravine. To minimize foundation costs and to fit within the narrow lot dimensions we decided to build up rather than out. The idea was to design a house with one main room per floor and to surround this room with support spaces such as storage, stairs and bathrooms. The plan takes on a “donut” shape with the main room in the center and support spaces in the thickened perimeter wall. The perimeter is “carved” away in areas to create outdoor loggias and to make picture framed views of the city. In this way the house has both privacy and bold views.

Side view of house

Were there any significant challenges that arose during the project? If so, how did you respond to them?

With the added expense of building on a steep grade, construction costs were a significant challenge. The lean budget meant that we had to make smart and good value choices throughout the project. This started with choosing the small footprint constraint that reduced foundation costs. With careful detailing, such as the rounded corners, we were able to use a cost effective metal siding and still have it look good and perform well. On the interior, a hierarchy of room quality was established so the main rooms could have a good level of craft and materiality. The main rooms are finished with oil rubbed white oak while the support spaces are finished with simpler materials.   

View through loggia from dining room

How does the building relate to contemporary architectural trends, be it sustainability, technology, etc.?

Simplicity. The house has a small footprint to minimize storm water runoff and site impact. The building envelope is super insulated helping to keep heating and cooling needs to a minimum. Exterior materials were chosen and detailed to last a long time with minimum maintenance.

Kitchen

How would you describe the architecture of Oregon and how does the building relate to it?

The timber industry has a long history in Oregon. There is no shortage of quality woodworkers in Oregon and it is a great resource. At the same time however, construction budgets tend to be low relative to construction costs making it a challenge to fully capitalize on this resource of craftspeople. The Tower House’s concept of “3-main rooms” was a way to make space for these craftspeople while still fitting within an overall lean budget. Showcasing the craft of these woodworkers, the three rooms help establish the character and memory of the house. 

Email interview conducted by John Hill.

Detail view of living room loggia
Cast models of plans
Floor plans
Cast section model
3 Rooms concept model

Tower House
2013
Portland, Oregon

Client
Lynn and Alan Crymes

Architect
Benjamin Waechter, Architect
Portland, OR

Design Principal
Benjamin Waechter

Project Team
Drew Krauss, Jared Abraham

Structural Engineer
Munzing Structural Engineering

Contractor
Prutting and Co.

Construction Manager
Andrew Friedman

Sliding Doors
Fleetwood

Windows
Loewen Windows

Metal Siding
Custom-Bilt Metals

Cabinets
Orange Design Industries

Site Area
4,800 sf

Building Area
2,400 sf

Photographs
Lara Swimmer

Drawings
Benjamin Waechter, Architect

Related articles 

Other articles in this category