World Building of the Week

Transforming the Urban Village

Eduard Kögel | 29. January 2024
View from the plaza side (Photo © Tian Fangfang)
The Neighborhood Center is scaled to fit in the fine-grained fabric of Nantou (Photo © Tian Fangfang)

Nantou is located in the Pearl River Delta and is an urban village now part of the Shenzhen conurbation that in recent decades has radically restructured all rural settlements in its catchment area. The small ancient walled city of Nantou is around 2,300 years old. Two of its historic city gates have been preserved and are now protected structures. Otherwise, together with the adjoining Zhongshan Park, the small old town is surrounded by multi-lane boulevards. And since the 1980s, its historic architecture has gradually been replaced by self-planned and independently-built residential complexes for the rural population which flooded into Shenzhen. As a result, the town has grown in an uncoordinated manner determined by the self-initiative of land owners into an anarchic urban structure that is now to be redeveloped with careful measures.

 Aerial view showing the Neighborhood Center complex as a group of four building volumes (Photo © Tian Fangfang)

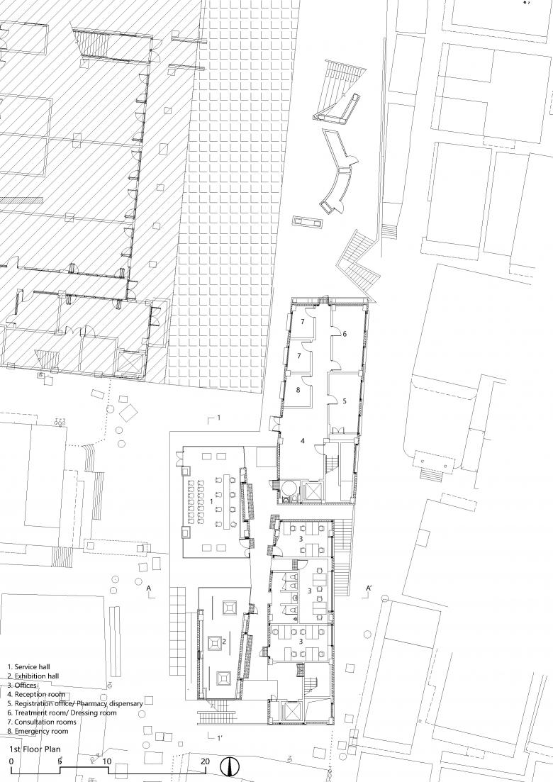
The pre-existing building complex on the site of the Nantou Neighbourhood Centre comprised of two communal facilities for residents on the ground floor with apartments above. With the transformation by Atelier Feichang Jianzhu, the residential function was removed and public functions including a small hospital, community offices, exhibition spaces, teaching and meeting rooms for the neighbourhood were integrated instead. This heterogeneous and complex mix of uses required new access points and larger voids for natural lighting. Four buildings volumes were defined, in keeping with the scale of the neighbourhood, accessed via external corridors and staircases.

Southwestern view (Photo © Tian Fangfang)

The functional transformation also adapted the formerly private character of the architecture in order to express the new communal functions in the cramped urban surroundings. The external circulation via staircases and corridors at upper levels extends the existing alleyway system – which is mostly not accessible by car – and provides public spaces that serve as meeting points for the local population. The façades were built with a mixture of traditional grey and red bricks of different proportions (and bondings), so that the four buildings retain their own character but yet harmonise as a whole. Components such as doors and windows were adapted individually to façade features and functional requirements. The different shapes are held together by the brick skin of the façade. Atelier Feizhang Jianzhu transformed a commonplace urban block in the urban village into a complex of public services in a way that produced additional quality public space despite the cramped situation.

Close-up on the west side: the mix of gray and red bricks and window shape vary from one building volume to another (Photo © Tian Fangfang)

Openness and heterogeneity are key concepts in this transformative architecture. The complexity of functions integrated, and the variety of volumes, forms and materials achieved, merge into a hybrid but unified architectural entity that blends into the neighbourhood fabric. Unfortunately, the old buildings could not be preserved due to their problematic construction quality. The architects based the new structures on the proportions of the neighbourhood and the new functional requirements. The Nantou Neighbourhood Centre is an example of how anonymous, self-constructed buildings can become a model for architecture and how they can make an important contribution to a vibrant urban structure.

The Neighborhood Center provides various public spaces on the ground level along the plaza (Photo © Tian Fangfang)
Client: Wancheng Urban Design Research (Shenzhen) Co., Ltd.
Location: Nantou Ancient Town 
Architects: Atelier Feichang Jianzhu, Beijing
Principal Architects: Yung Ho Chang, Lijia Lu 
Project Team: He ZeLin, Liang XiaoNing, Guo QingMin 
Construction Drawing Design: Bowan Architecture 
Base Area: 837 sqm
Building Area: 2,894 sqm
Structure: Reinforced concrete frame 
Design Period: 2019–2021
An open-air alley on the 5th floor (Photo © Tian Fangfang)
Brick wall with seats built in (Photo © Tian Fangfang)
In the narrow alley on the east side (Photo © Tian Fangfang)
Nantou Neighborhood Center (Photo © Tian Fangfang)
The plaza at dusk (Photo © Tian Fangfang)
1st floor plan © FCJZ
4th floor plan © FCJZ
Sections © FCJZ
Elevations © FCJZ

Related articles 

Other articles in this category