Barkow Leibinger
Trumpf Smart Factory Chicago
One of the best recent buildings in Chicago isn't located in the Loop or one of the city's neighborhoods – it's in Hoffman Estates, a northwest suburb near O'Hare International Airport. The area is known for big box stores, large malls, and unexceptional office parks. Barkow Leibinger's Trumpf Smart Factory Chicago is a breath of fresh air in this context. The exterior is marked by rusted corrugated metal and generous glazing, while the highlight inside is a "skywalk" snaking through trusses made with Trumpf machinery. The architects answered a few questions about the building.
Project: Trumpf Smart Factory Chicago, 2017
Location: Hoffman Estates, Illinois, USA
Client: TRUMPF Inc.
Architect: Barkow Leibinger, Berlin
Design Principals: Frank Barkow, Regine Leibinger
Project Architect: Heiko Krech
Project Team: Johannes Beck, Jordan Berta, Carles Figueras, Cecilia Fossati, Andreas Moling, Antje Steckhan, Daniel Toole, Alexa Tsien-Shiang, Annette Wagner, Jens Wessel
Architect of Record: Heitman Architects Inc.
Structural Engineer (Design): Knippers Helbig GmbH
Structural Engineer (of Record): KJWW Engineering Consultants
Climate/Energy Design, Mechanical and Electrical Engineer, HVAC: KJWW Engineering Consultants
Façade Consultant: Knippers Helbig GmbH
Lighting Design: Studio Dinnebier
Landscape Architect (Design): Capatti Staubach
Landscape Architect (of Record): Gary R. Weber Associates Inc.
General Contractor: McShane Construction Company
Project Management: Lendlease
Gross Floor Area: 5,300 m2 / 57,000 sf
Please provide an overview of the project.
The factory and the exhibition space – ordinarily, these two project types would lie worlds apart for an architect. With one, functionality and cost-efficiency reign; with the other, the highest demands are placed on design and quality of execution. A new presentation and sales center for the German machine tool and laser manufacturer TRUMPF near Chicago combines both worlds and turns high-tech machines and innovative production processes into exhibition-like showpieces.
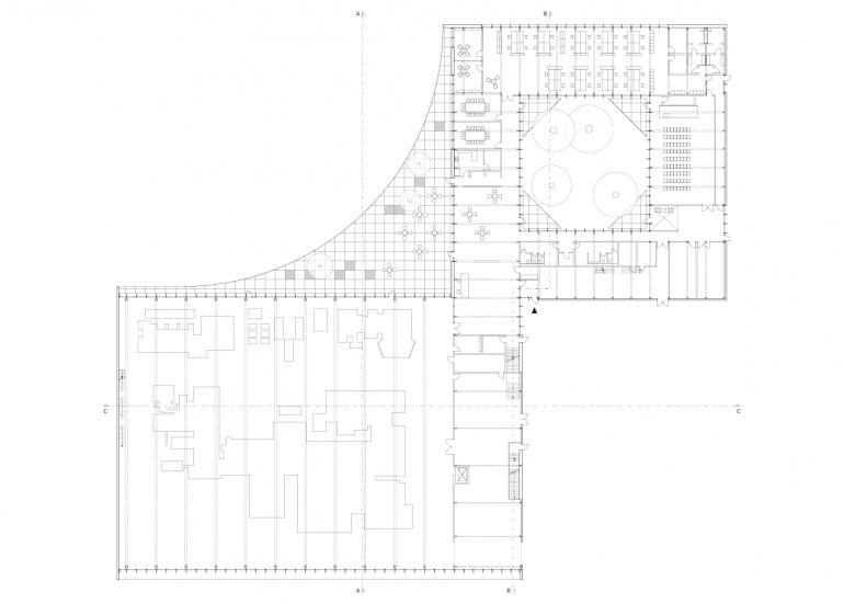
The Industry 4.0 demonstration factory fitted with digitally networked machines presents the entire sheet metal process chain, from ordering a sheet metal part to its design, production and delivery, experienced as an intelligently interlinked, holistic process. Prominently located on Interstate 90 near Chicago O’Hare International Airport, the building is organized into two large volumes: a showroom to the south; an office, café and auditorium space to the north. They are connected at their corners and create two rectangular exterior zones.
How does the design respond to the unique qualities of the site?
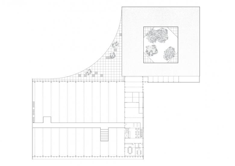
The building is situated on a parcel facing Interstate 90 within a park of the former grounds of the now empty AT&T headquarters in Hoffman Estates. The context is ubiquitous suburban sprawl: big box stores, strip malls, tilt-up industrial buildings and fast food joints. Therefore the response was to act locally: orient a large glass facade to the highway as a display window to the machines and processes within roofed by a sloping shed roof, which scales the building down to the more intimate wetlands at the interior of the site. The building is organized as a figure eight, which forms two open corners: one forms a parking lot/ entry and the other forms a quarter circle terrace, which faces the wetlands. The larger site – the Midwest, that is – offers examples, such as Mies van der Rohe's IIT campus, Eero Saarinen's John Deere Headquarters, and C.F. Murphy's Daley Center in the Loop, of steel and Cor-ten steel construction. The history of the "Rust Belt" as the oldest and largest industrial region in the USA is brought together with computer-controlled high-tech production – functionality meets representation, and pragmatism meets refinement.
What other ideas and inspirations influenced the design of the building?
As a demonstration factory, the building should showcase the company’s manufacturing machinery as well as its know-how. The showroom with Trumpf machines – physically and digitally networked as an entire production line – is spanned by eleven steel Vierendeel trusses, approximately 45 m long with a maximum effective height of 3.6 meters. Customized from welded variable parts laser-cut on TRUMPF machines and weighing over 17 tons, these beams function as a further "exhibit."
Visitors are given a special overview of the facilities via an open "skywalk," a bridge that runs through the trusses of the ceiling structure at a height of 6.50 m, thus enabling one to perceive the laser-cut filigree structure as space. This is an updating of an historical structural invention, the Vierendeel, but now digitally fabricated and variable to incremental loading: a truss that eliminates diagonal bracing thus making it spatially open.
Was the project influenced by any trends in energy-conservation, construction, or design?
In terms of energy-conservation, we followed the high standards of all our projects and used double-glazing with a low-E coating to aid in protecting against excessive solar radiation. In terms of design, it is less a trend than our fundamental approach that in industrial spaces for production, administration and public zones should be equivalent and well designed as well as functionally linked to each other.
A core belief from the client is that superior architecture improves all workplaces and, thus, directly the quality of their products. Another trend is flexibility: all rooms are flexibly designed to adapt to changing requirements. The building configuration allows for possible expansion to the north and west as necessary. The building is demountable and balances glazing areas by well insulated closed surfaces.
What products or materials have contributed to the success of the completed building?
The building’s exterior, with its rough cladding of deep rust-colored corrugated Cor-ten steel sheeting and its elegant, floor-to-ceiling glazing, emphasizes both its industrial context and its representative function. In addition, charred, deep-grained Douglas fir vertical siding (from Delta in Austin, Texas) was employed for the facades of the office building facing the inner courtyard and pond, creating a homogeneous atmosphere and slightly softer appearance. Inside the building, charred wood is applied as ceiling-high wall paneling. Here, raw, industrial materials with refined surfaces establish a warm, almost domestic atmosphere. The construction of black steel, polished concrete floors, expanded metal mesh panels and charred wood walls characterize spaces where industrial production and exhibition are coherently integrated. Of course the laser cut Vierendeel trusses made by Tie Down Engineering in Atlanta were key.
Email interview conducted by John Hill.

















