Turnagain Beach House
Turnagain Beach House
All states are at the mercy of natural elements to some degree, but none as much as Alaska, the 49th state and the only one entirely north of the 49th parallel, which forms the U.S. border with Canada. The harsh and sometimes dramatic effects of Mother Nature were the inspiration for kpb architects' Turnagain Beach House. Specifically it was the hypothetical scattering of elements from the very-real 1964 Great Alaska Earthquake. The architects supplied us with the following text and images.
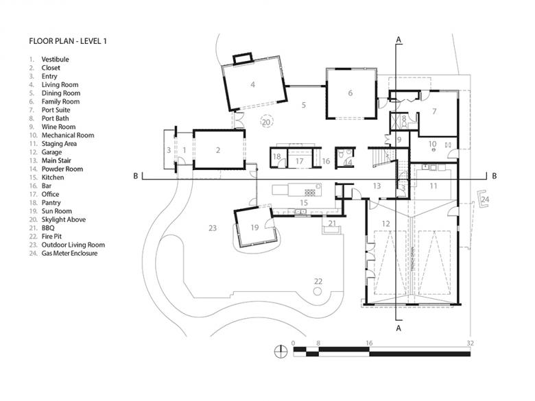
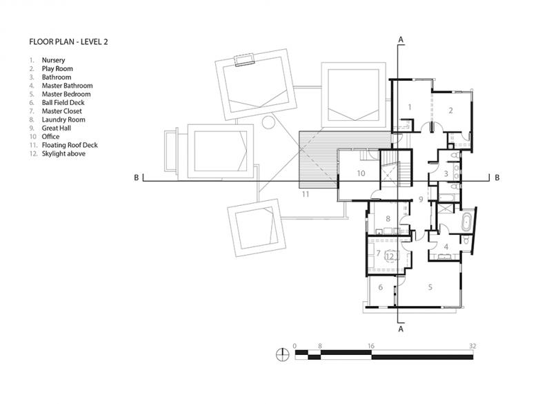
Located on the landslide area left by the 1964 Great Alaska Earthquake, we approached the site with this historic event in mind. A substantial portion of the original 1950’s neighborhood slid into Cook Inlet when the bluff failed. Afterwards the area was spotted with the remains of homes sitting askew to their original orientations.
Five portions of this house were designed conceptually as “original structures” that “made it through the slide,” found as ruins sitting awry on the site. Using these sturdy survivors as anchors, their exteriors were finished with board and batten style siding and wood ceilings commonly found around the original neighborhood. The areas between these anchors were filled, creating the body of the house.
Their exteriors finished with new, contemporary materials, reflect new beginnings. These areas provide contrast to the traditional, structural elements by illustrating a lighter, almost floating quality. The contemporary areas are theoretically seismically untested; like a house of cards, they’re relying on anchors for stability and support.
As each anchor is its own entity, the exterior finishes are continuous on all faces, bringing the historic thread indoors. The interior was fashioned for the active family of four; room for all to play, entertain, and display their artwork. The house is situated to capture the varied paths of the Alaska sun, to frame views of Cook Inlet and the Alaska Range, and to provide privacy from the surrounding public venues. Details throughout the home and the landscaping continue the play between disarrayed and orderly.
Turnagain Beach House
2013
Anchorage, Alaska
Client
Pfeffer Family
Architect
kpb architects
Design Principal
Andrew J. Weiss
Project Manager
Jeff Koonce
Structural Engineer
Michael Fierro, PE
Landscape Architect
Northwest Landscaping, Bud Hooker
Interior Designer
Alisha Weiss
Contractor
Dawson Development
Photographs
Kevin Smith Photography
Drawings
kpb architects








