University of Delaware - Campus Bookstore & University Development Office Building
University of Delaware - Campus Bookstore & University Development Office Building
25. February 2013
Bookstores may be a dying breed, but they are integral to universities, where they provide more than just textbooks to students. But when a national chain runs the bookstore there is the risk of inserting a standard big-box into the context of the school and town. Thankfully for the University of Delaware and town of Newark, DIGSAU shaped a new bookstore and offices to create an urban plaza and "promote a symbiotic relationship between the exterior public space and interior retail space." DIGSAU answered some questions about the project.
View from Academy Street
What were the circumstances of receiving the commission for this project?
With the assistance of a regional developer (The Buccini Pollin Group), the University of Delaware engaged several firms in an invited RFP process. The written proposals were narrowed to a short list of three which were interviewed and invited to present a design approach for the integration of a large-scale retail development into the urban fabric of Newark. DIGSAU was selected based upon the response to the project constraints and integration into the urban surroundings.
View of retail interior with courtyard in the background
Can you describe your design process for the building?
The design process focused on the reconsideration of the placeless big-box retail experience. The typical big-box superstore, a large rectangular single-story building with windowless facades surrounded by acres of parking, intentionally disengages people from their surroundings rather than promoting community or social engagement.
The anonymous nature of the typical big-box retail development would be incredibly impactful to the unique small scale urban context of Main Street Newark. Instead the big-box prototype was carved away to provide urban plaza, reshaping the standard massing strategies to promote a symbiotic relationship between the exterior public space and interior retail space.
Tower-cantilever detail
How does the completed building compare to the project as designed? Were there any dramatic changes between the two and/or lessons learned during construction?
The design process included an iterative documentation and pricing effort that utilized the expertize of the Construction Manager, BPGS Construction. With few exceptions, the completed project closely adheres to the design intent as documented.
Urban diagram
How does the building compare to other projects in your office, be it the same or other building types?
The bookstore structure and plaza directly engage several firm priorities: thoughtful consideration of materials, contemporary detailing, and urban engagement and responsiveness. DIGSAU pursues a broad range of building typologies. Our diverse backgrounds and a broad range of partnerships allow us to execute innovative projects across a wide range of project types.
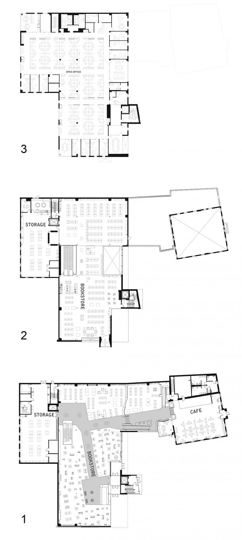
Floor plans levels 1-3
How would you describe the architecture of Delaware and how does the building relate to it?
Delaware architecture is characterized by its depth of rural vernacular buildings punctuated by moderately dense urban areas. The urban zones are defined by an extensive fabric of historic “Main Streets” with a primarily masonry building stock punctuated by modernist and more contemporary buildings. Sited amongst several historic red-brick structures, the Bookstore creates a significant public plaza that connects the primary thoroughfares in Newark, East Main Street and Academy Street, while providing ample frontage for the Bookstore, exterior cafe seating, and a public square for both University students and Newark residents to gather. The historic Christina School Building was restored and incorporated into the Bookstore as a double-height cafe. The monk bond masonry pattern found throughout the University of Delaware’s campus is reinterpreted with three-dimensional relief and a dark color that creates a contrasting backdrop to the adjacent historic masonry structures.
Email interview conducted by John Hill.
Email interview conducted by John Hill.
Detail illustrating the "modified" Monk Bond
University of Delaware - Campus Bookstore & University Development Office Building
2011
Newark, DE
Client
University of Delaware
Architect
DIGSAU
Philadelphia, PA
Design Principals
Mark Sanderson, Jules Dingle, Jamie Unkler, Jeff Goldstein
Project Team
Nick Musser, Paul Kangas-Miller, Aaron Jezzi, Erin Lauer
Structural Engineer
MacIntosh Engineering
MEP Engineer
Delaware Engineering & Design Corp.
Landscape Architect
Studio | Bryan Hanes
Contractor/Construction Manager
BPGS Construction
Bookstore Fit-Out
Tricarico Architecture & Design
Lighting
Focal Point
Site Area
46,000 sf
Building Area
60,000 sf
Photographs
© Todd Mason / Halkin Photography
Drawings
DIGSAU
Philadelphia, PA
Design Principals
Mark Sanderson, Jules Dingle, Jamie Unkler, Jeff Goldstein
Project Team
Nick Musser, Paul Kangas-Miller, Aaron Jezzi, Erin Lauer
Structural Engineer
MacIntosh Engineering
MEP Engineer
Delaware Engineering & Design Corp.
Landscape Architect
Studio | Bryan Hanes
Contractor/Construction Manager
BPGS Construction
Bookstore Fit-Out
Tricarico Architecture & Design
Lighting
Focal Point
Site Area
46,000 sf
Building Area
60,000 sf
Photographs
© Todd Mason / Halkin Photography
Drawings
DIGSAU





