US Building of the Week
University of Iowa Stanley Museum of Art
The Stanley Museum of Art opened on the University of Iowa campus in August 2022, fourteen years after rising waters from the Iowa River flooded the original museum building. The new building designed by BNIM is marked by its dark brick exterior and a lightwell bringing natural light inside the building. The architects answered a few questions about the project.
Location: Iowa City, Iowa, USA
Client: University of Iowa
Architect: BNIM
- Design Principal: Carey Nagle, AIA
- Principal-in-Charge: Rod Kruse, FAIA
- Project Architect: Levi Robb, AIA
- Project Manager: Tom Feldmann, AIA
- Project Team: Kayla Berkson, AIA; Dana Sorensen, AIA; Tina Wehrman, Sarah Hirsch
MEP/FP Engineer: Design Engineers
Landscape Architect: BNIM
Lighting Designer: Renfro Design Group
Interior Designer: BNIM
Contractor: Russell Construction
Civil Engineer: Shive Hattery Architecture Engineering
AV Consultant: Jaffe Holden
Masonry: Seedorf Masonry
Furniture: Pigott
Building Area: 63,000 sf
See bottom for Important Manufacturers / Products.
The Stanley Museum of Art is a new cultural arts destination on the University of Iowa campus that restores an art museum presence to the campus community after 14 years following historic flooding in 2008. The new home for the Stanlely Museum of Art reunites the University of Iowa with its extensive and renowned collections of African Art, 20th Century Art, as well as Jackson Pollock’s Mural.
Dynamic and kinetic brick exterior complements the masonry characteristics of neighboring structures and conveys the timelessness and stability of the collection housed within. An inviting entry plaza and daylight-filled lobby establish a sense of transparency and campus connection, allowing artistic expression to extend beyond the walls of the museum.
The Stanley Museum of Art is designed to be a learning and teaching laboratory for the arts. Engaging public spaces, galleries, terraces, and a sculpture courtyard create a vibrant and supportive museum experience for visitors to study, discuss, and explore collections. A series of flexible galleries enable the Stanley Museum of Art to tailor to the needs of the collections, host traveling exhibitions, and support faculty’s curation of collections as well as students’ education in the principles of curating. A visual arts classroom, visible storage room, teaching studios, offices, and collaborative staff and volunteer spaces are also dedicated to research and teaching of the collections.
Dynamic and kinetic dark, warm brick exterior recalls the timeless academic and cultural brick masonry buildings of Alvar Aalto, Louis Khan, and Eero and Eliel Saarinen. Through an alternating composition of brick texture and brick finish, the facade is transformed by the daily and seasonal changes in sunlight, creating oscillating levels of reflection and shadow.
As visitors make their way into the University of Iowa Stanley Museum of Art, they are greeted by a daylight-filled lobby. The glass facade of the museum’s main floor brings the outside in, establishing transparency and connection to the surrounding campus community and passersby. Director of the Stanley Museum of Art, Lauren Lessing shares the significance of this design: “Stepping in that beautiful lobby, I love the fact that it is so transparent because that really reflects our ethos. We want to be a transparent institution. We are a public art museum. We really want the public that we serve to know exactly what’s going on in the museum, and I love how the building communicates that.”
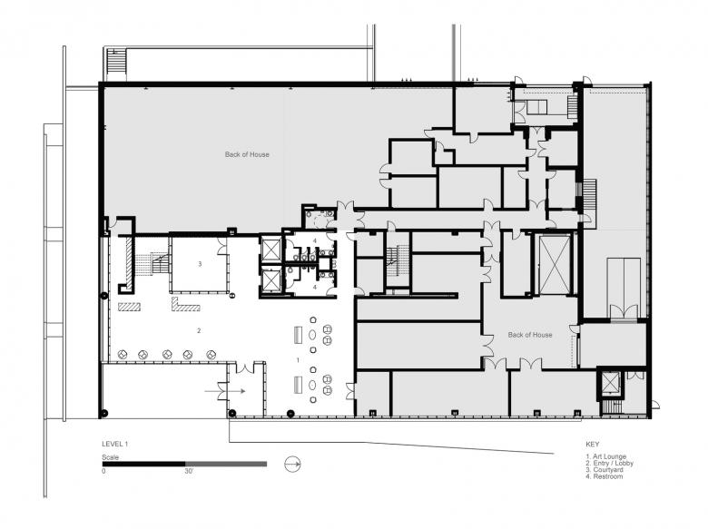
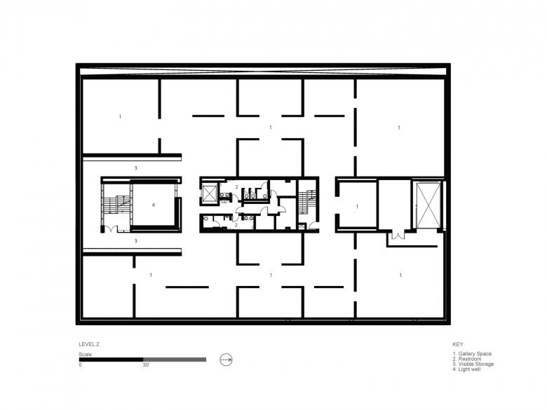
As a rectilinear solid interrupted by interconnected voids, the form provides for the display, conservation, and storage of the museum's collections and invites daylight into the building through interconnected volumes. These natural light-filled voids link the museum’s three floors and create an intuitive pathway for visitor experience. A central exterior courtyard also establishes connections to daylight and nature in additional display space where visitors can enjoy sculptural installations.
Catastrophic flooding in 2008 breached the 500-year flood level of the Iowa River flooding the new University of Iowa Stanley Museum of Art site as well as that of the original 1968 museum located across the river. It was determined that mitigating the original museum from future flooding was not financially feasible and a new facility should be constructed. To address the concerns of future flooding at the new site, the first level of the new Stanley Museum of Art was elevated above grade and the 500-year flood level to match the first floor level of the adjacent Main Library.
The Stanley Museum of Art’s site was configured to create a shared front door for the museum, library and the campus at-large by focusing on and improving the existing Gibson Square campus green. Furthermore, the site planning configuration provides for a common site entrance, accessible drop off and bus parking for the museum and library while simultaneously providing prominent street frontage for visual access to the public programs to be conducted in the museum lobby and in Gibson Square. This relationship celebrates the shared values and a commitment to increased collaboration between the two entities and integrates the library’s extensive special collections with that of the museum. Gibson square will in turn serve as a sculpture garden for the museum and provide an opportunity to expand the already significant collection, truly allowing engagement with the arts to be a central component of the campus experience.
A key consideration for the University of Iowa Stanley Museum of Art was the need to deliver the highest quality of conservation environment for the university's outstanding collection, while also doing so within a constrained budget with respect to the performative and programmatic criteria. Delivering an efficient and highly functional floor plate was critical to meeting the constrained budget expectations and other project functions. Ultimately, a floor plan was developed that still provided the necessary programmatic separation of art and non-art-based circulation pathways while only requiring 2,903 sf of circulation corridor amongst the 63,164 sf of total gross area yielding maximum efficiency and an appropriate allocation of the limited resources to their most pressing needs. Corridors were limited to a back of house circulation spine at level 1, a small restroom access spur from the gallery at level 2 and an “L” shaped corridor to access a multitude of program distributed throughout level 3.
- Energy reduction from baseline: 63%
- Embodied Carbon reduction: 23%
- Carbon lbs net emissions reduction from baseline: 63%
- LPD reduction per 2030 Challenge baselines: 37%
- Indoor water fixtures and process reduction: 27.5%
- Stormwater management of 2-year, 24-hour storm stored onsite: 29.7%
- Vegetated site area of total site, excluding building footprint: 23.8%
- Native planting covering planted area: 86.9%
- Spatial daylight autonomy – R.O. floor area with useable daylight: 47%
- Quality view – R.O. floor area with view to exterior: 47%
- Walkability Score: 50
The brick selection, both in materiality as well as color, texture and bond, were selected to simultaneously speak to and differentiate from the surrounding context of brick masonry. The dark manganese washed brick and its configuration / texture appealed to us in the manner that it responds to daily and seasonal shifts in light. The manganese wash reflects the sky and appears silver in some conditions, while a dark warm tone in others; the play of light on those changing surfaces and the variety of ways the facade’s texture casts shadow upon itself was an effect we were very interested in at multiple scales.
High performance triple element low-e glazing assemblies with UV filtration were deployed adjacent to the conservation environment and were critical to maintaining the temperature and humidity requirements. Daylighting strategies in concert with other lighting systems decisions resulted in a 36% lighting density savings.
The positioning and configuration of the light well was designed to visually connect all public spaces of the museum while delivering daylight to those spaces in a controlled manner for the long term preservation and protection of the collection. In addition, a series of facade layers work in concert to afford these collections protections. Glazing within any proximity to the collection is fitted with UV filtration while automatic shades retract when light levels exceed collection allowances. Visual laboratory spaces, which provide opportunities for staff lead direct engagement with the collection, are glazed and screened with wood slats and additional roller shades to afford multiple layers of light protection for the collections while simultaneously allowing connectivity and views in from exterior facing corridors.
The tight envelope, high wall system R-value (system value of R-30), and mass, in concert with a portion of building systems on emergency power, allows the building to maintain temperature and humidity for the care of the collection in the event of primary system interruptions.
Email interview conducted by John Hill.
Important Manufacturers / Products:
Structural System
- Steel frame, main stair: Donner Steel Works
Exterior Cladding
- Masonry: Endicott Clay Products
- Metal/glass curtain wall: Oldcastle Building Envelope
- Moisture barrier: Grace Construction Products, Perm-A-Barrier
Roofing
- Built-up roofing: Sarnafil
Glazing
- Glass: Oldcastle Building Envelope
Doors
- Entrances: Oldcastle Building Envelope
- Metal doors: Curries
- Wood doors: Eggers
- Fire-control doors, security grilles: McKeon
Interior Finishes
- Acoustical ceilings: Rulon
- Cabinetwork and custom woodwork: Architectural Arts
- Paints and stains: Sherwin Williams
- Plastic laminate: Formica
- Solid surfacing: Daltile
- Floor and wall tile: Ceramich Caesar
Furnishings
- Office furniture: Knoll, Herman Miller, Steelcase
- Reception furniture: Knoll, Herman Miller
- Chairs: Knoll, Herman Miller
- Tables: Knoll, Herman Miller
Lighting
- Interior ambient lighting: Vode, Systemilux
- Downlights: Lighting Services Inc.
- Exterior: Lumenpulse, Elliptipar
Conveyance
- Elevators/escalators: Schumacher

















