Uptown

Uptown

26. November 2012

Uptown
2012

Cleveland, OH

Client
MRN, Ltd.

Architect
Stanley Saitowitz / Natoma Architects Inc.

San Francisco

Design Principal
Stanley Saitowitz

Project Architect
Neil Kaye

Project Manager
Markus Biscohoff

Job Captain
Daniel Germain

Structural Engineer
Ebersole Structural Engineers

MEP/FP Engineer
WHS Engineering

Landscape Architect
James Corner Field Operations
New York

Contractor
MRN, Ltd

Construction Manager
Rick Maron, Wes Howells

Metal Panels
MG McGrath

Glazing
All Metro Glass

Millwork
Royal Cabinets

Elevators
Gable Elevator

Solid Surfacing
Corian

Building Area
172,000sf

Photos
Rien van Rijthoven

View of Alley and Euclid Ave

What were the circumstances of receiving the commission for this project?

We were picked from a shortlist RFP. Reed Kroloff and Casey Jones for Case University, who owns the land, and MRN, who were selected to develop it, managed the selection.

Alley and 115th Street

Can you describe your design process for the building?

We were interested in repairing the fragmented urban fabric with buildings that would sew the pieces together.  We also wanted to complement the strong urban fabric of downtown Cleveland with a contemporary "Uptown" fabric using a similar but new language of punched openings. This is phase one of a project that will include two more buildings, one of which is about to start construction. When done it will be a long block of substantial urban fabric with two institutions, MOCA (Museum of Contemporary Art) and CIA (Cleveland Insitute of Art) as terminuses at the ends.

View of Beach Building

How does the completed building compare to the project as designed? Were there any dramatic changes between the two and/or lessons learned during construction?

No, and in fact the next phase will continue the same language, but at a larger scale. There will be a change in construction method – instead of post-tensioned concrete we are using steel.

Euclid Ave Facades

How does the building compare to other projects in your office, be it the same or other building types?

We have a number of urban mixed-use projects of similar or larger scale in cities around the U.S. as well as in San Francisco.

Lobby in Beach Building

How does the building relate to contemporary architectural trends, be it sustainability, technology, etc.?

I think it is something of a counterpoint to much of the currently celebrated architecture which aims at being dazzling solo objects. Here the intention is to continue the building of the city with buildings that weave past and present into a continuous whole.

Email interview conducted by John Hill.

Site Plan
Residental Fllor Plan
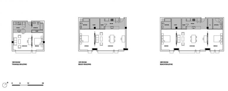
Typical Unit Plan

Uptown
2012

Cleveland, OH

Client
MRN, Ltd.

Architect
Stanley Saitowitz / Natoma Architects Inc.

San Francisco

Design Principal
Stanley Saitowitz

Project Architect
Neil Kaye

Project Manager
Markus Biscohoff

Job Captain
Daniel Germain

Structural Engineer
Ebersole Structural Engineers

MEP/FP Engineer
WHS Engineering

Landscape Architect
James Corner Field Operations
New York

Contractor
MRN, Ltd

Construction Manager
Rick Maron, Wes Howells

Metal Panels
MG McGrath

Glazing
All Metro Glass

Millwork
Royal Cabinets

Elevators
Gable Elevator

Solid Surfacing
Corian

Building Area
172,000sf

Photos
Rien van Rijthoven

Related articles 

Other articles in this category