Urban Incubator
Urban Incubator
In 2009 the central government began the so-named Go West campaign to improve infrastructure and stimulate industrial growth in western inland provinces. Chengdu, the capital of the Sichuan province, is one of the centres identified by this campaign. More than ten million inhabitants live in this city today: it has been rapidly growing as one of the major hubs in the region for twenty years already. The site for the new West Village Basis Yard, designed by Jiakun Architects from Chengdu, is located within the newly urbanised area to the northwest of the city, set back a short distance from one of the major roads. During the latter years of the urbanisation process, the site was firstly turned into a golf course and in the 1990s a swimming hall was built in the north of the site.
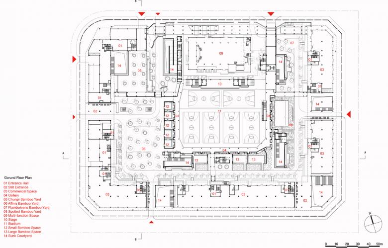
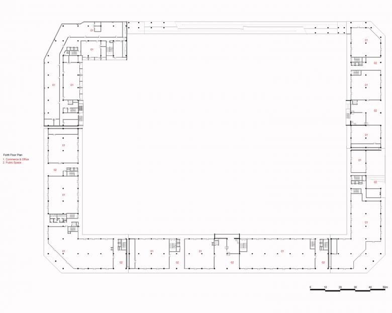
Liu Jiakun and his team kept the former swimming hall and converted it into a multi-functional centre within the bigger context of the entire development complex. The surrounding dense and high-rise residential blocks called for space to host social and cultural institutions. The designers took the opportunity to create more than a series of adjacent functions, instead interweaving sport and leisure activities, with space for cultural and artistic events, as well as space for the creative and fashion industries. The huge complex occupies a site of 237m x 178m. Local regulations allowed a building height of 24 meters.
Liu Jiakun and his team kept the former swimming hall and converted it into a multi-functional centre within the bigger context of the entire development complex. The surrounding dense and high-rise residential blocks called for space to host social and cultural institutions. The designers took the opportunity to create more than a series of adjacent functions, instead interweaving sport and leisure activities, with space for cultural and artistic events, as well as space for the creative and fashion industries. The huge complex occupies a site of 237m x 178m. Local regulations allowed a building height of 24 meters.
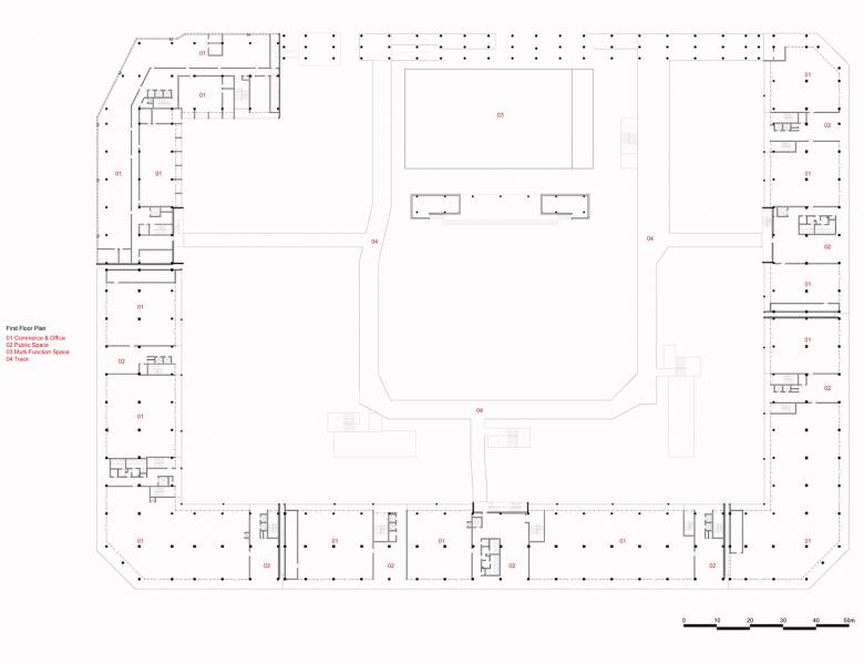
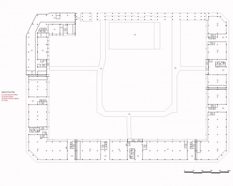
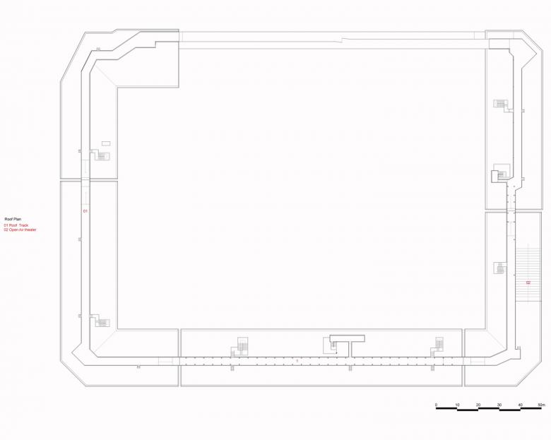
Three sides – to the east, south and west – are fully built to five and six storeys; whereas the north side is formed by dogleg ramps running almost its full length. These ramps can be used by bicycle or foot to reach the upper floors. They also can be used as a 1.6 kilometre circuit, for bicycle sports or for jogging along the rooftop. The building acts as an urban-densifier for the activities of users from the surrounding mono-functional housing compounds, and also allows/enables the integration of functions typically separated. The huge continuous building with its enclosing ramp makes a clearly defined edge to the pedestrian footpath and contributes additionally to a lively street life. The interior space, which gave the name Basis Yard to the complex, is filled with different functions. Three big sport fields in the centre assure that daytime and night-time movement and noise remind of public activities in a dense city. Additionally, intimate, bamboo-planted public spaces in this yard allow almost private usage within the public framework of the overall layout.
The functions in the continuous building along the perimeter of the block are subordinate to the Basics Yard, and do not yet have a strong individuality. The concrete slabs of the building appear like superimposed platforms with an almost neutral appearance. The spaces for commercial use are set back, with the circulation organised as continuous verandas. This measure makes the movement of people visible from the street, which, together with the sculptural open stairs to the yard, gives the uniform block a strong expression both as architecture and as a living organism. The individualisation – through advertisement and changes in the façade – resulting from the process of appropriation will add a second layer of animation. This is part of the architectural concept and reflects the reality of unregulated changes made by users.
The landscape in the yard is filled with different species of bamboo, which reflect the traditional courtyard style in the city. From each side the compound is accessible at street level, with the distinguished interior space offers opportunities for active and passive recreation. The overall impact of such a complex on the urban environment and on the life of the population is very important; it prompts a new kind of local urbanity to emerge from the pressure of daily need for a relaxing city, and out of an original Chinese urban lifestyle.
Text by Eduard Koegel




















