Ushiku House
Ushiku House
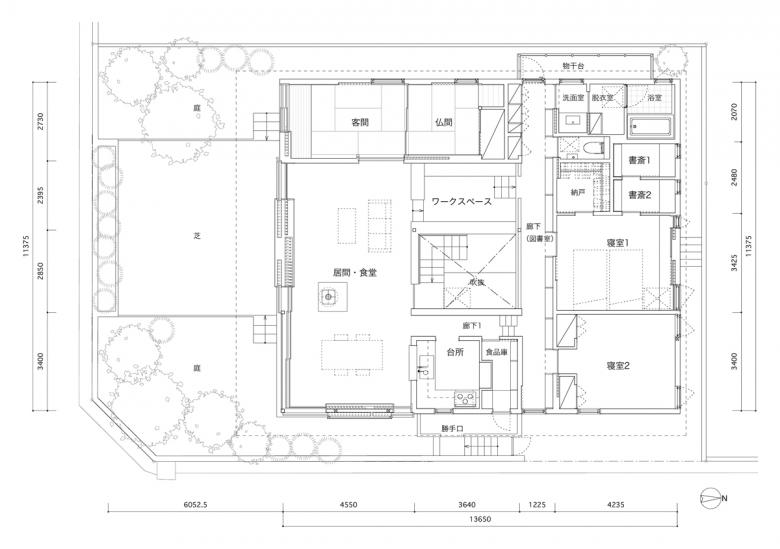
This private residence located in the city of Ushiki, Ibaraki Prefecture, was designed by Kanagawa Prefecture-based Yashima Architect and Associates. The firm specializes in residential design, and so takes particular care in addressing issues such as what a home should be and how it should relate to its surroundings. This project features a large shed roof covering an open interior space organized via gradations in natural light. A fireplace in the central living and kitchen area sends warm air up along the slanted ceiling to circulate through the entire house. The architects intended the warm atmosphere of the home—in both a literal and figurative sense—to encourage communication between its inhabitants and naturally bring them together. We asked design principals Yuko and Masatoshi Yashima about the project.
Please give us an overview of the project.
Under the large shed roof that covers this home, spaces for gathering and spaces for privacy are loosely linked in a floor plan with unbroken circulation. Rooms progress inward from the south side in order of their need for natural light. These differences in light, together with variations in material and floor and ceiling height, gradually shift the atmosphere of the living spaces so that they are linked but do not interfere excessively with one another.
What was most important for you during the design process?
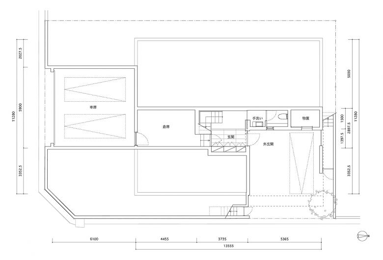
We began by carrying out an on-the-ground assessment and analysis of the environment surrounding the lot. It’s located in a quiet residential neighborhood very close to a park, but the surroundings are not entirely pleasant, so questions such as where to locate the parking space and how to deal with windows in areas lacking a good view guided the sectional composition. While we handled the relationship with the surrounding area, the height of sight lines, and the scope of views very carefully, our first priority was to create a structure that in itself selectively blocked out undesirable views.
What challenges did you face in the project? How did you respond to them?
Because the site is south-facing, we considered our strategy for bringing in natural light and views of surrounding greenery quite extensively. We wanted to include large openings on the south side to bring in lots of light, but we had to include sliding glass doors and paper, metal and wooden screens to modulate the sunlight and ventilation. To protect the wooden portions of these fixtures, we extended the eaves 1550 mm. Under the large roof, a single room encompases all areas aside from the bedrooms and bathrooms. Light pours in from skylights in the center and north sections of the roof, creating a rhythm that naturally makes inhabitants aware of the overall structure of the building. The design of these openings and the areas surrounding them are the keystone of this home.
What did you learn from this project? What will you take from it to future projects?
The client is a local, and through the design process, we kept an image in our minds of nearby family, friends, and other guests gathering at the home. We tried to create a space that would easily become part of the community. The project reaffirmed for us the importance of thinking very deeply about how the customs and behaviors important to Japanese culture can be incorporated into residential spaces, and how materials and designs suited to the local climate should be handled within the context of contemporary lifestyles.
E-mail interview by Yuna Yagi (translated from Japanese by Winifred Bird)
Ushiku House
2011
Ibaraki
Architects
Yashima Architect and Associates
Design Principal
Masatoshi Yashima, Yuko Yashima
Project Team
Nozomi Oda
Structural Engineer
Kazuaki Yashima/Yashima Architect and Associates
Contractor
Gunji Construction Co., Ltd.
Kitchen Furniture Manufacturing
Rinnai
Toilet
TOTO
Bath
TOTO
Hardware
BEST
Lighting Fixture
Louis Poulsen, etc.
Site Area
305.01 ㎡
Building Area
198.02 ㎡
Total Floor Area
199.78 ㎡
Photo
Koichi Torimura












