brg3s

UTHSC Center for Healthcare Improvement and Patient Simulation

brg3s | 31. July 2018
Photo: Timothy Hursley

Project: The University of Tennessee Health Science Center (UTHSC) Center for Healthcare Improvement and Patient Simulation (CHIPS), 2018
Location: Memphis, Tennessee, USA
Client: UTHSC
Architect: brg3s, Memphis
Design Principal: Jason Jackson
Project Architect: Kate Haywood
Project Manager: Brett Ragsdale
Project Team: Steve Berger, Jay Sweeney
Structural Engineer: Allen & Hoshall
MEP/FP Engineer: Allen & Hoshall
Landscape Architect: Ritchie Smith Associates
Lighting Designer: brg3s
Interior Designer: brg3s
Contractor: Flintco
Planning: Ellenzweig
Medical Simulation Consultants: Sim Health Group
Building Area: 60,700 sf

View from the intersection of Monroe Avenue and S Dunlap Street (Photo: brg3s)

Please provide an overview of the project.
The Center for Healthcare Improvement and Patient Simulation (CHIPs) is a University of Tennessee learning and research facility located in downtown Memphis. The Center provides traditional classroom and administrative space as well as simulated healthcare environments to train students for real-world community crises. The urban location, on a small site tightly hemmed in by existing Brutalist and Neo-Gothic university buildings and a city park, required both stylistic and massing innovation. The final three-story design tied together the existing structures into a cohesive campus, critically responding to and complimenting neighboring buildings through the interplay of exterior materials and the planes in which the materials are utilized. The west elevation brick plane, in particular, lifts to reveal a ramped entrance that opens to the street, framing views of the nearby park and creating a front door beacon.

West elevation (Photo: Timothy Hursley)

What are the main ideas and inspirations influencing the design of the building?
The design of the Center focuses on celebrating a small, urban site while creating a pedestrian-friendly campus feel for a traditionally car-centric university setting. Celebrating and responding to the adjacent buildings was critical to design success, and was achieved through views, materiality, and scale.

Detail of west elevation (Photo: brg3s)

How does the design respond to the unique qualities of the site?
Carving away the brick facade with a dramatic planar lift, the design reveals a ramped entrance creates a welcoming pedestrian gesture and frames views to the adjacent campus buildings and park. Fenestration in the west-facing brick facade is designed to minimize solar heat gain and glare and enhance park visibility.

View from the southwest (Photo: Timothy Hursley)

How did the project change between the initial design stage and the completion of the building?
During the design phase, the design team chose to elevate the building five feet above grade to match the floor elevations of the adjacent building. This allowed for a more comfortable transition for the heavy traffic at the bridged entrance in the back, but created a challenge at the main entrance by essentially putting the building on a pedestal with a very limited site. The pedestal was then carved away to create accessible and pedestrian friendly vertical circulation and exterior spaces at the street.

Student entrance (Photo: Timothy Hursley)

Was the project influenced by any trends in energy-conservation, construction, or design?
The goal of healthcare education is to develop competent and caring healthcare practitioners who are capable of providing the highest level of safe care to their patients. Determining the optimal path, and the elements needed to arrive at this goal, remains a challenge and work in progress. Over the past two decades, simulation has entered the scene in dramatic fashion and its use has grown exponentially. Borrowing from other high-risk fields that have been using simulation for quite some time, such as aviation and astronautics, we have increasingly begun to refine the most effective and efficient ways to use simulation in healthcare education. We are learning how best to provide feedback and debriefing with deliberate practice, in a mastery learning model, to create successful educational programs and lasting educational results.

Email interview conducted by John Hill.

Gallery (Photo: Timothy Hursley)

Important Manufacturers / Products:
Wood Ceilings: Armstrong
Toggle Glazing: Kawneer
Brick: ACME

Classroom (Photo: Timothy Hursley)
Skills lab (Photo: Timothy Hursley)
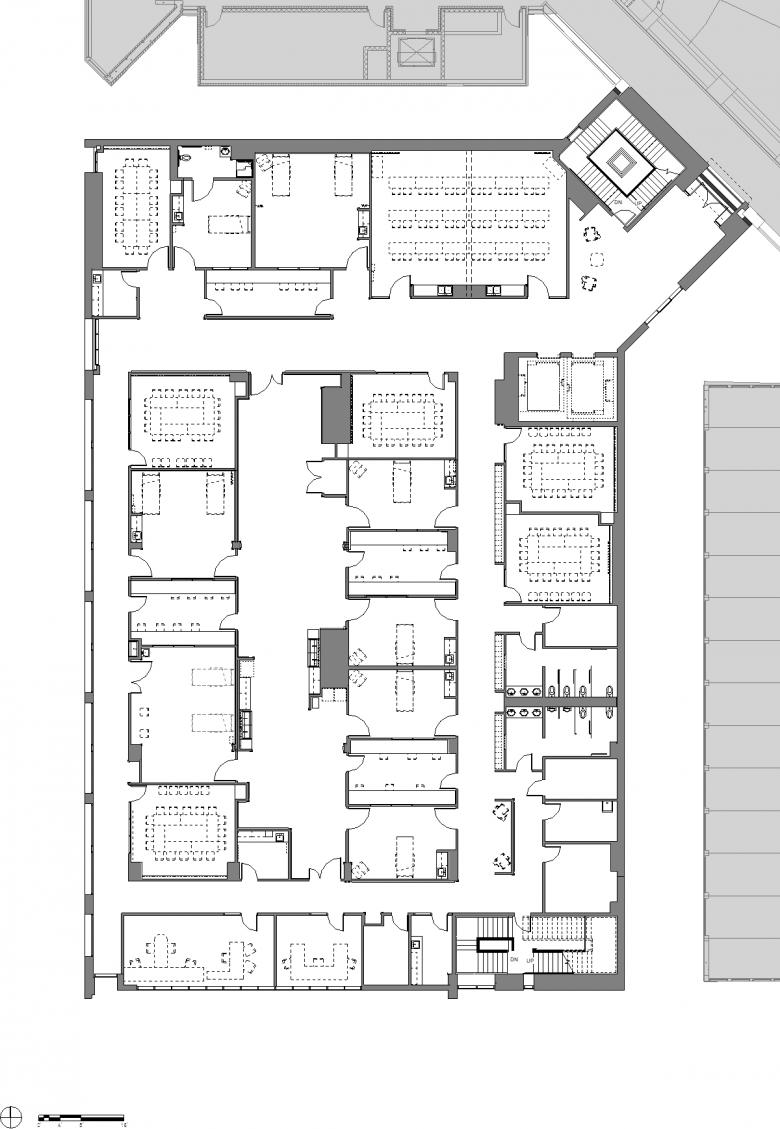
First floor plan (Drawing: brg3s)
Second floor plan (Drawing: brg3s)
Third floor plan (Drawing: brg3s)
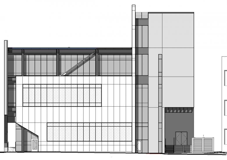
West elevation (Drawing: brg3s)
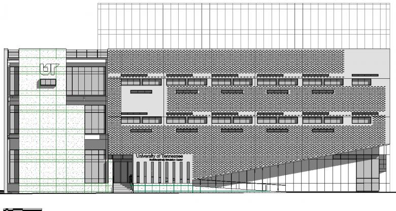
South elevation (Drawing: brg3s)

Related articles 

Other articles in this category