Vault House
Vault House
Californian architect duo Sharon Johnston and Mark Lee are one of the few studios that, though modest in size, manages to survive in a field dominated by the large American offices. Since being founded in 1998, Johnston Marklee has undertaken small commissions that combine the best of California Modern tradition with European influences and knowledge learned from their academic experiences in various American universities. From their first residential works in California to the projects developed in China, Italy, Spain, or Switzerland, their works are located at the intersection of the spheres of the local and the global, and pay tribute to an interpretation of the modern movement and to the demands of global visibility particular to Los Angeles.
This issue of 2G presents the works and projects of Johnston Marklee, along with two essays (one by the Swiss historian and critic Martino Stierli and the other by Robert E. Somol, the current director of the School of Architecture of the University of Chicago) which places the work of this California studio into context within the current Architectural panorama. The final section Nexus includes a text by the architects themselves, "Generic Specificity. Five Points for an Architecture of Approximation", a sort of manifesto in which they clearly explain their position vis a vis the profession.
2G 67 Johnston Marklee is available on visualMANIAC, Zinio & iBookstore (only digital).
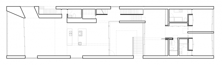
Vault House is situated in a densely developed beach site in Southern California. The design challenges the standard prime, single-view typology by layering an array of transparent interior spaces within the maximum allowable zoning envelope.
With the assembly of stacked and unidirectional vaulted rooms contained within a simple rectilinear volume, the parallel orientation of the rooms within the house acts as a filter that extends the oceanfront view from the beachfront façade to the west through to the street at the eastern boundary of the site. With varied contours, volume and material finish, each vaulted room defines an area or function in the house.
The combined effect is a varied landscape of interior spaces unified with a singular formal language. Similar to the paradigm of a shotgun house (or bay house with enfilade rooms), the singular direction of the vaults maximizes the visual connection of all spaces within the deep building footprint, incorporating the exquisite exterior landscape of beach, ocean and horizon into the depth of the building.
While the programme gradient flows from the main living and master suite adjacent to the ocean to the west through to the inner courtyard, private study, guest and children’s rooms to the east, the expansive views of the ocean are visible from even the most private spaces. Changing views, lighting conditions and degrees of transparency act as a shutter throughout the day and according to occupancy in order to filter the surrounding landscape, light, and views toward the ocean beyond.
Vault House
2013
Oxnard, California
Architects
Sharon Johnston and Mark Lee
(Johnston Marklee)
Los Angeles
Collaborators
Katrin Terstegen
Andri Luescher
Nicholas Hofstede
Anna Neimark
Anton Schneider
Yoshi Nagamine
Ryan Roettker
Structural Engineer
William Koh & Associates
Contractor
RJP Construction
Photographs
Eric Staudenmaier




