Vertical Urbanism
The youngest mega-city in China is Shenzhen. Since its designation as a special economic zone 40 years ago not only have many immigrants found a new home here, but also an innovative atmosphere has established itself. This is reflected in the Shenzhen College of International Education designed by Li Xiaodong Atelier.
Built-up area: 100,000 m2
Land area: 20,000 m2
Design period: 2016–2017
Construction: 2017–2020
Location: Shenzhen, Guangdong Province, China
Architect: Li Xiaodong Atelier
Landscape architect: Li Xiaodong Atelier
Team: Li Xiaodong, Zhang Sihui, Chen Ziyu, Wang Gutian, Li Le, Zhang Chenyang,
Collaborator (Structure, electricity, water): Shenzhen Tongjiren Design Firm
Contractor: The 3rd Division, China Construction Corp.
Photographer: UK Studio
Shenzhen is unique because of the fastest urban growth ever recorded resulting in a population of over 17 million inhabitants today as well as the composition of that population with people from all over the China who arrived in search of work. As old socio-cultural networks did not exist, it was the dynamic of the immigration society that created the new opportunities. As is the case everywhere in China, these opportunities also include an infrastructure for secondary level education.
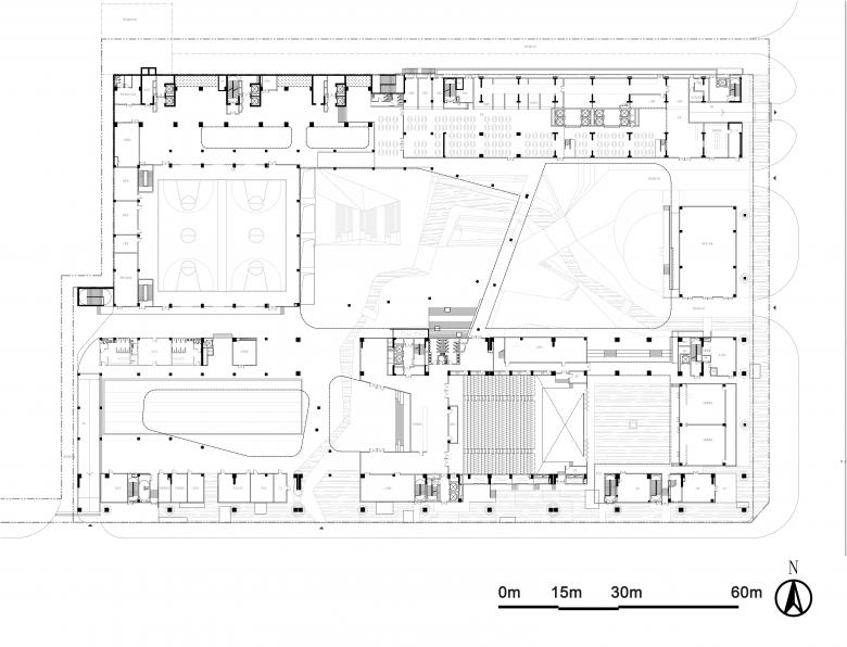
The architecture practice Li Xiaodong Atelier completed the new Shenzhen College of International Education (SCIE) in the Futian district where the CBD and the city administration are also located. Designed for 2,000 students and 200 teachers, the college extends to 100,000 square meters on a site area of 20,000 square meters. This enormous density of a city faced with tremendous growth on scarce land resources challenges architects to rethink the impact of vertical urbanisation.
The program includes teaching facilities, student dormitories, staff apartments and sports facilities accommodated in building volumes arranged on site to achieve a porosity that allows cross ventilation in the humid, subtropical climate. The typical (university) campus in China is enclosed behind a boundary. In this instance, the architects made the ground floor areas accessible to the neighbourhood ensuring that the college also benefits the surrounding area.
The program was divided into various modules connected by a two-story podium on which public uses are located; among them, gardens, a theatre, canteen and café, and a range of sports facilitates including a climbing wall, 16 different playing pitches and courts – e.g. for football and basketball – and an unobstructed jogging track running under the building volumes. The podium overcomes a level change across the site and helps to connect the complex with the immediate surroundings.
The lecture and seminar rooms are contained in two elongated buildings connected with bridges on the upper levels of the nine storeys. A 14-storey residential building for students is similarly elevated above the podium, and together with a 25-storey building for the teaching staff, defines the northern edge of the complex. All four building volumes are perforated by multi-storey openings containing gardens that promote natural ventilation. This effect is reinforced by facade greening, water pools and planted decks.
The multi-dimensional and interwoven spatial composition is adapted to the subtropical climate through the integration of gardens, horizontal and vertical planting, and public areas. Li Xiaodong Atelier demonstrates a contemporary regional architecture that combines both climatic and socio-cultural aspects. The open campus, with its elastic interfaces between nature and architecture, is not only an enriching environment for the students, but the project also shows that architecture can do more than just fulfil its function.
















