Villa Panamericana de Guadalajara
Two structures free up more than half of the lot, contributing to the public space of the neighborhood and salvaging two heritage constructions. The first adapts itself to the irregularities of the context; the second becomes an urban reference, from its corner location, of the Villa Panamericana, entering into a dialogue with the distant towers of central Guadalajara.
Both buildings, extremely austere, seek sunlight and vistas and expose their structures, without cladding or ornamentation. Perhaps it is nowadays, in the era of global warming, a hundred years after Adolf Loos wrote his famous essay on "Ornament and Crime," that the maxim assumes its full significance.
The structures intended for lodgings, with their small spaces and small spans, are designed with load-bearing walls and fulfill various functions: defining spaces, insulating from noise, creating a thermal mass to maintain a comfortable temperature, constituting the form and sustenance of architecture.
Alberto Kalach (Mexico City 1960) graduated as an architect from the Universidad Iberoamericana in 1981 and did post -graduate work at Cornell University in Ithaca, New York from 1983 to 1985. He has undertaken a range of architectural and urban projects, from low-cost housing to an environmental rescue plan to deal with the problem of water in the Valley of Mexico.
The building is part of a collective proposal by thirteen different architects to develop the Villa Panamericana, which will provide lodgings for 7,000 athletes during the month-long period of the Pan American Games.
The authorities decided that, instead of the construction of a satellite villa, a deteriorated zone in the center of the city, next to the historic downtown, could be revitalized with housing. The result is an operation of subtraction and addition in the existing urban fabric, performed with a series of environmental and typological norms whereby the new designs will give character and unity to this old neighborhood.
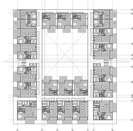
The building proposed is a cake-like structure containing 160 apartments, with capacity for 700 residents in five types of lodgings. Once the Games are over, this units will be put up for sale.
The project seeks to be a piece of inhabited landscape designed to articulate a circuit of plazas and parks. The base of the building is freed up to generate a public plaza and the entrances to the upper floors.
The apartments are developed on five different levels: some of them looking onto the lateral streets, and others onto the interior void of the building, where the plaza is located. In order to generate greater intimacy, the interior circulations which give onto the plaza are lined with a sort of latticework. The exterior façades, of prefabricated concrete, are enlivened by a series of individual gardens that personalize the apartments. On the upper floors, the apartments are of two levels. A rooftop garden with vine bowers generates open space and offers ample vistas of the surroundings.
Mathias Klotz (Viña del Mar, 1965) graduated in 1991as an architect from the Pontificia Universidad Católica de Chile, where he now teaches. He is also dean of the School of Architecture of the Universidad Diego Portales. He has more than 50 constructed works to his credit, including residences, urban plans, schools, and public and buildings. He has been awarded First Place at the Tenth and Twelfth Architecture Biennials in Santiago de Chile, as well as the prize for a Best Architect under the age of 40 granted by the Colegio de Arquitectos de Chile. His work has been published and exhibited in Latin America, the United States, Europe, and Asia.
Edificio Garibaldi
2008
Guadalajara
Architecture
Alberto Kalach
Project Team
Héctor Módica, Iván Ramírez
Edificio Baeza Alzaga
2008
Guadalajara
Architecture
Mathias Klotz
con Alfredo Hidalgo
Project Team
Francisco Reyes
Héctor Hormazábal
Pedro Pedraza
Sebastián Mundi
Site Area
3,000 m2
Constructed Surface Area
22,000 m2









